ГОСТ 32499-2013 Плиты перекрытий железобетонные многопустотные для зданий пролетом до 9 м стендового формирования. Технические условия
ГОСТ
Скачать ГОСТ в PDF или DOC бесплатно
Основная информация
Обозначение:
ГОСТ 32499-2013
Статус:
Действует
Тип:
ГОСТ
Название русское:
Плиты перекрытий железобетонные многопустотные для зданий пролетом до 9 м стендового формирования. Технические условия
Название английское:
Reinforced concrete multihollow slabs for floors in buildings for span to 9 m stand moulding. Specifications
Даты и сроки
Дата регистрации:
11-14-13
Дата издания:
09-01-14
Дата введения в действие:
01-01-15
Дата завершения срока действия:
-
Применение и описание
Область и условия применения:
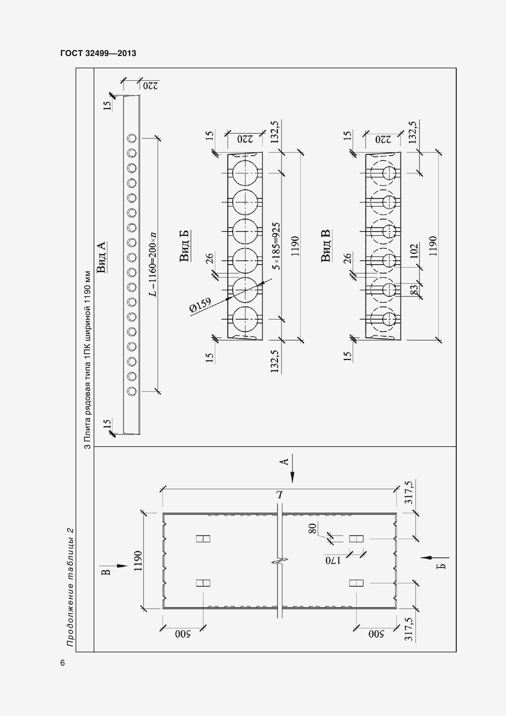
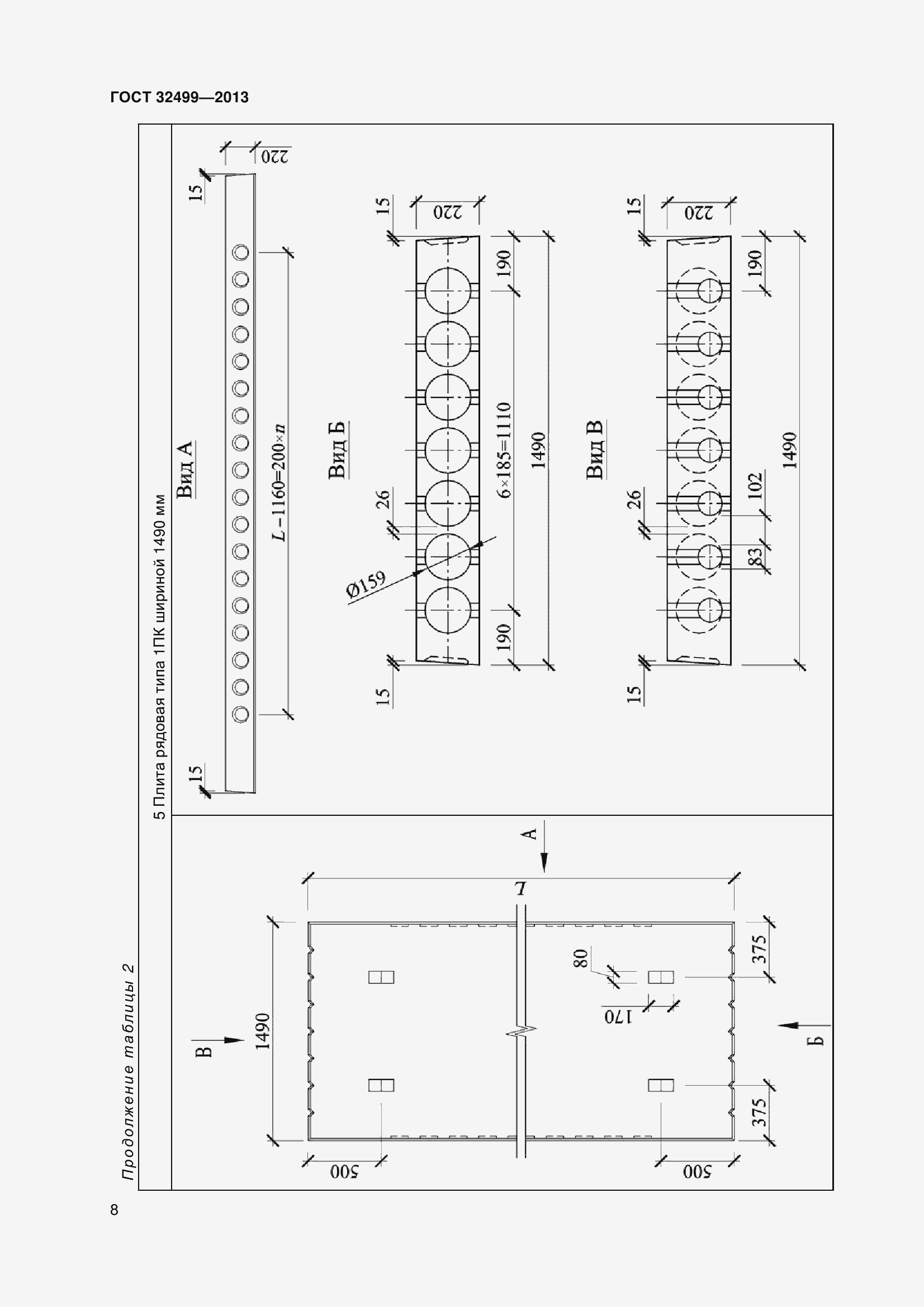
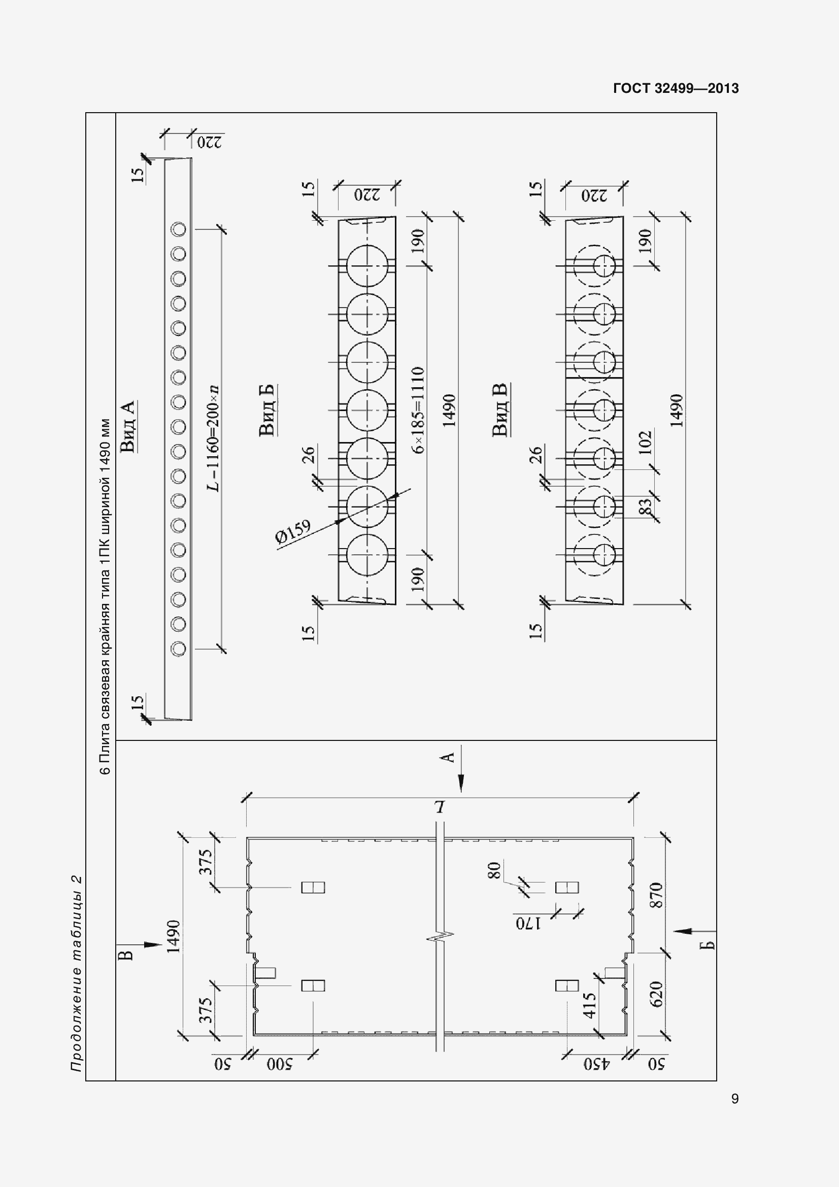
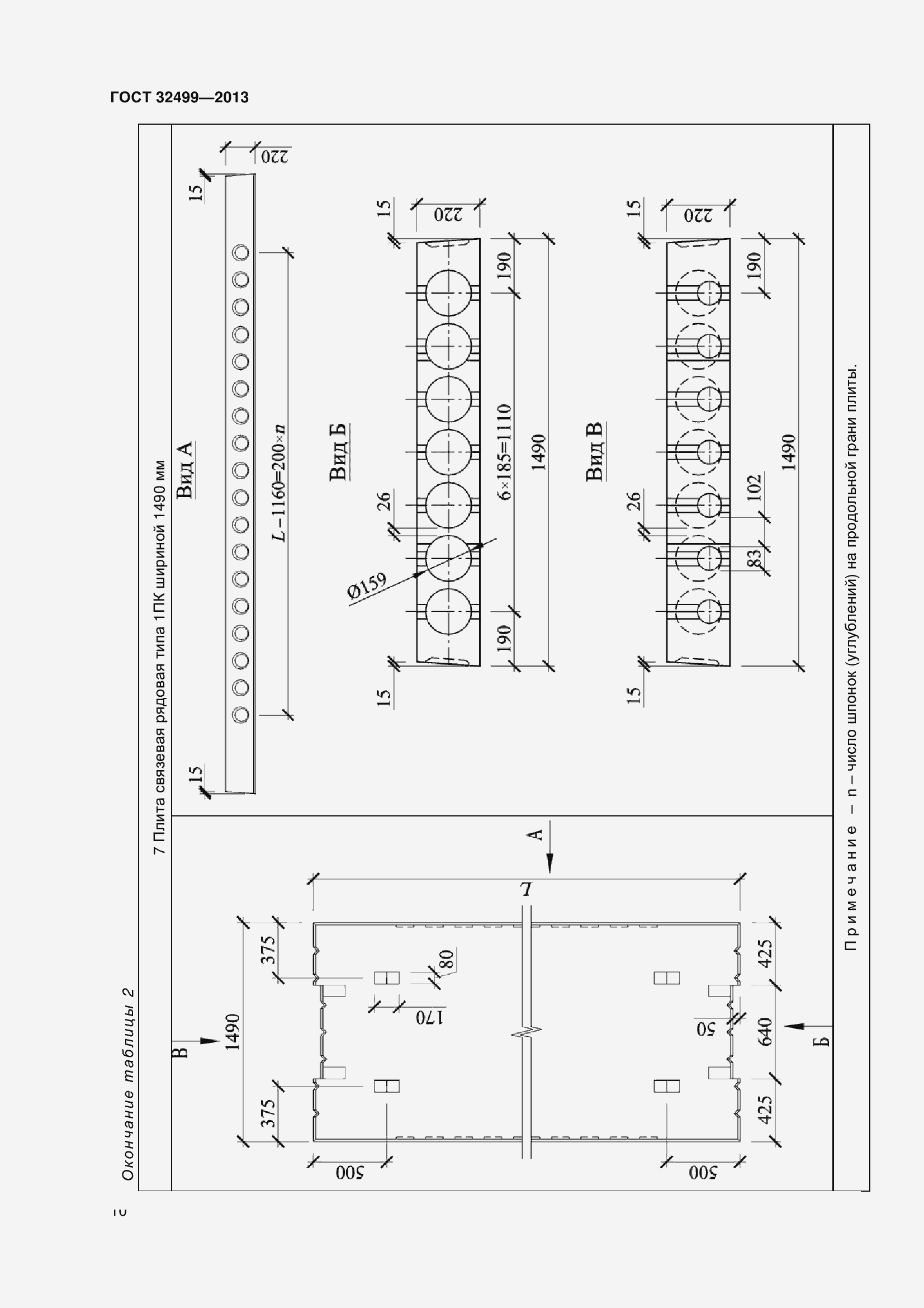
Настоящий стандарт устанавливает технические требования, методы контроля и правила приемки, транспортирования и хранения железобетонных многопустотных плит межвидового назначения, опирающихся по двум сторонам, высотой 220 мм с основным размером пустот 159 мм из тяжелого или конструкционного легкого бетонов. Плиты применяют в перекрытиях и покрытиях гражданских и промышленных зданий и сооружений пролетом до 9 м
Связи и замены
Заменяющий:
-
Описание стандарта
ГОСТ 32499-2013 Плиты перекрытий железобетонные многопустотные для зданий пролетом до 9 м стендового формирования. Технические условия
Страницы стандарта
























Приложение №1: Изменение №1 к ГОСТ 32499-2013 Обозначение: Изменение №1 к ГОСТ 32499-2013 Дата введения в действие: 01.09.2024

Приложение №1: Изменение №1 к ГОСТ 32499-2013 Обозначение: Изменение №1 к ГОСТ 32499-2013 Дата введения в действие: 01.09.2024

Приложение №1: Изменение №1 к ГОСТ 32499-2013 Обозначение: Изменение №1 к ГОСТ 32499-2013 Дата введения в действие: 01.09.2024

Приложение №1: Изменение №1 к ГОСТ 32499-2013 Обозначение: Изменение №1 к ГОСТ 32499-2013 Дата введения в действие: 01.09.2024
