ГОСТ 27215-2013 Плиты перекрытий железобетонные ребристые высотой 400 мм для промышленных зданий и сооружений. Технические условия
ГОСТ
Скачать ГОСТ в PDF или DOC бесплатно
Основная информация
Обозначение:
ГОСТ 27215-2013
Статус:
Действует
Тип:
ГОСТ
Название русское:
Плиты перекрытий железобетонные ребристые высотой 400 мм для промышленных зданий и сооружений. Технические условия
Название английское:
Reinforced concrete ribbed floor slabs of 400 mm depth for industrial buildings. Specifications
Даты и сроки
Дата регистрации:
11-14-13
Дата издания:
12-09-19
Дата введения в действие:
01-01-15
Дата завершения срока действия:
-
Применение и описание
Область и условия применения:
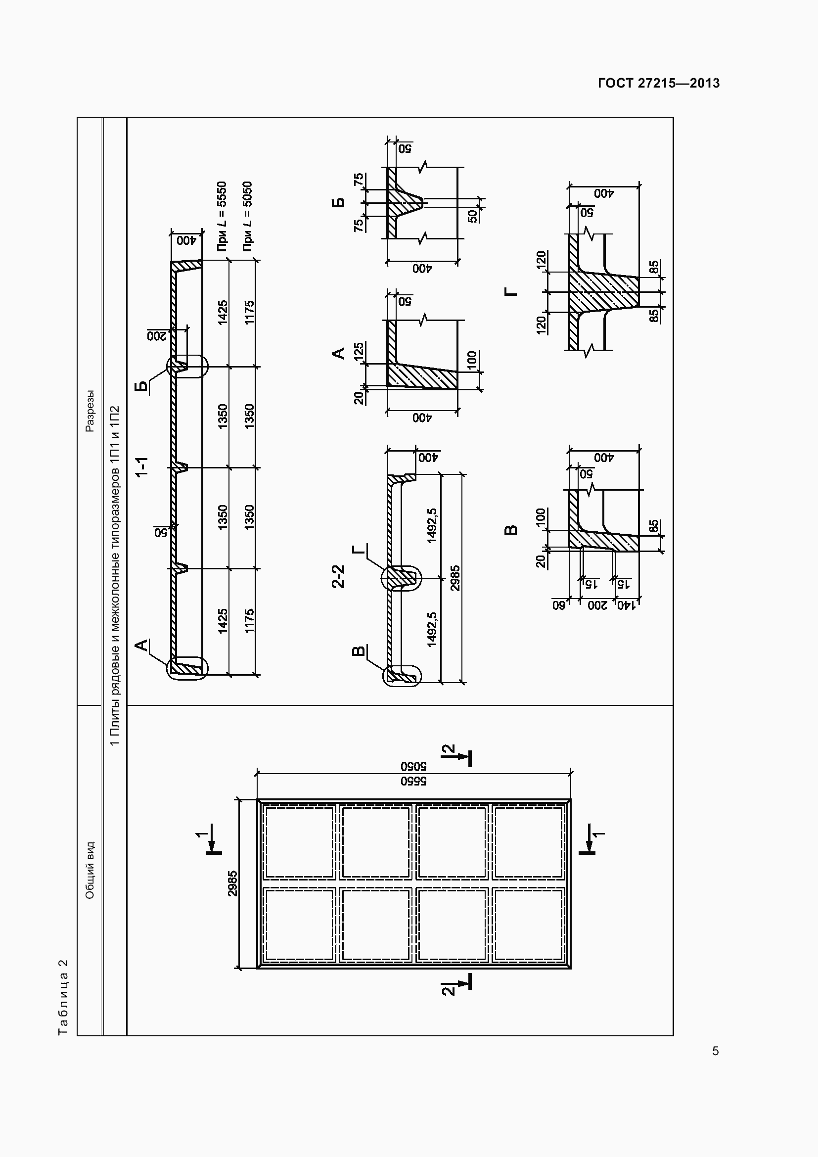
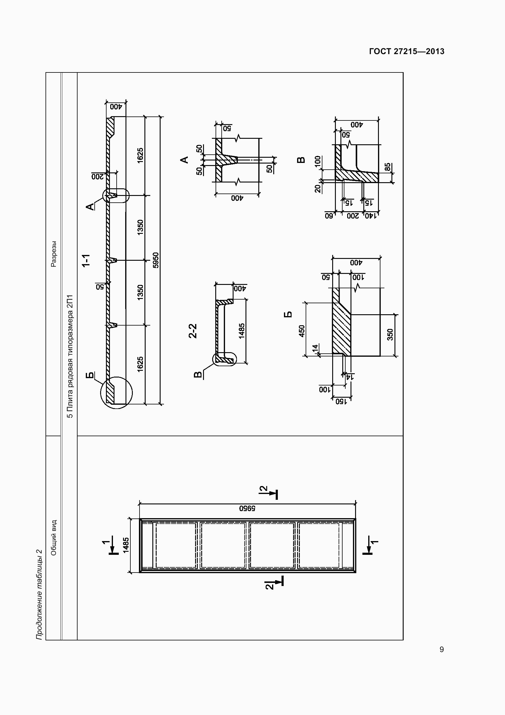
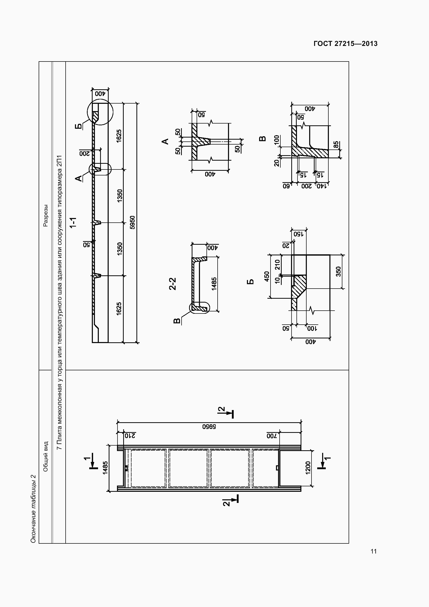
Настоящий стандарт устанавливает технические требования, методы контроля, правила приемки, транспортирования и хранения железобетонных предварительно напряженных ребристых плит высотой 400 мм из тяжелого или конструкционного легкого бетона. Плиты применяют для перекрытий многоэтажных каркасных производственных зданий промышленных предприятий и сооружений различного назначения с шагом несущих конструкций 6 м
Связи и замены
Заменяющий:
-
Взамен:
ГОСТ 27215-87
Описание стандарта
ГОСТ 27215-2013 Плиты перекрытий железобетонные ребристые высотой 400 мм для промышленных зданий и сооружений. Технические условия
Страницы стандарта

























Приложение №1: Изменение №1 к ГОСТ 27215-2013 Обозначение: Изменение №1 к ГОСТ 27215-2013 Дата введения в действие: 01.09.2024

Приложение №1: Изменение №1 к ГОСТ 27215-2013 Обозначение: Изменение №1 к ГОСТ 27215-2013 Дата введения в действие: 01.09.2024

Приложение №1: Изменение №1 к ГОСТ 27215-2013 Обозначение: Изменение №1 к ГОСТ 27215-2013 Дата введения в действие: 01.09.2024

Приложение №1: Изменение №1 к ГОСТ 27215-2013 Обозначение: Изменение №1 к ГОСТ 27215-2013 Дата введения в действие: 01.09.2024

Приложение №2: Поправка к ГОСТ 27215-2013 Обозначение: Поправка к ГОСТ 27215-2013 Дата введения в действие: 30.12.2021
