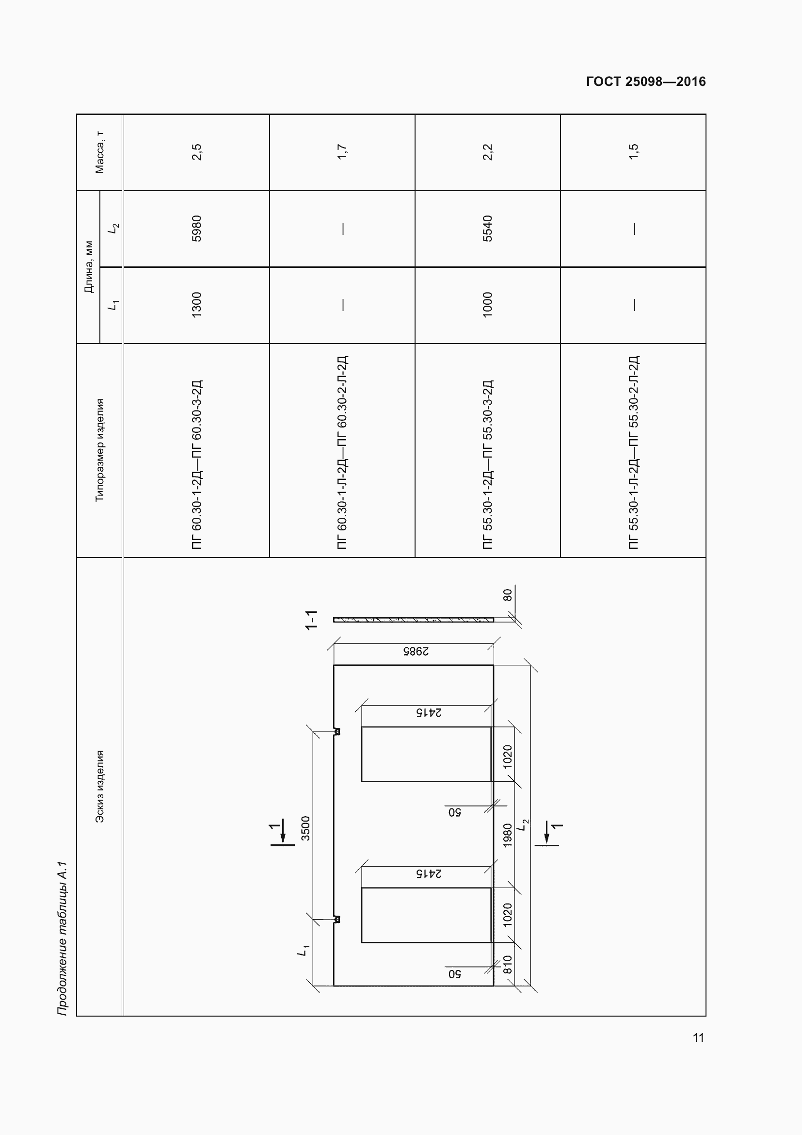
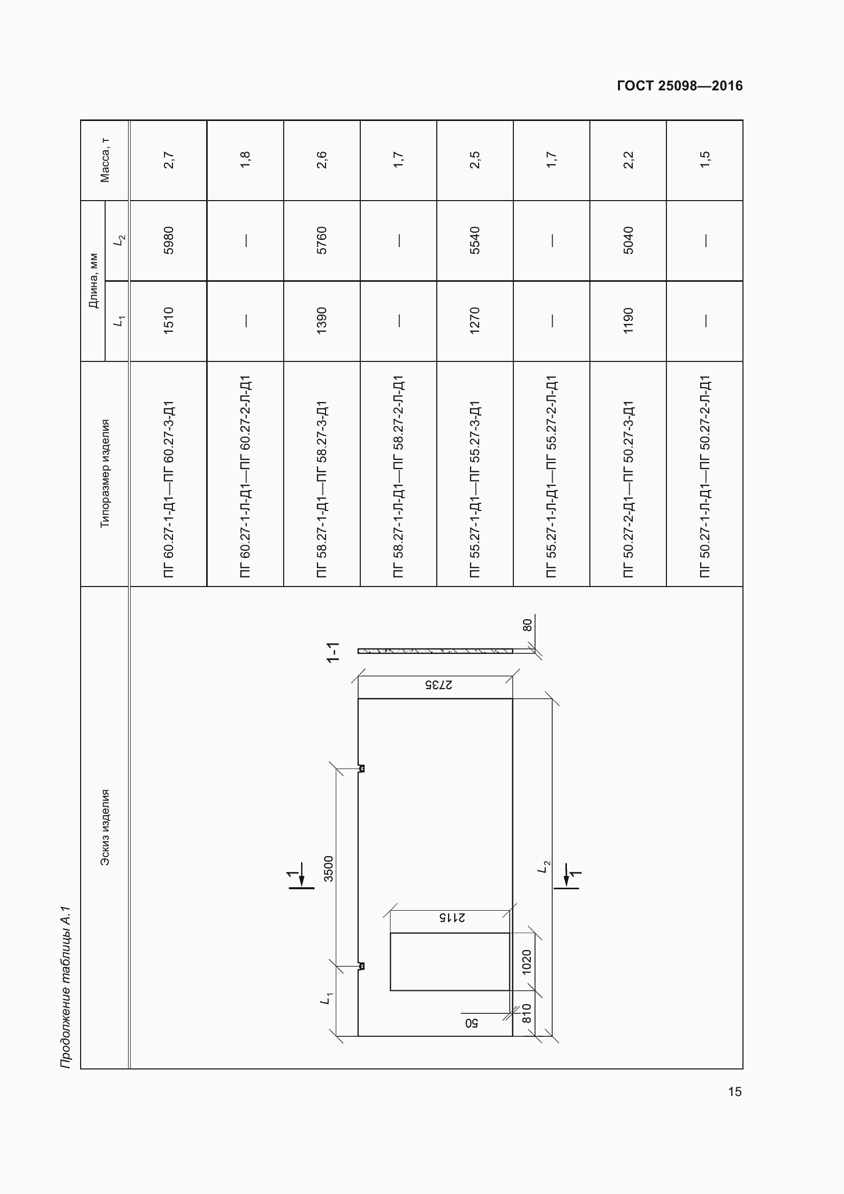
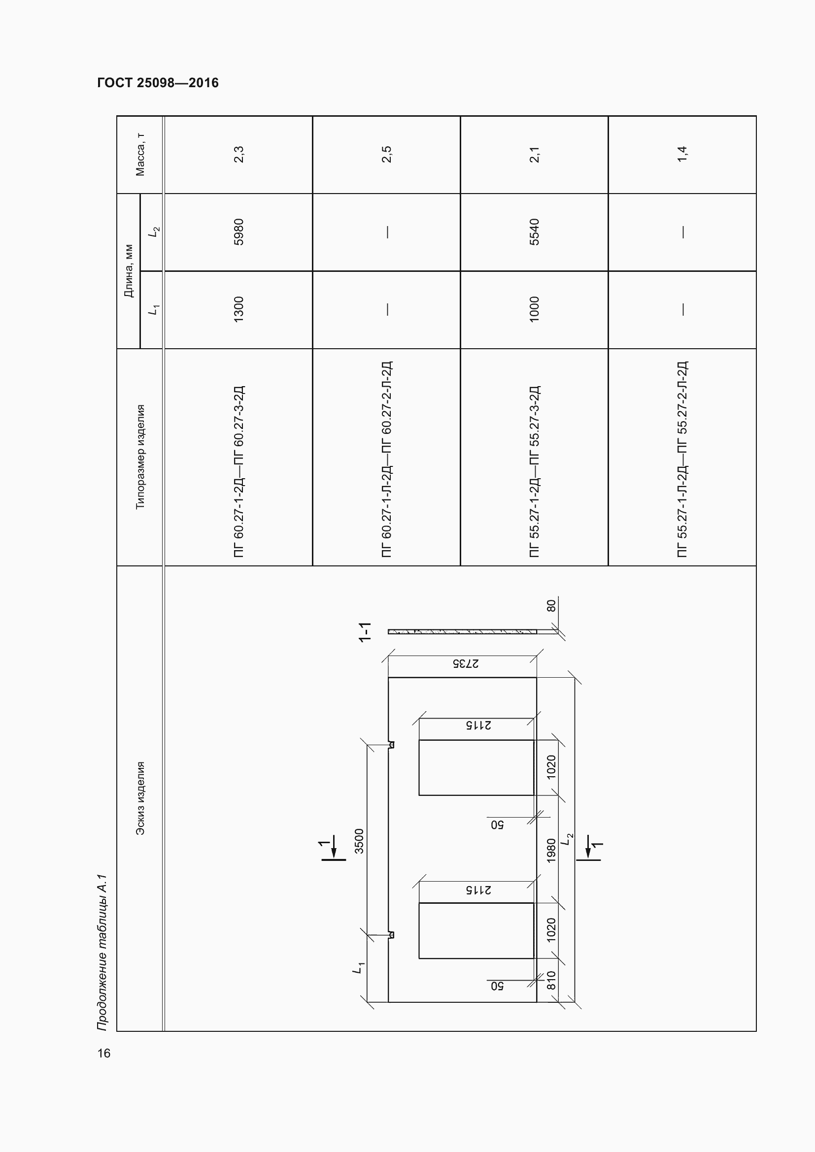
ГОСТ 25098-2016 Панели перегородок железобетонные для зданий промышленных и сельскохозяйственных предприятий. Технические условия
ГОСТ
Скачать ГОСТ в PDF или DOC бесплатно
Основная информация
Обозначение:
ГОСТ 25098-2016
Статус:
Заменен
Тип:
ГОСТ
Название русское:
Панели перегородок железобетонные для зданий промышленных и сельскохозяйственных предприятий. Технические условия
Название английское:
Reinforced concrete panels for partitions in industrial and agricultural buildings. Specifications
Даты и сроки
Дата регистрации:
10-25-16
Дата издания:
01-09-17
Дата введения в действие:
06-01-17
Дата завершения срока действия:
-
Применение и описание
Область и условия применения:
Настоящий стандарт устанавливает технические требования, методы контроля и правила приемки, транспортирования и хранения железобетонных панелей, изготовляемых из тяжелого или легкого бетона
Связи и замены
Заменяющий:
-
Взамен:
ГОСТ 25098-87
Описание стандарта
ГОСТ 25098-2016 Панели перегородок железобетонные для зданий промышленных и сельскохозяйственных предприятий. Технические условия
Страницы стандарта

































Приложение №1: Поправка к ГОСТ 25098-2016 Обозначение: Поправка к ГОСТ 25098-2016 Дата введения в действие: 30.12.2021

Приложение №2: Поправка к ГОСТ 25098-2016 Обозначение: Поправка к ГОСТ 25098-2016 Дата введения в действие: 13.05.2025
