ГОСТ Р ИСО 11003-2-2017 Клеи. Определение свойств конструкционных клеев при сдвиге. Часть 2. Метод испытания на растяжение металлических образцов, склеенных внахлестку
ГОСТ Р ИСО
Скачать ГОСТ в PDF или DOC бесплатно
Основная информация
Обозначение:
ГОСТ Р ИСО 11003-2-2017
Статус:
Действует
Тип:
ГОСТ Р ИСО
Название русское:
Клеи. Определение свойств конструкционных клеев при сдвиге. Часть 2. Метод испытания на растяжение металлических образцов, склеенных внахлестку
Название английское:
Adhesives. Determination of shear behaviour of structural adhesives. Part 2. Tensile test method for metallic standards with the use of thick adherends
Даты и сроки
Дата издания:
11-27-19
Дата введения в действие:
01-01-22
Дата завершения срока действия:
-
Применение и описание
Область и условия применения:
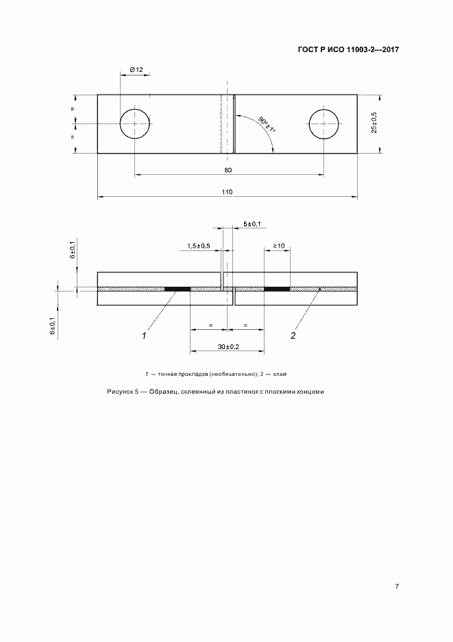
Настоящий стандарт устанавливает метод определения свойств при сдвиге клея на образце клеевого соединения внахлестку при приложении растягивающей нагрузки. Испытание выполняют на образцах, составленных из толстых жестких склеиваемых деталей при небольшой длине нахлестки, чтобы получить наиболее равномерное распределение возможных напряжений сдвига и свести к минимуму другие напряженные состояния, инициирующие напряжение. Данный метод можно использовать, чтобы определить: - кривую зависимости «напряжение-деформация» при сдвиге до разрушения клеевого шва; - модуль сдвига клея в клеевом соединении; - другие свойства, которые можно вывести по кривой напряжение-деформация, например, секущий или касательный модуль сдвига и максимальное напряжение сдвига; - влияние температуры, окружающей среды, скорости испытания и т.д., на эти свойства
Связи и замены
Заменяющий:
-
Описание стандарта
ГОСТ Р ИСО 11003-2-2017 Клеи. Определение свойств конструкционных клеев при сдвиге. Часть 2. Метод испытания на растяжение металлических образцов, склеенных внахлестку
Страницы стандарта

















