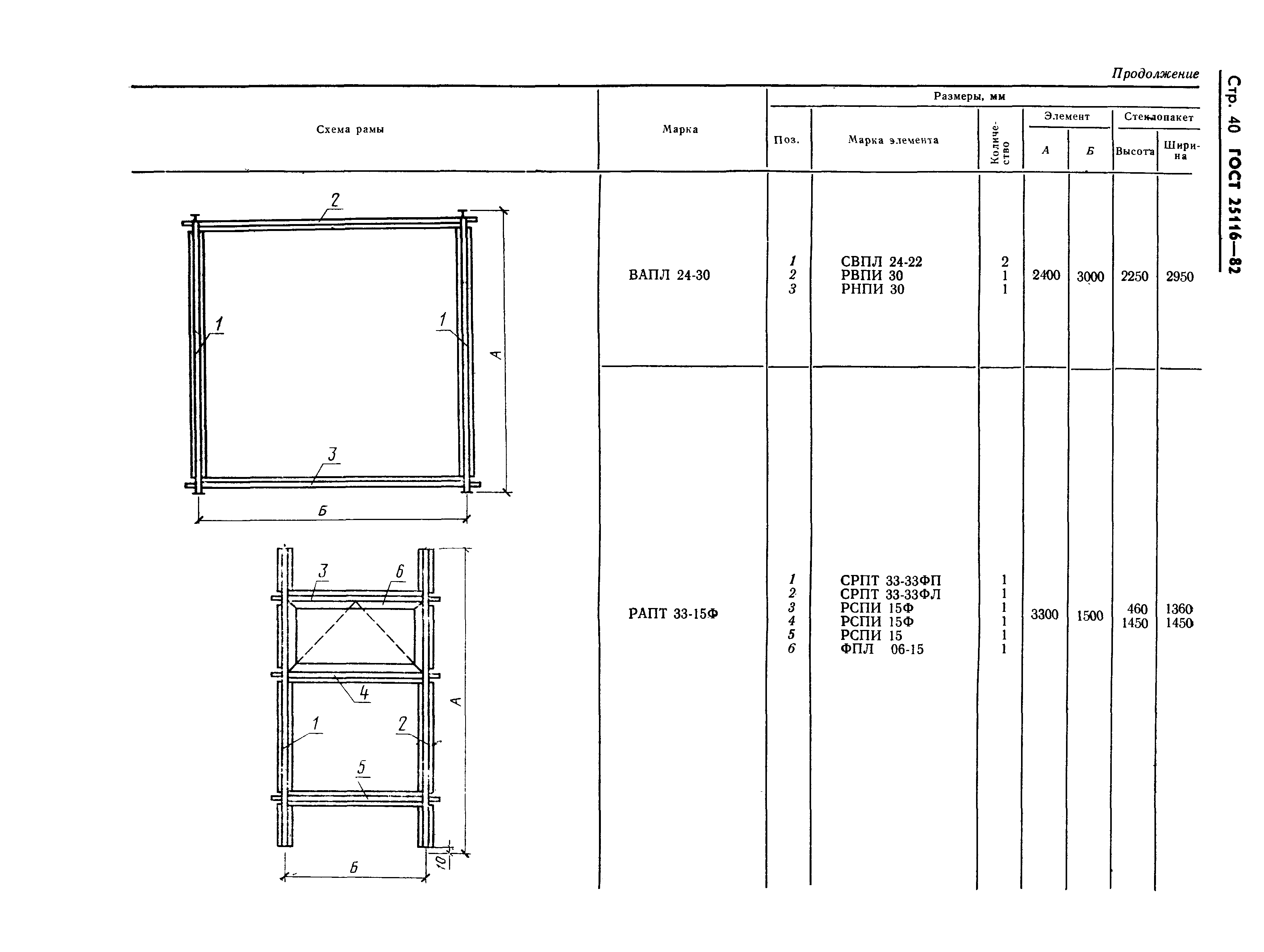
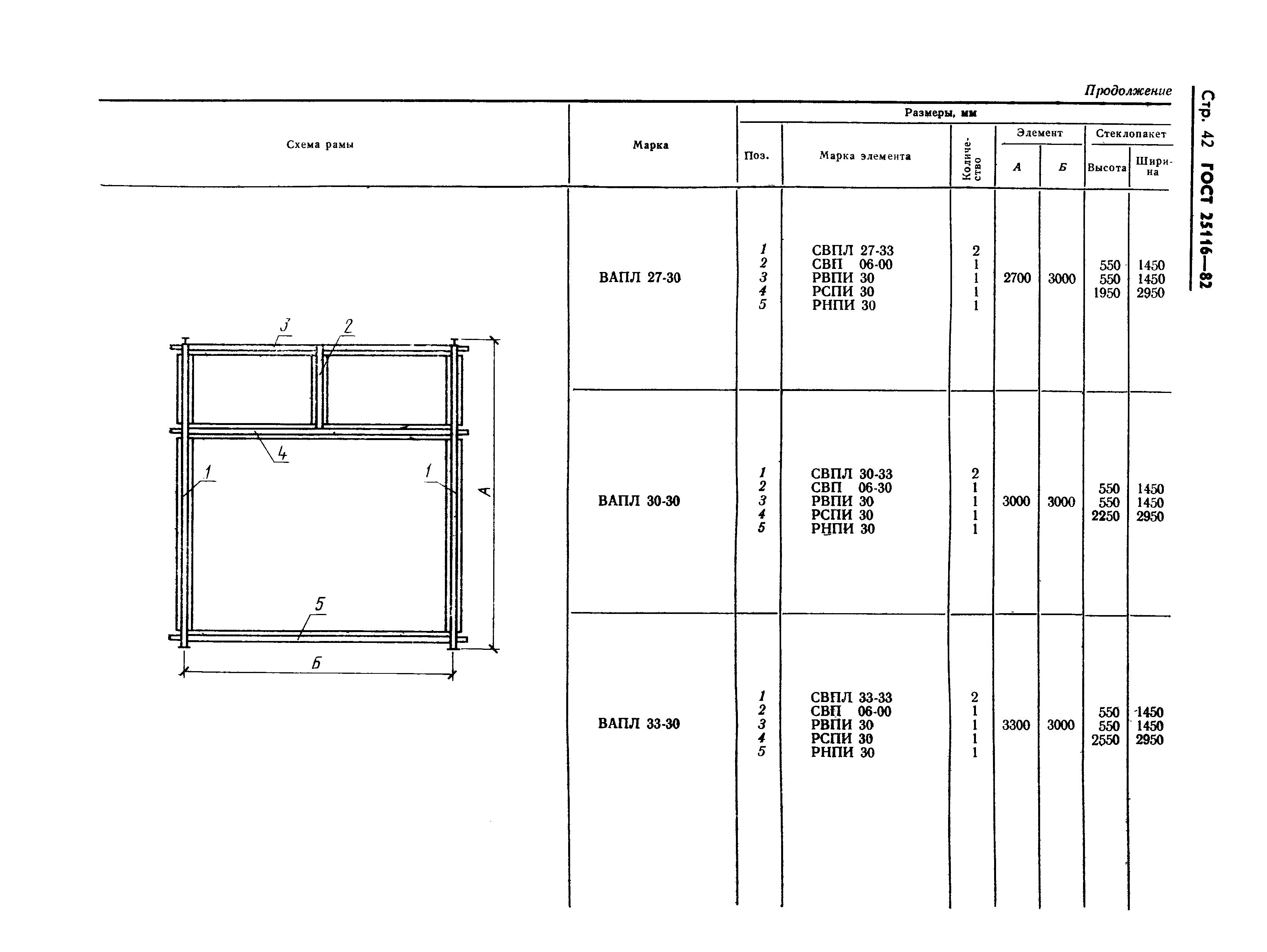
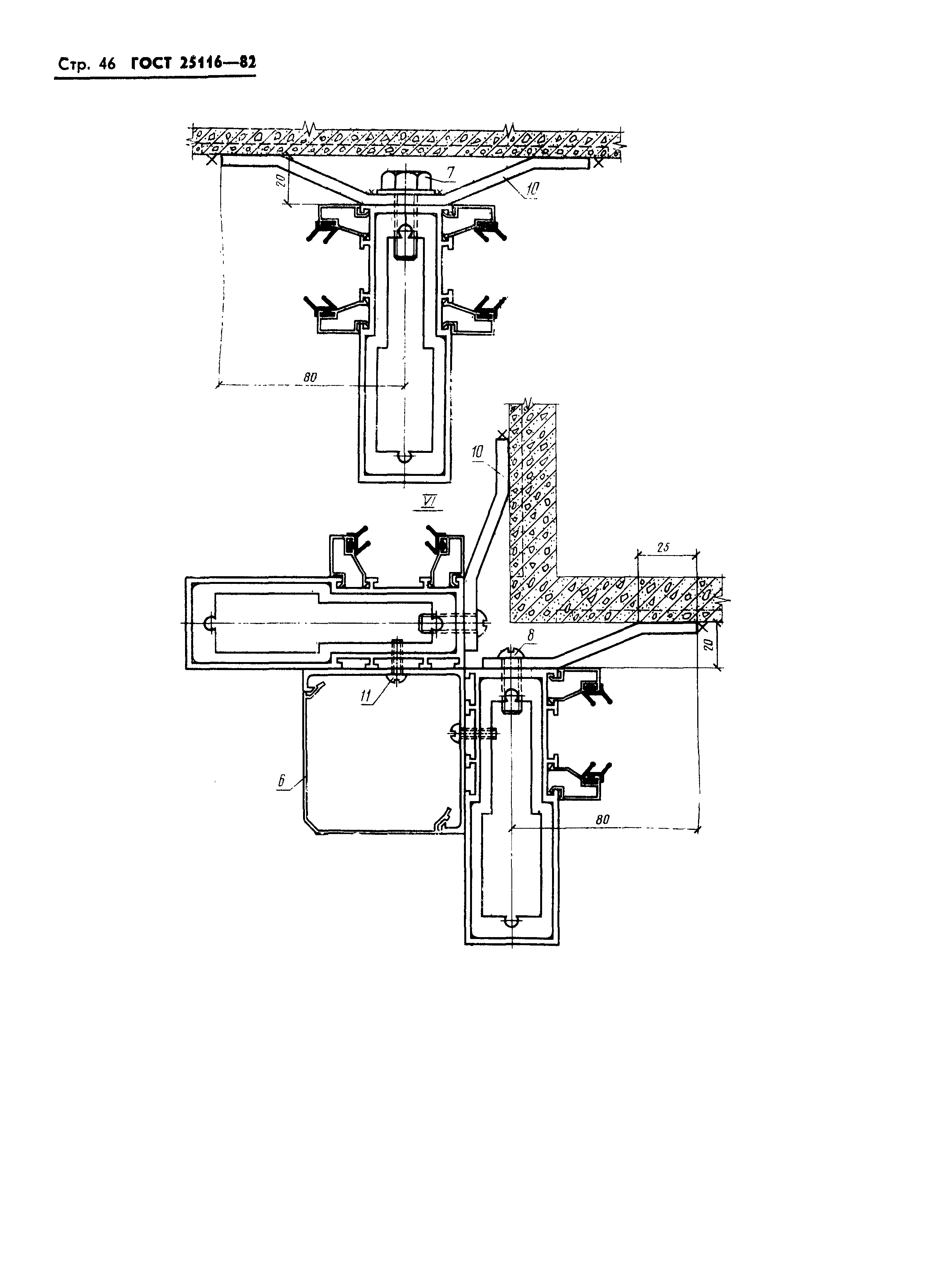
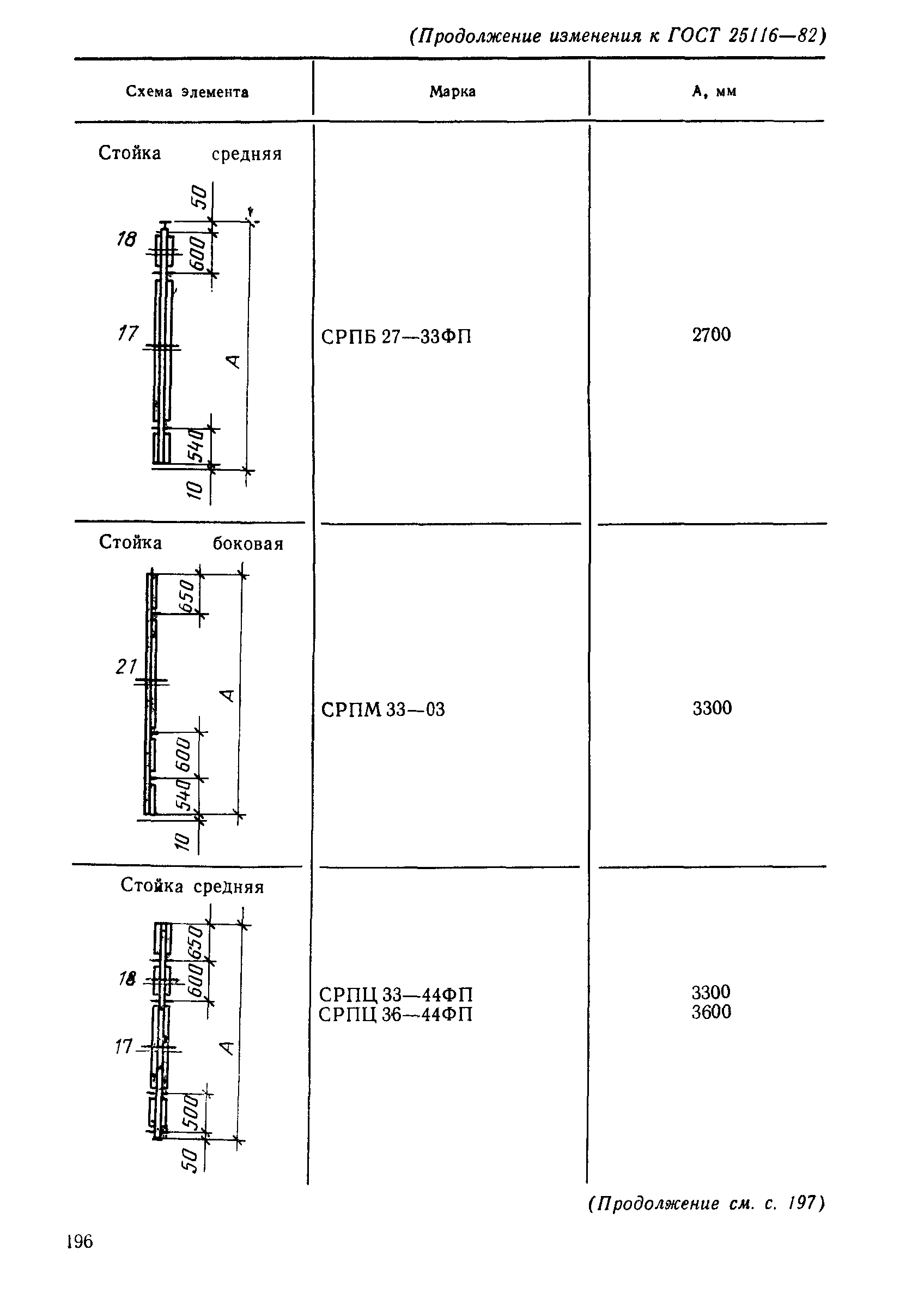
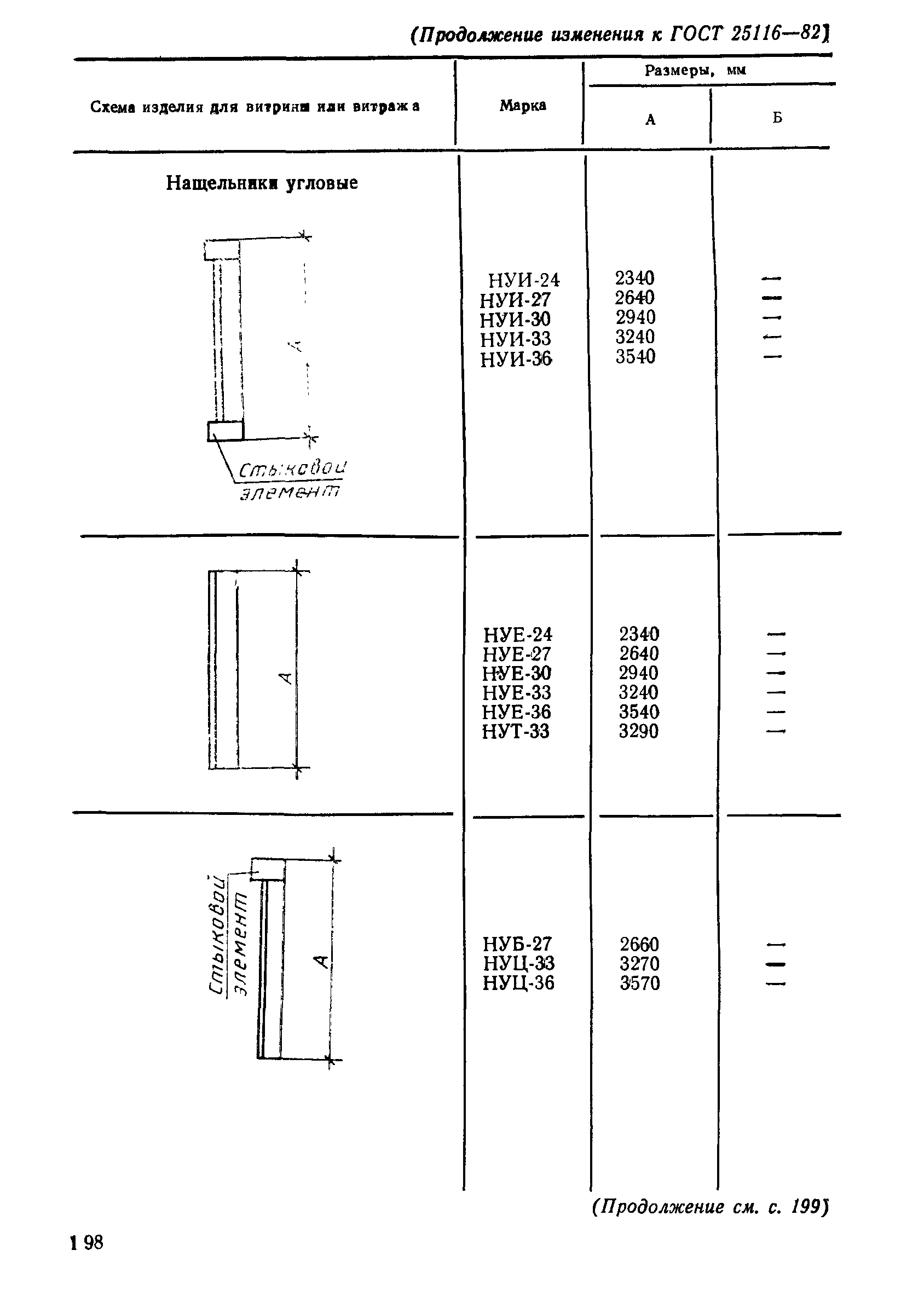
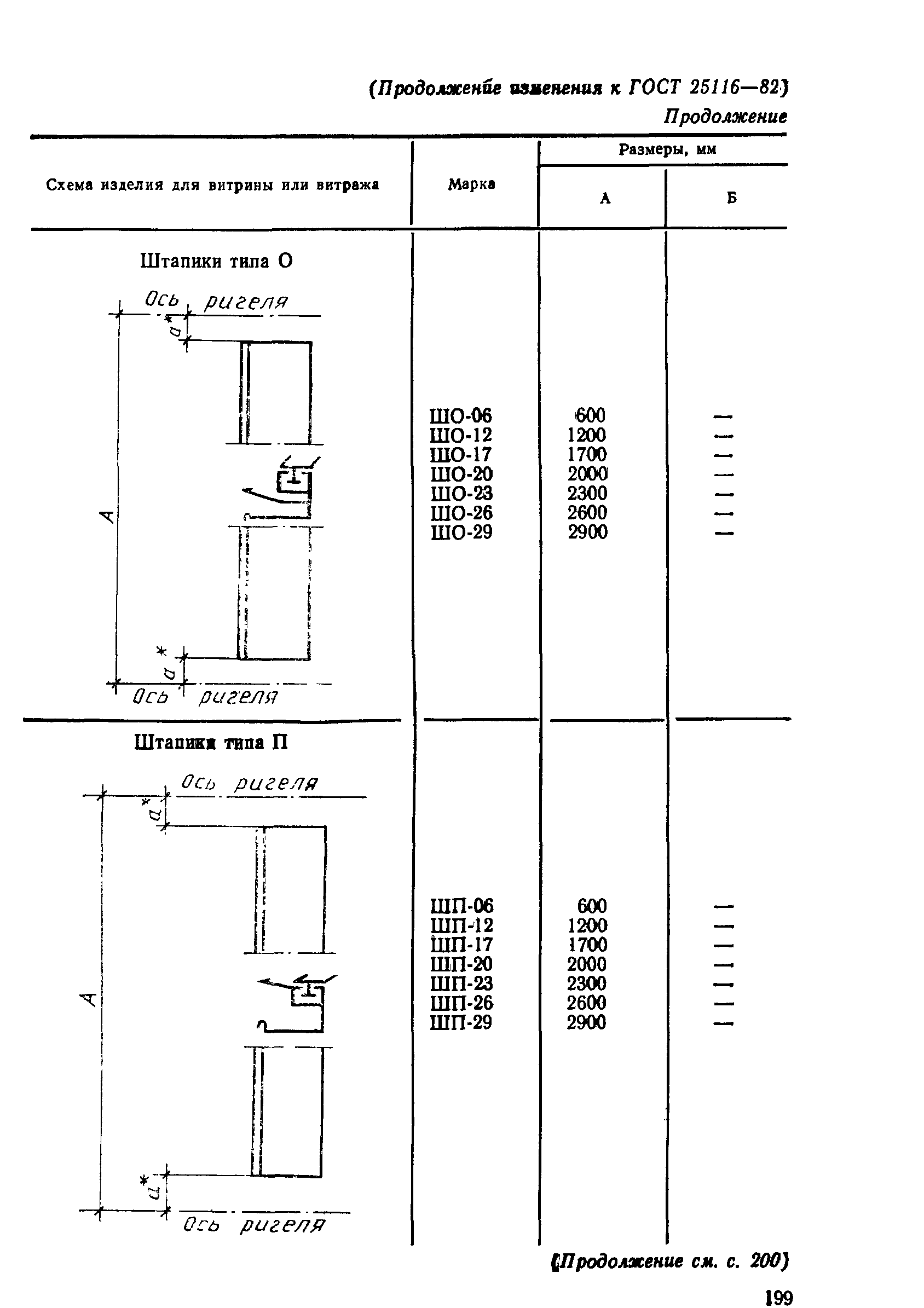
ГОСТ 25116-82 Витрины и витражи из алюминиевых сплавов. Типы, конструкции и размеры
ГОСТ
Скачать ГОСТ в PDF или DOC бесплатно
Основная информация
Обозначение:
ГОСТ 25116-82
Статус:
Утратил силу в РФ
Тип:
ГОСТ
Название русское:
Витрины и витражи из алюминиевых сплавов. Типы, конструкции и размеры
Название английское:
Aluminium shop-windowes. Types, construction and dimensions
Даты и сроки
Дата издания:
10-25-82
Дата введения в действие:
01-01-84
Дата завершения срока действия:
07-01-95
Связи и замены
Заменяющий:
-
Изменения и переиздания
Список изменений:
№0 от (рег. ) «Поправка к изменению» №1 от (рег. ) «Срок действия продлен»
Описание стандарта
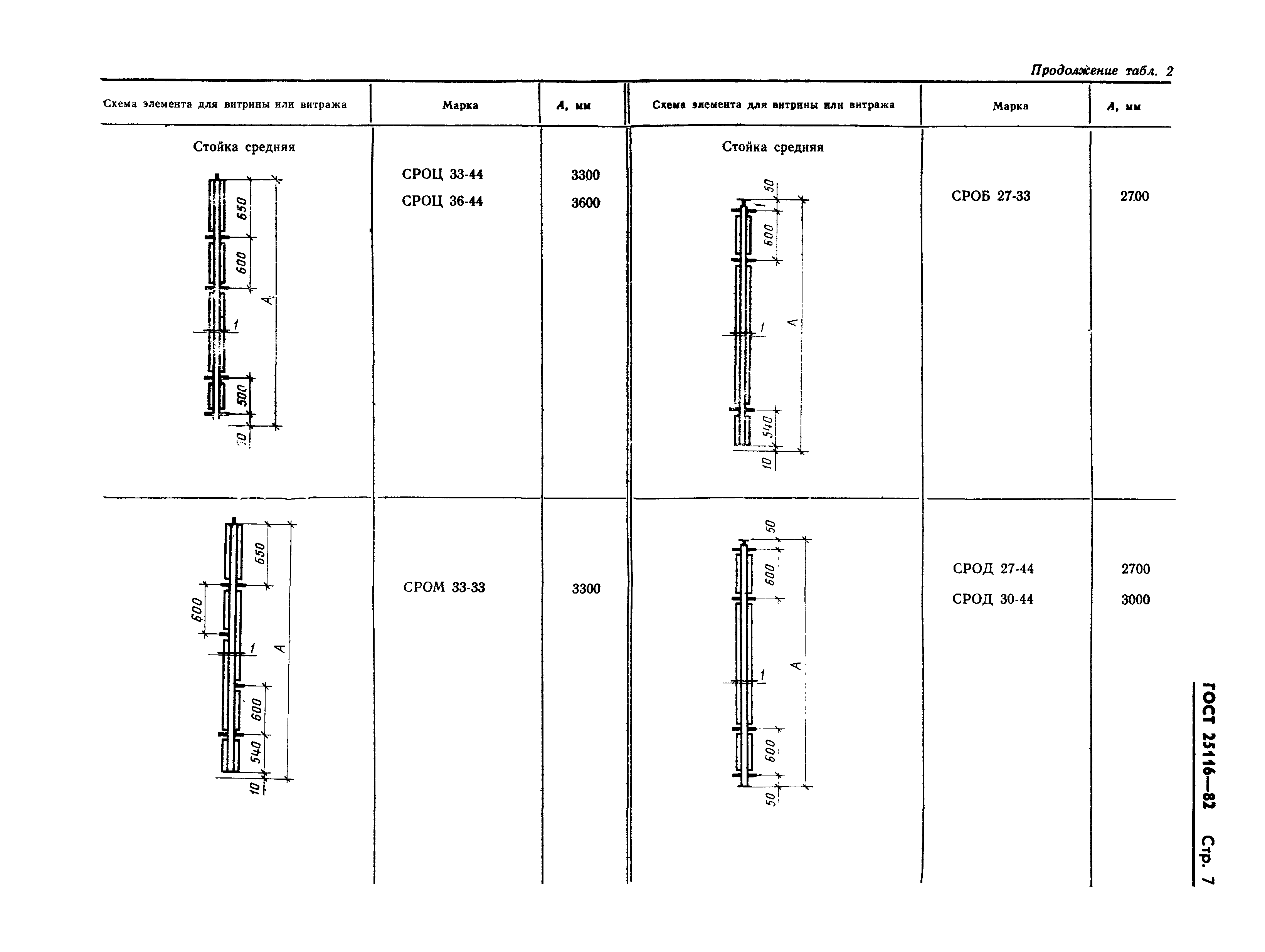
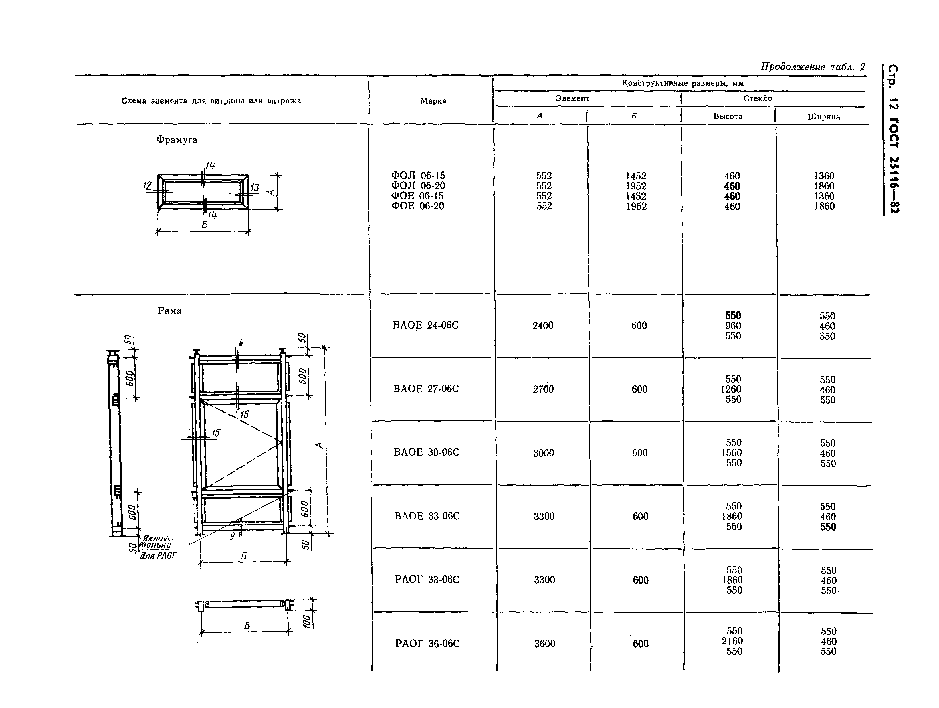
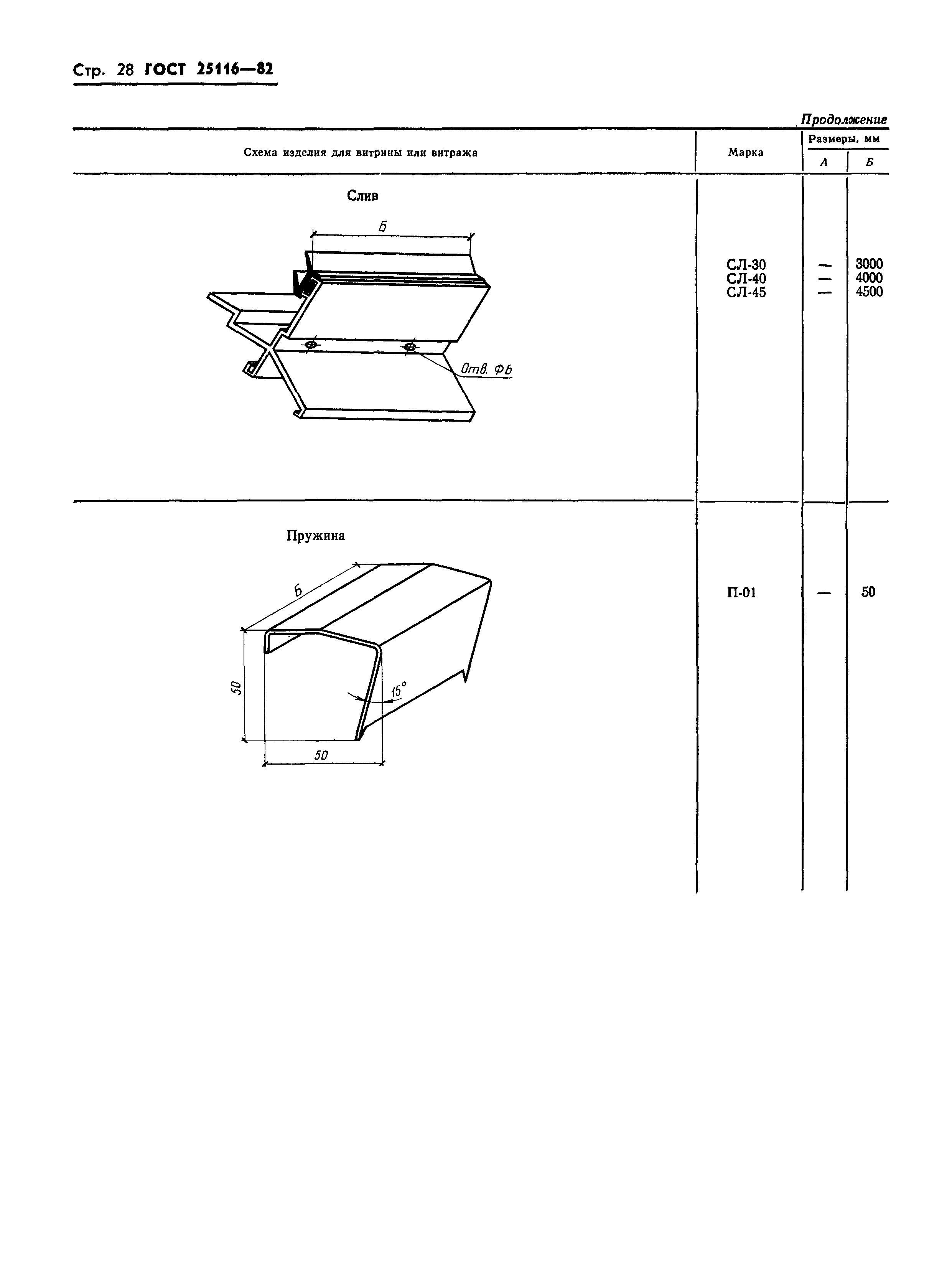
ГОСТ 25116-82 Витрины и витражи из алюминиевых сплавов. Типы, конструкции и размеры
Страницы стандарта


































































