ГОСТ 5382-91 Цементы и материалы цементного производства. Методы химического анализа
ГОСТ
Скачать ГОСТ в PDF или DOC бесплатно
Основная информация
Обозначение:
ГОСТ 5382-91
Статус:
Заменен
Тип:
ГОСТ
Название русское:
Цементы и материалы цементного производства. Методы химического анализа
Название английское:
Cements and materials for cement production. Chemical analysis methods
Даты и сроки
Дата издания:
11-01-02
Дата введения в действие:
06-30-91
Дата завершения срока действия:
06-01-20
Применение и описание
Область и условия применения:
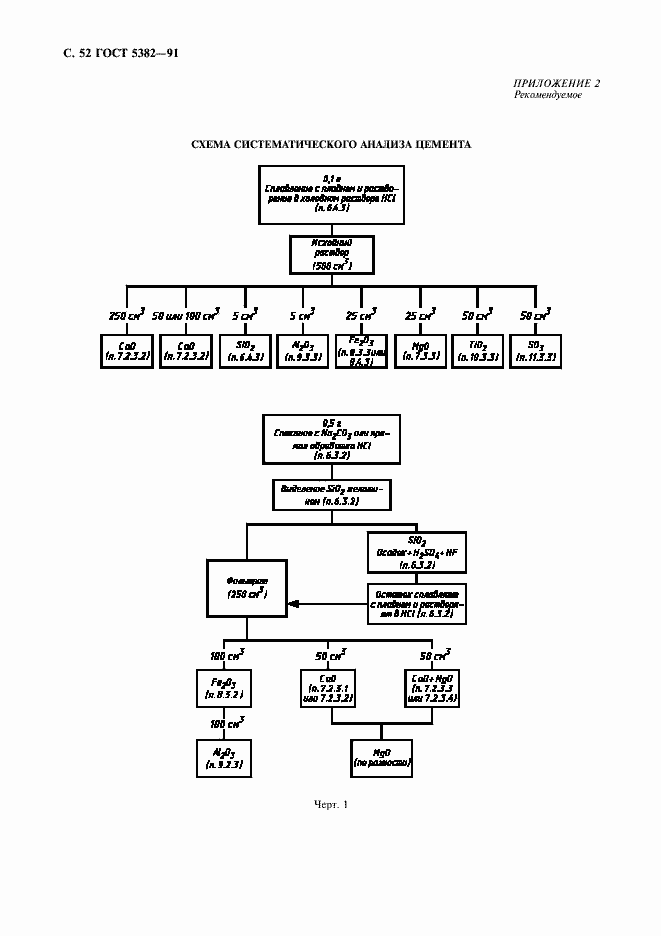
Настоящий стандарт распространяется на цементы, клинкер, сырьевые смеси, минеральные добавки и сырье, применяемые в цементном производстве, и устанавливает нормы точности выполения анализов химического состава, а также методы определения массовой доли влаги, потери при прокаливании, нерастворимого остатка, оксидов кремния, кальция (в том числе свободного), магния, железа, алюминия, титана, серы, калия, натрия, марганца, хрома, фосфора, бария, хлор-иона, фтор-иона
Связи и замены
Заменяющий:
ГОСТ 5382-2019
Взамен:
ГОСТ 5382-73;ГОСТ 9552-76
Описание стандарта
ГОСТ 5382-91 Цементы и материалы цементного производства. Методы химического анализа
Страницы стандарта

























































