ГОСТ 6141-91 Плитки керамические глазурованные для внутренней облицовки стен. Технические условия
ГОСТ
Скачать ГОСТ в PDF или DOC бесплатно
Основная информация
Обозначение:
ГОСТ 6141-91
Статус:
Заменен
Тип:
ГОСТ
Название русское:
Плитки керамические глазурованные для внутренней облицовки стен. Технические условия
Название английское:
Glazed ceramic tiles for lining of the walls. Specifications
Даты и сроки
Дата издания:
09-01-02
Дата введения в действие:
06-30-91
Дата завершения срока действия:
06-01-20
Применение и описание
Область и условия применения:
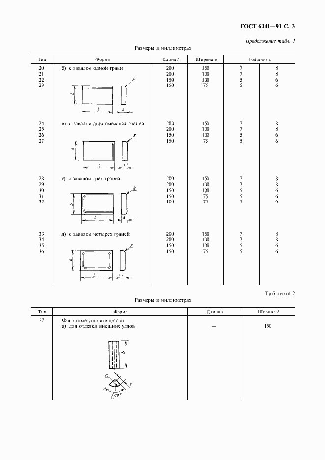
Настоящий стандарт распространяется на керамические глазурованные плитки и фасонные детали к ним. Стандарт не распространяется на плитки, предназначенные для облицовки поверхностей, подверженных механическим воздействиям, влиянию мороза, высоких температур, грунтовых вод и агрессивных сред
Связи и замены
Заменяющий:
ГОСТ 13996-2019
Взамен:
ГОСТ 6141-82
Описание стандарта
ГОСТ 6141-91 Плитки керамические глазурованные для внутренней облицовки стен. Технические условия
Страницы стандарта













