ГОСТ EN 1107-1-2011 Материалы кровельные и гидроизоляционные гибкие битумосодержащие. Метод определения изменения линейных размеров
ГОСТ ЕН
Скачать ГОСТ в PDF или DOC бесплатно
Основная информация
Обозначение:
ГОСТ EN 1107-1-2011
Статус:
Действует
Тип:
ГОСТ ЕН
Название русское:
Материалы кровельные и гидроизоляционные гибкие битумосодержащие. Метод определения изменения линейных размеров
Название английское:
Roofing and hydraulic-insulating flexible bitumen-based materials. Method for determination of linear dimensional change
Даты и сроки
Дата регистрации:
12-08-11
Дата издания:
12-06-19
Дата введения в действие:
07-01-13
Дата завершения срока действия:
-
Применение и описание
Область и условия применения:
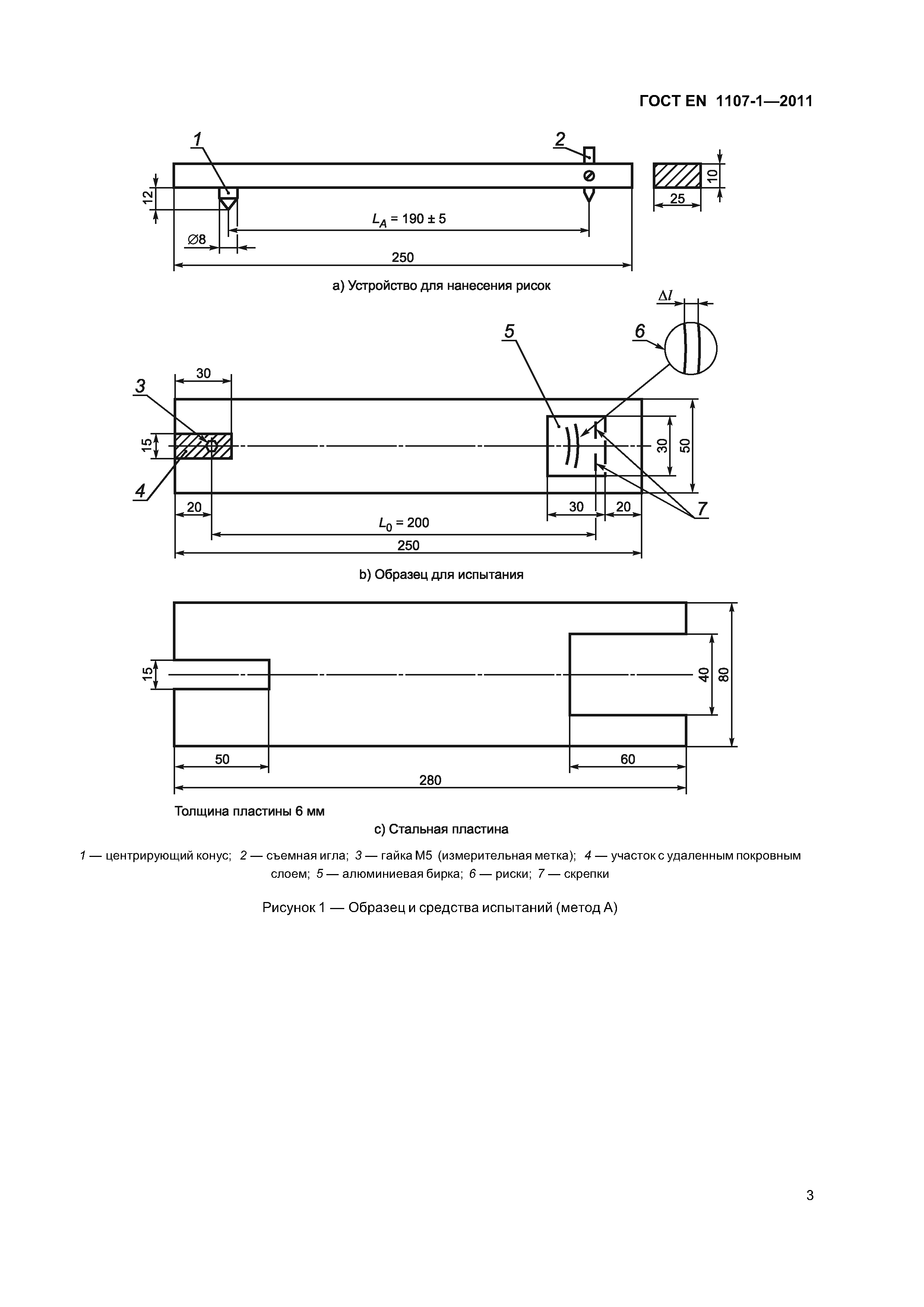
Настоящий стандарт распространяется на кровельные и гидроизоляционные гибкие битумосодержащие материалы и устанавливает метод определения изменения линейных размеров, вызванного релаксацией внутренних напряжений в материале под воздействием нагрева в процессе производства. Настоящий стандарт предназначен для определения характеристик и/или классификации материалов после их изготовления или поставки, до их укладки. Требования настоящего стандарта распространяются только на материалы и не применимы для определения характеристик изготовленных из них гидроизоляционных систем после производства работ. Метод может быть использован для прогнозирования пригодности материалов для целей гидроизоляции в реальных условиях эксплуатации
Связи и замены
Заменяющий:
-
Описание стандарта
ГОСТ EN 1107-1-2011 Материалы кровельные и гидроизоляционные гибкие битумосодержащие. Метод определения изменения линейных размеров
Страницы стандарта













