ГОСТ 33792-2021 Конструкции фасадные светопрозрачные. Методы определения воздухо- и водопроницаемости
ГОСТ
Скачать ГОСТ в PDF или DOC бесплатно
Основная информация
Обозначение:
ГОСТ 33792-2021
Статус:
Действует
Тип:
ГОСТ
Название русское:
Конструкции фасадные светопрозрачные. Методы определения воздухо- и водопроницаемости
Название английское:
Curtain walling. Methods of determination of air and water transmission
Даты и сроки
Дата регистрации:
09-30-21
Дата издания:
10-28-21
Дата введения в действие:
12-01-22
Дата завершения срока действия:
-
Применение и описание
Область и условия применения:
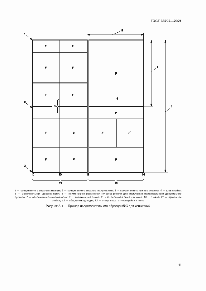
Настоящий стандарт устанавливает: - методы определения воздухо- и водонепроницаемости наружных конструкций фасадных светопрозрачных (КФС) в том числе с открывающимися элементами при положительном и отрицательном статическом давлении воздуха, изготавливаемых из различных материалов и применяемых в зданиях и сооружениях различного назначения. - классификацию КФС по воздухо- и водонепроницаемости. Методы, содержащиеся в настоящем стандарте, применяют при проведении типовых, сертификационных, периодических и других видах лабораторных испытаний
Связи и замены
Заменяющий:
-
Взамен:
ГОСТ 33792-2016
Описание стандарта
ГОСТ 33792-2021 Конструкции фасадные светопрозрачные. Методы определения воздухо- и водопроницаемости
Страницы стандарта






















