ГОСТ Р 59939-2021 Здания и сооружения. Метод определения сопротивления теплопередаче в натурных условиях
ГОСТ Р
Скачать ГОСТ в PDF или DOC бесплатно
Основная информация
Обозначение:
ГОСТ Р 59939-2021
Статус:
Действует
Тип:
ГОСТ Р
Название русское:
Здания и сооружения. Метод определения сопротивления теплопередаче в натурных условиях
Название английское:
Buildings and structures. Method for determining the resistance to heat transfer in field conditions
Даты и сроки
Дата издания:
01-11-22
Дата введения в действие:
01-01-22
Дата завершения срока действия:
-
Применение и описание
Область и условия применения:
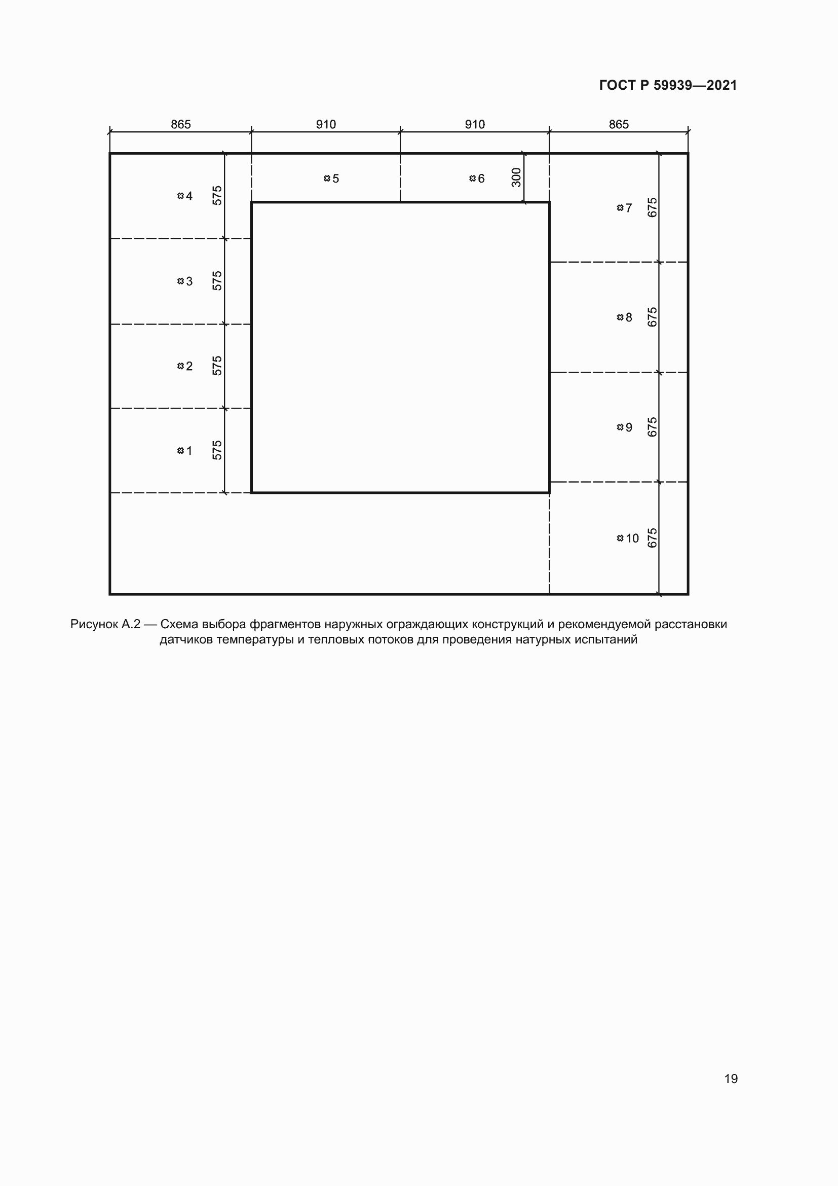
Настоящий стандарта распространяется на непрозрачные ограждающие конструкции, отделяющие помещения здания от наружной среды или разделяющие помещения с различными температурно-влажностными условиями, за исключением светопрозрачных ограждающих конструкций. В настоящем стандарте рассмотрены два типа ограждений. Первый тип ограждений относится к оболочке здания и взаимодействует с наружной средой климатического района строительства (наружные стены, покрытия, перекрытия чердачные, цокольные и над подъездами, контактирующие с наружным грунтом). Ко второму типу ограждений относятся внутренние стены и перекрытия, разделяющие помещения с различными температурно-влажностными условиями эксплуатации
Связи и замены
Заменяющий:
-
Описание стандарта
ГОСТ Р 59939-2021 Здания и сооружения. Метод определения сопротивления теплопередаче в натурных условиях
Страницы стандарта























