ГОСТ 25298-82 Установки компактные для очистки бытовых сточных вод. Типы, основные параметры и размеры
ГОСТ
Скачать ГОСТ в PDF или DOC бесплатно
Основная информация
Обозначение:
ГОСТ 25298-82
Статус:
Действует
Тип:
ГОСТ
Название русское:
Установки компактные для очистки бытовых сточных вод. Типы, основные параметры и размеры
Название английское:
Compact treatment plants for domestic sewage water. Types, basic parameters and dimensions
Даты и сроки
Дата издания:
10-01-03
Дата введения в действие:
01-01-83
Дата завершения срока действия:
-
Применение и описание
Область и условия применения:
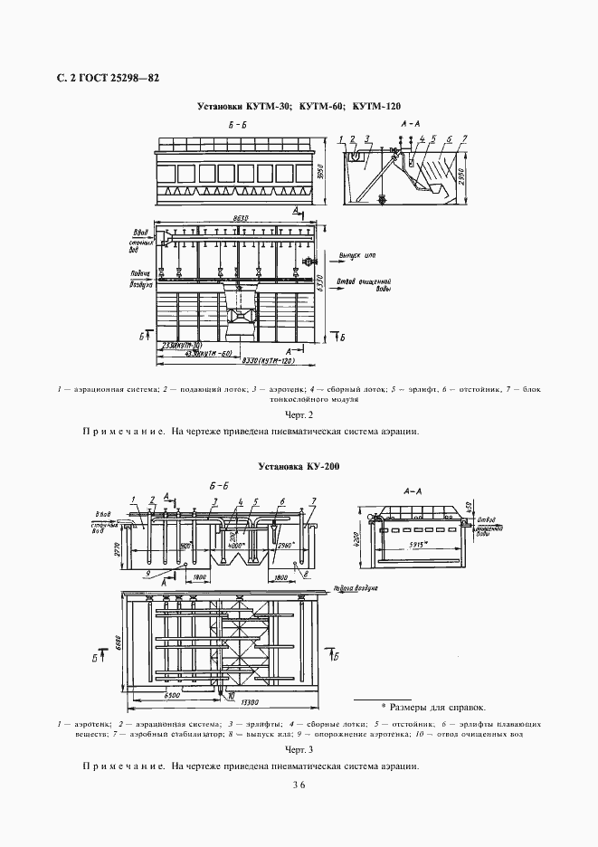
Настоящий стандарт распространяется на компактные установки заводского изготовления, предназначенные для полной биологической очистки бытовых сточных вод, а также производственных сточных вод, близких по составу к бытовым, или их смесей
Связи и замены
Заменяющий:
-
Изменения и переиздания
Список изменений:
№1 от (рег. ) «Срок действия продлен»
Описание стандарта
ГОСТ 25298-82 Установки компактные для очистки бытовых сточных вод. Типы, основные параметры и размеры
Страницы стандарта



