ГОСТ Р 56817-2015 Стены наружные ненесущие каркасного типа со светопропускающим заполнением проемов. Методы испытаний на огнестойкость и пожарную опасность
ГОСТ Р
Скачать ГОСТ в PDF или DOC бесплатно
Основная информация
Обозначение:
ГОСТ Р 56817-2015
Статус:
Действует
Тип:
ГОСТ Р
Название русское:
Стены наружные ненесущие каркасного типа со светопропускающим заполнением проемов. Методы испытаний на огнестойкость и пожарную опасность
Название английское:
Building structures. Fire-resistanse test method. External weight out walls
Даты и сроки
Дата издания:
02-08-16
Дата введения в действие:
07-01-16
Дата завершения срока действия:
-
Применение и описание
Область и условия применения:
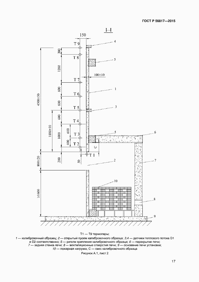
Настоящий стандарт устанавливает методы испытаний на огнестойкость и пожарную опасность с внешней стороны наружных ненесущих стен каркасного типа с непожаростойким светопропускающим заполнением проемов
Связи и замены
Заменяющий:
-
Описание стандарта
ГОСТ Р 56817-2015 Стены наружные ненесущие каркасного типа со светопропускающим заполнением проемов. Методы испытаний на огнестойкость и пожарную опасность
Страницы стандарта



























