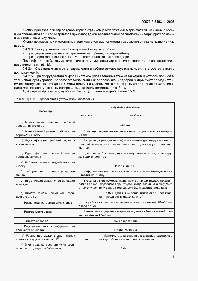
ГОСТ Р 51631-2008 Лифты пассажирские. Технические требования доступности, включая доступность для инвалидов и других маломобильных групп населения
ГОСТ Р
Скачать ГОСТ в PDF или DOC бесплатно
Основная информация
Обозначение:
ГОСТ Р 51631-2008
Статус:
Отменен
Тип:
ГОСТ Р
Название русское:
Лифты пассажирские. Технические требования доступности, включая доступность для инвалидов и других маломобильных групп населения
Название английское:
Passenger lifts. Technical requirements of accessibility for persons including persons with disability
Даты и сроки
Дата издания:
08-25-08
Дата введения в действие:
07-01-09
Дата завершения срока действия:
01-01-17
Применение и описание
Область и условия применения:
Настоящий стандарт устанавливает минимальные требования безопасности, а также требования обеспечения безопасного входа (выхода) и использования пассажирских лифтов лицами, относящимися к инвалидам и другим маломобильным группам населения. Требования настоящего стандарта распространяются на лифты, оборудованные автоматическими горизонтально-раздвижными дверями кабины и шахты
Связи и замены
Заменяющий:
-
Взамен:
ГОСТ Р 51631-2000
Изменения и переиздания
Список изменений:
№0 от (рег. ) «Текстовое изменение; Изменено заглавие»
Описание стандарта
ГОСТ Р 51631-2008 Лифты пассажирские. Технические требования доступности, включая доступность для инвалидов и других маломобильных групп населения
Страницы стандарта






















