ГОСТ 23695-2016 Приборы санитарно-технические стальные эмалированные. Технические условия
ГОСТ
Скачать ГОСТ в PDF или DOC бесплатно
Основная информация
Обозначение:
ГОСТ 23695-2016
Статус:
Действует
Тип:
ГОСТ
Название русское:
Приборы санитарно-технические стальные эмалированные. Технические условия
Название английское:
Enameled steel sanitary equipment. Specifications
Даты и сроки
Дата регистрации:
08-31-16
Дата издания:
12-09-19
Дата введения в действие:
04-01-17
Дата завершения срока действия:
-
Применение и описание
Область и условия применения:
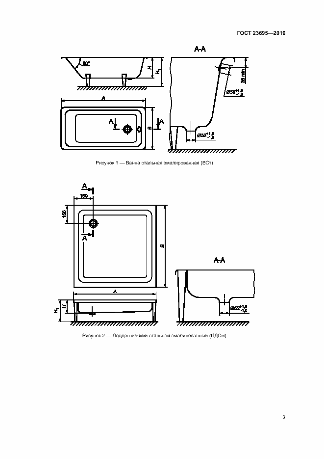
Настоящий стандарт распространяется на санитарно-технические стальные эмалированные приборы (далее - приборы): ванны, душевые поддоны, мойки, устанавливаемые в зданиях различного назначения
Связи и замены
Заменяющий:
-
Взамен:
ГОСТ 23695-94
Описание стандарта
ГОСТ 23695-2016 Приборы санитарно-технические стальные эмалированные. Технические условия
Страницы стандарта


















