ГОСТ Р 53780-2010 Лифты. Общие требования безопасности к устройству и установке
ГОСТ Р
Скачать ГОСТ в PDF или DOC бесплатно
Основная информация
Обозначение:
ГОСТ Р 53780-2010
Статус:
Действует
Тип:
ГОСТ Р
Название русское:
Лифты. Общие требования безопасности к устройству и установке
Название английское:
Lifts. General safety requirements for the construction and installation
Даты и сроки
Дата издания:
12-23-11
Дата введения в действие:
03-20-20
Дата завершения срока действия:
-
Применение и описание
Область и условия применения:
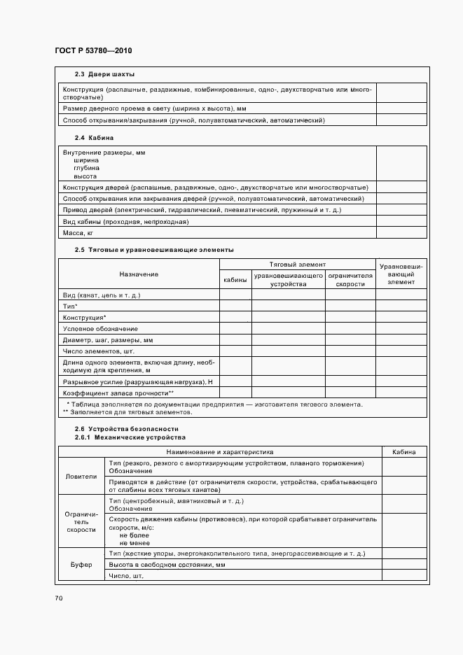
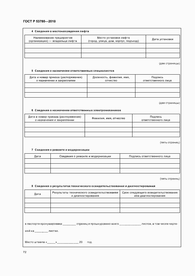
Настоящий стандарт устанавливает общие требования безопасности к конструкции и установке в зданиях, сооружениях новых электрических лифтов с приводом трения, приводом с барабаном или звездочкой и гидравлических лифтов. Настоящий стандарт допускается использовать при замене отработавших назначенный срок лифтов в качестве нормативной базы. Специальные требования к лифтам, обеспечивающим доступность для инвалидов и других маломобильных групп населения, установлены в ГОСТ Р 51631. Специальные требования к лифтам, обеспечивающим транспортирование пожарных во время пожара, установлены в ГОСТ Р 52382
Связи и замены
Заменяющий:
-
Заменяющий в части:
ГОСТ Р 56943-2016 в части общих требований безопасности к устройству и установке лифтов для транспортирования грузов без сопровождения людьми
Изменения и переиздания
Список изменений:
№0 от (рег. ) «Текстовое изменение; Изменено заглавие»
Описание стандарта
ГОСТ Р 53780-2010 Лифты. Общие требования безопасности к устройству и установке
Страницы стандарта

















































































