ГОСТ Р 70064.3-2022 Фильтры очистки воздуха общего назначения. Часть 3. Определение зависимости пылезадерживающей способности и перепада давления от массы уловленной контрольной пыли
ГОСТ Р
Скачать ГОСТ в PDF или DOC бесплатно
Основная информация
Обозначение:
ГОСТ Р 70064.3-2022
Статус:
Действует
Тип:
ГОСТ Р
Название русское:
Фильтры очистки воздуха общего назначения. Часть 3. Определение зависимости пылезадерживающей способности и перепада давления от массы уловленной контрольной пыли
Название английское:
Air filters for general ventilation. Part 3. Determination of the gravimetric efficiency and the air flow resistance versus the mass of test dust captured
Даты и сроки
Дата издания:
09-23-22
Дата введения в действие:
01-01-23
Дата завершения срока действия:
01-01-26
Применение и описание
Область и условия применения:
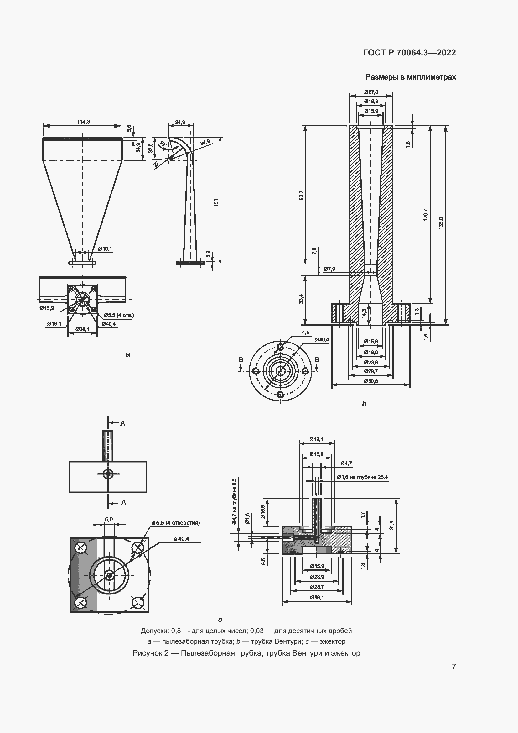
Настоящий стандарт устанавливает испытательное оборудование и методики испытаний для определения пылезадерживающей способности и перепада давления фильтров очистки воздуха общего назначения. Настоящий стандарт предназначен для применения вместе с ГОСТ Р 70064.1, ГОСТ Р 70064.2 и ГОСТ Р 70064.4. Метод испытаний, установленный в настоящем стандарте, применим при расходе воздуха в испытательном стенде с номинальной площадью поперечного сечения 610 Ч 610 мм в диапазоне от 0,25 до 1,5 м3/с. Все стандарты серии ГОСТ Р 70064 применяют для фильтров очистки воздуха общего назначения, имеющих эффективность ePM1 не более 99 % и ePM10 более 20 % при проведении испытаний в соответствии с процедурами, установленными в стандартах серии ГОСТ Р 70064
Связи и замены
Заменяющий:
ГОСТ Р 71490-2024
Описание стандарта
ГОСТ Р 70064.3-2022 Фильтры очистки воздуха общего назначения. Часть 3. Определение зависимости пылезадерживающей способности и перепада давления от массы уловленной контрольной пыли
Страницы стандарта



























