ГОСТ 14098-91 Соединения сварные арматуры и закладных изделий железобетонных конструкций. Типы, конструкции и размеры
ГОСТ
Скачать ГОСТ в PDF или DOC бесплатно
Основная информация
Обозначение:
ГОСТ 14098-91
Статус:
Заменен
Тип:
ГОСТ
Название русское:
Соединения сварные арматуры и закладных изделий железобетонных конструкций. Типы, конструкции и размеры
Название английское:
Welded joints of reinforcement and inserts for reinforced concrete structures. Types, constructions and dimensions
Даты и сроки
Дата издания:
07-01-07
Дата введения в действие:
06-30-92
Дата завершения срока действия:
07-01-15
Применение и описание
Область и условия применения:
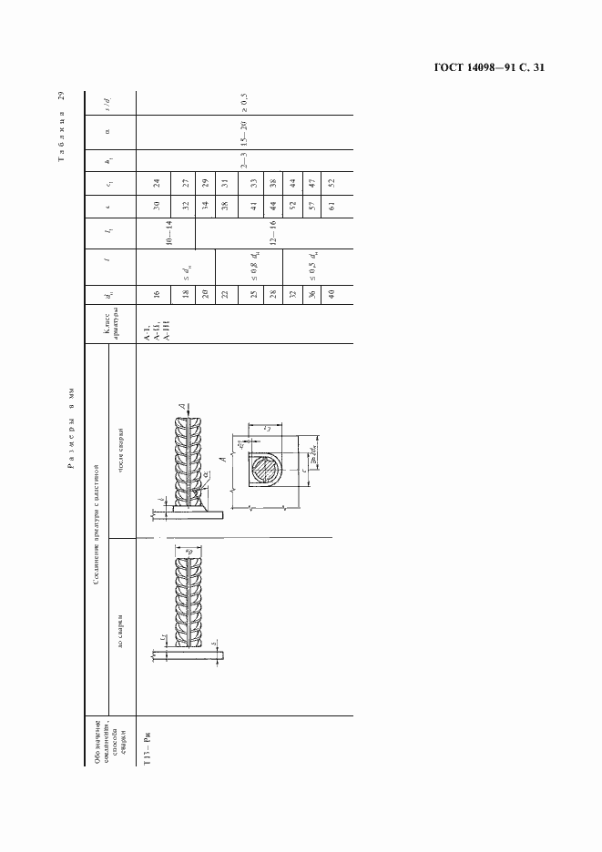
Настоящий стандарт распространяется на сварные соединения стержневой арматуры и арматурной проволоки диаметром 3 мм и более, сварные соединения стержневой арматуры с прокатом толщиной от 4 до 30 мм, выполняемые при изготовлении арматурных и закладных изделий железобетонных конструкций, а также при монтаже сборных и возведении монолитных железобетонных конструкций. Стандарт не распространяется на сварные соединения закладных изделий, не имеющих анкерных стержней из арматурной стали
Связи и замены
Заменяющий:
ГОСТ 14098-2014
Взамен:
ГОСТ 14098-85
Описание стандарта
ГОСТ 14098-91 Соединения сварные арматуры и закладных изделий железобетонных конструкций. Типы, конструкции и размеры
Страницы стандарта








































