ГОСТ Р 52750-2007 Устройства экстренного открывания дверей эвакуационных и аварийных выходов. Технические условия
ГОСТ Р
Скачать ГОСТ в PDF или DOC бесплатно
Основная информация
Обозначение:
ГОСТ Р 52750-2007
Статус:
Отменен
Тип:
ГОСТ Р
Название русское:
Устройства экстренного открывания дверей эвакуационных и аварийных выходов. Технические условия
Название английское:
Panic and emergency exit devices. Specifications
Даты и сроки
Дата издания:
12-24-07
Дата введения в действие:
06-01-08
Дата завершения срока действия:
07-01-13
Применение и описание
Область и условия применения:
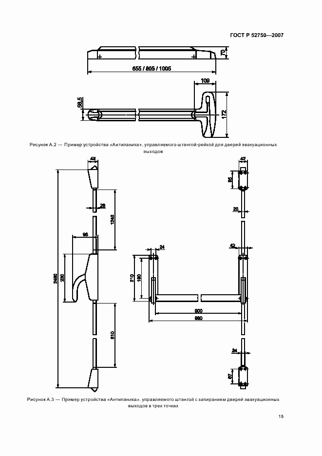
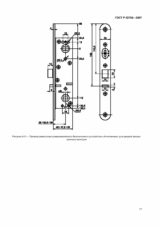
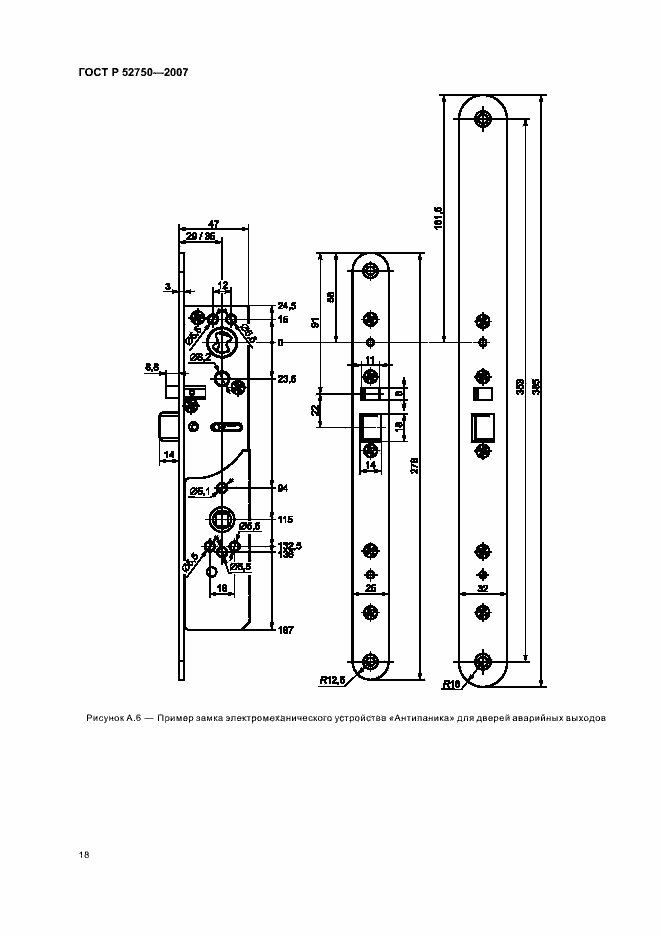
Настоящий стандарт распространяется на устройства экстренного открывания дверей эвакуационных и аварийных выходов общественных, производственных, жилых зданий и сооружений различного назначения с массовым пребыванием людей (торговые центры, больницы, школьные и дошкольные учреждения, залы ожидания и обслуживания вокзалов и аэропортов, киноконцертные, спортивно-зрелищные и т.п.) в случае возникновения пожара или другой чрезвычайной ситуации, с целью обеспечения безопасности и эффективной эвакуации людей, материальных ценностей, а также снижения вероятности воздействия на людей опасных факторов пожара или другой чрезвычайной ситуации
Связи и замены
Заменяющий:
-
Изменения и переиздания
Список изменений:
№0 от (рег. ) «Текстовое изменение; Изменено заглавие»
Описание стандарта
ГОСТ Р 52750-2007 Устройства экстренного открывания дверей эвакуационных и аварийных выходов. Технические условия
Страницы стандарта



























