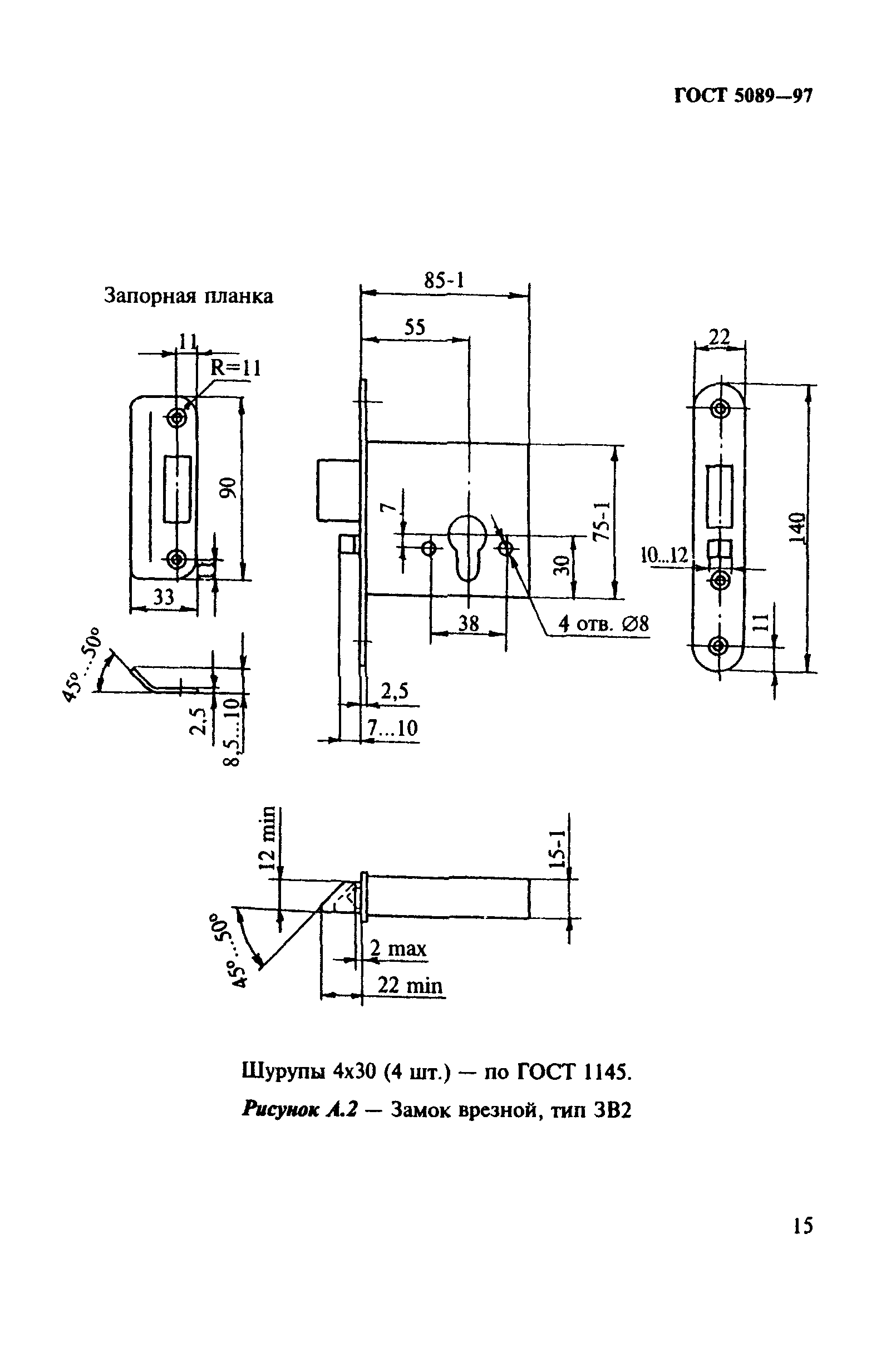
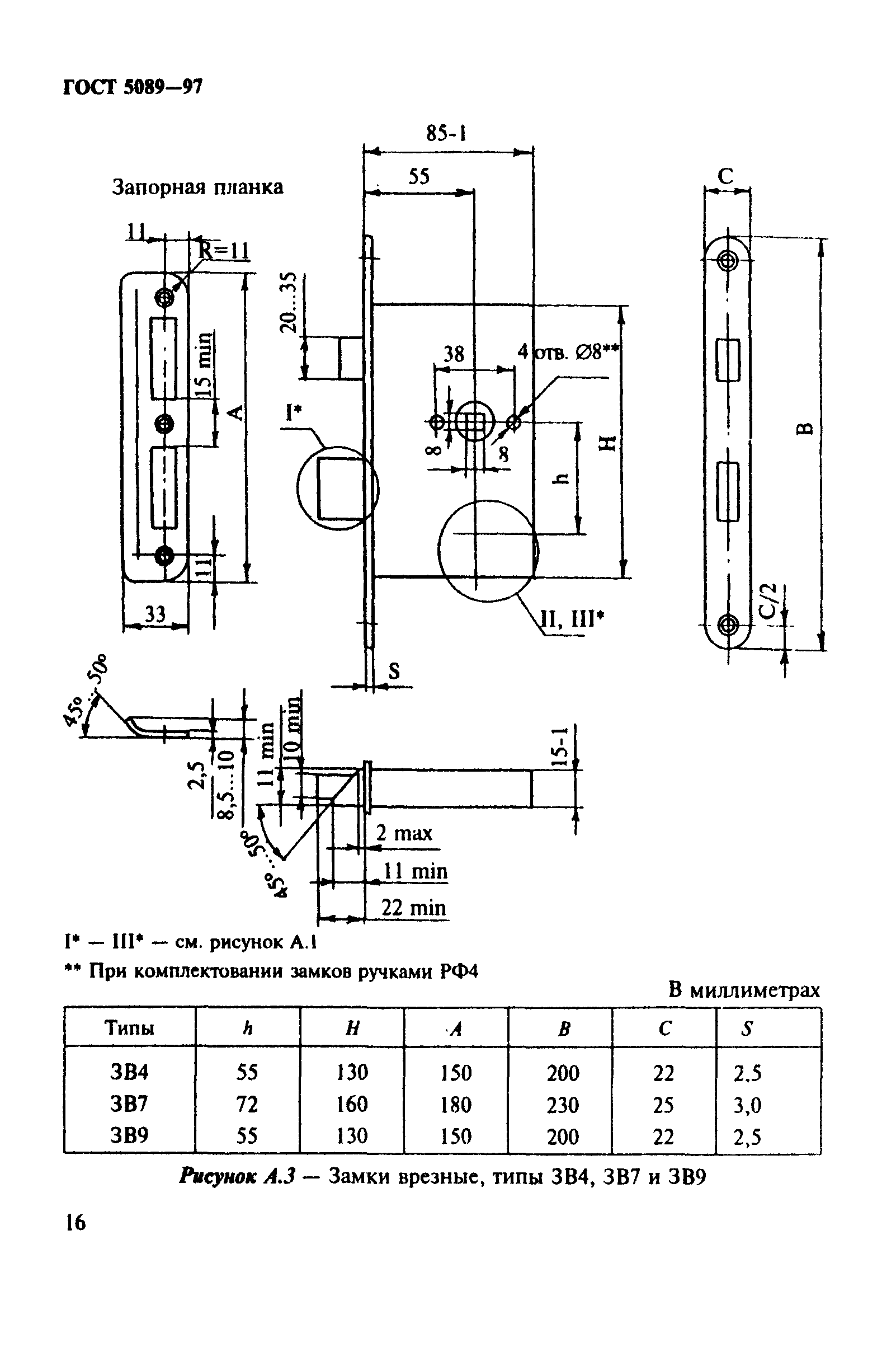
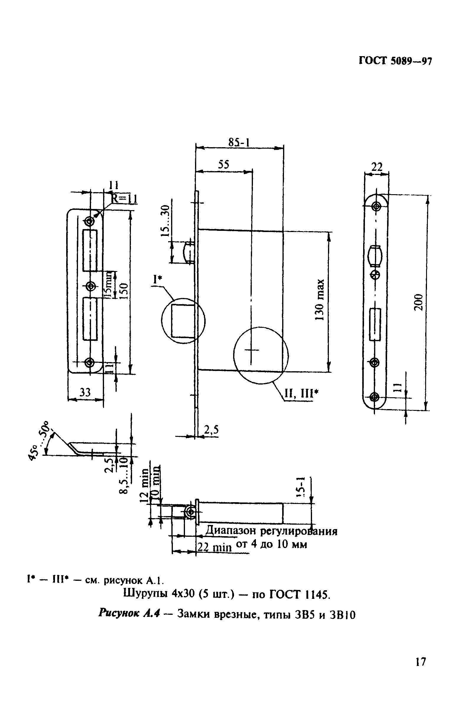
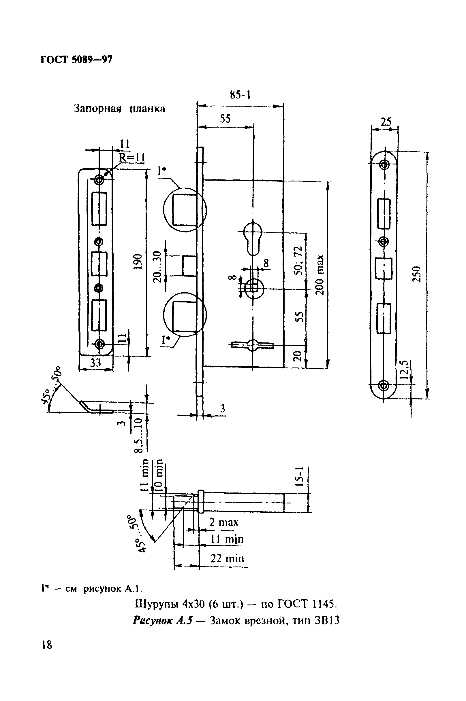
ГОСТ 5089-97 Замки и защелки для дверей. Технические условия
ГОСТ
Скачать ГОСТ в PDF или DOC бесплатно
Основная информация
Обозначение:
ГОСТ 5089-97
Статус:
Заменен
Тип:
ГОСТ
Название русское:
Замки и защелки для дверей. Технические условия
Название английское:
Locks and latches for doors. Specifications
Даты и сроки
Дата регистрации:
04-23-97
Дата издания:
12-04-97
Дата введения в действие:
01-01-98
Дата завершения срока действия:
03-01-04
Применение и описание
Область и условия применения:
Настоящий стандарт распространяется на замки и защелки для дверей, применяемых в жилых и общественных зданиях
Связи и замены
Заменяющий:
ГОСТ 5089-2003
Взамен:
ГОСТ 5089-90
Описание стандарта
ГОСТ 5089-97 Замки и защелки для дверей. Технические условия
Страницы стандарта




















































