ГОСТ EN 12001-2012 Машины для транспортирования, нанесения и распределения бетонных и растворных смесей. Требования безопасности
ГОСТ ЕН
Скачать ГОСТ в PDF или DOC бесплатно
Основная информация
Обозначение:
ГОСТ EN 12001-2012
Статус:
Действует
Тип:
ГОСТ ЕН
Название русское:
Машины для транспортирования, нанесения и распределения бетонных и растворных смесей. Требования безопасности
Название английское:
Conveying, spraying and placing machines for concrete and mortar. Safety requirements
Даты и сроки
Дата регистрации:
12-03-12
Дата издания:
08-01-14
Дата введения в действие:
07-01-14
Дата завершения срока действия:
-
Применение и описание
Область и условия применения:
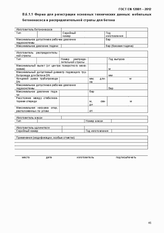
Настоящий стандарт устанавливает требования безопасности к следующим строительным машинам: - машинам для транспортирования бетонных и растворных смесей; - машинам для распределения бетонных и растворных смесей; - машинам для нанесения бетонных или растворных смесей или их компонентов. Настоящий стандарт распространяется на стационарные и мобильные машины. Настоящий стандарт не распространяется на шасси транспортных средств, на которые устанавливают машины и мотор(ы) машины, который(ые) не приводит(ят)ся в действие главным двигателем при транспортировании, нанесении и распределении бетонных и растворных смесей
Связи и замены
Заменяющий:
-
Изменения и переиздания
Список изменений:
№0 от (рег. ) «Дата введения перенесена»
Описание стандарта
ГОСТ EN 12001-2012 Машины для транспортирования, нанесения и распределения бетонных и растворных смесей. Требования безопасности
Страницы стандарта












































































