ГОСТ Р 70573-2022 Элементы облицовки, узлы и детали крепления фасадных навесных вентилируемых конструкций. Параметры долговечности
ГОСТ Р
Скачать ГОСТ в PDF или DOC бесплатно
Основная информация
Обозначение:
ГОСТ Р 70573-2022
Статус:
Действует
Тип:
ГОСТ Р
Название русское:
Элементы облицовки, узлы и детали крепления фасадных навесных вентилируемых конструкций. Параметры долговечности
Название английское:
Wall cladding, connecting units and fastening parts of ventilated facade constructions. Durability parameters
Даты и сроки
Дата издания:
01-09-23
Дата введения в действие:
02-01-23
Дата завершения срока действия:
-
Применение и описание
Область и условия применения:
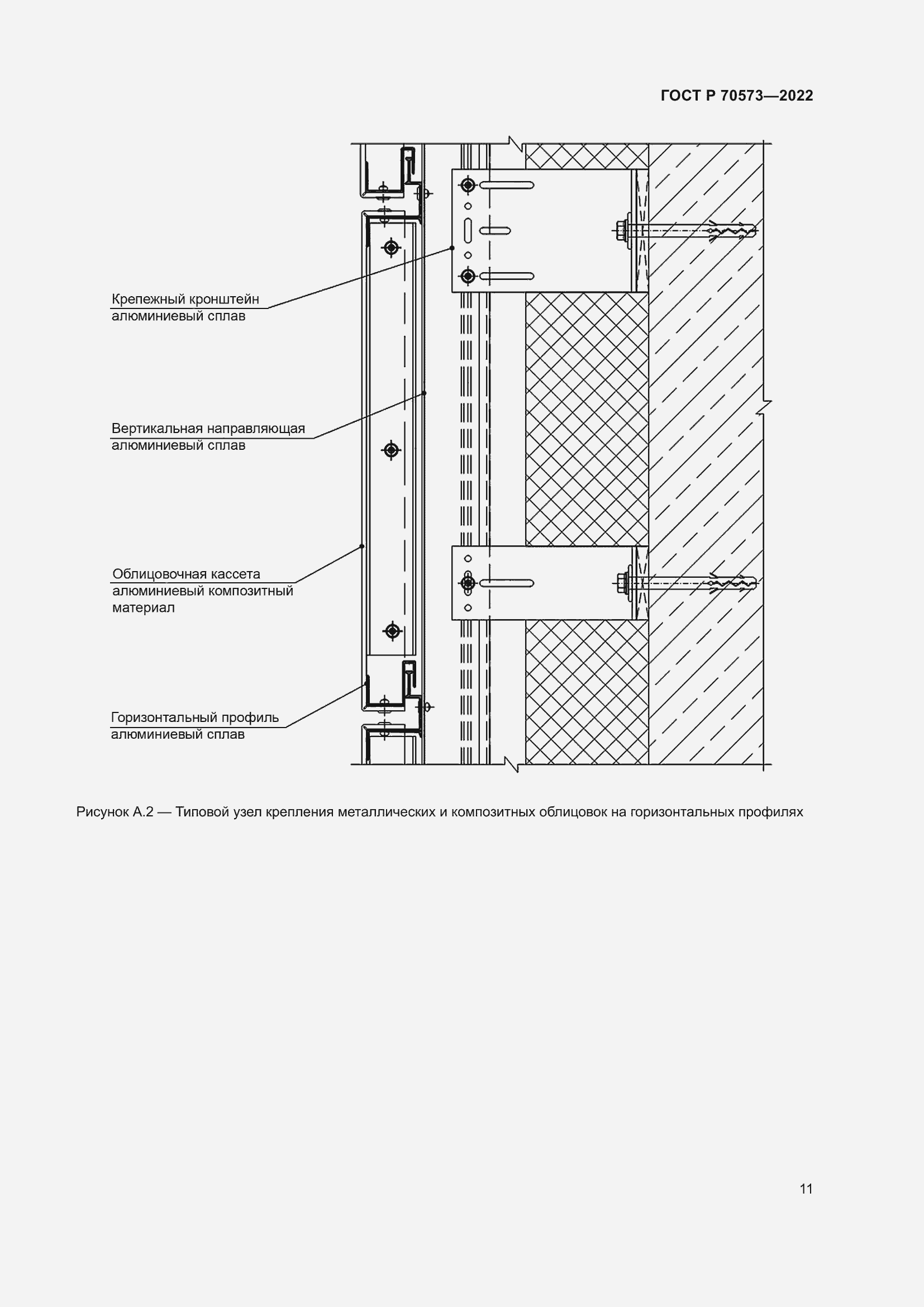
Настоящий стандарт устанавливает параметры долговечности, характеризующие сохранение эксплуатационных свойств металлических облицовок, композитных материалов, узлов и деталей крепления в навесных фасадных вентилируемых конструкциях, применяемых при строительстве, реконструкции и капитальном ремонте зданий и сооружений в различных условиях эксплуатации
Связи и замены
Заменяющий:
-
Описание стандарта
ГОСТ Р 70573-2022 Элементы облицовки, узлы и детали крепления фасадных навесных вентилируемых конструкций. Параметры долговечности
Страницы стандарта



















