ГОСТ Р 52748-2007 Дороги автомобильные общего пользования. Нормативные нагрузки, расчетные схемы нагружения и габариты приближения
ГОСТ Р
Скачать ГОСТ в PDF или DOC бесплатно
Основная информация
Обозначение:
ГОСТ Р 52748-2007
Статус:
Отменен
Тип:
ГОСТ Р
Название русское:
Дороги автомобильные общего пользования. Нормативные нагрузки, расчетные схемы нагружения и габариты приближения
Название английское:
Automobile roads of the general useg. Standard loads, loading systems and clearance approaches
Даты и сроки
Дата издания:
01-18-08
Дата введения в действие:
01-01-08
Дата завершения срока действия:
12-22-22
Применение и описание
Область и условия применения:
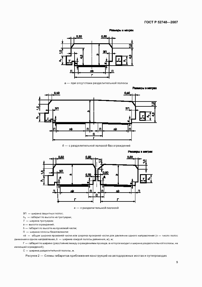
Настоящий стандарт распространяется на проектирование строительства, реконструкции автомобильных дорог общего пользования и устанавливает для этих дорог нормативные нагрузки, расчетные схемы нагружения и габариты приближений. Настоящий стандарт не распространяется на проектирование временных автомобильных дорог различного назначения (сооружаемые на срок службы менее 5 лет) и автозимников. Требования стандарта не являются основанием для проектирования автотранспортных средств
Связи и замены
Заменяющий:
-
Изменения и переиздания
Список изменений:
№0 от (рег. ) «Дата введения перенесена» №0 от (рег. ) «Дата введения перенесена»
Описание стандарта
ГОСТ Р 52748-2007 Дороги автомобильные общего пользования. Нормативные нагрузки, расчетные схемы нагружения и габариты приближения
Страницы стандарта

















Приложение №1: Поправка к ГОСТ Р 52748-2007 Обозначение: Поправка к ГОСТ Р 52748-2007 Дата введения в действие: 01.07.2008

Приложение №1: Поправка к ГОСТ Р 52748-2007 Обозначение: Поправка к ГОСТ Р 52748-2007 Дата введения в действие: 01.07.2008

Приложение №1: Поправка к ГОСТ Р 52748-2007 Обозначение: Поправка к ГОСТ Р 52748-2007 Дата введения в действие: 01.07.2008

Приложение №1: Поправка к ГОСТ Р 52748-2007 Обозначение: Поправка к ГОСТ Р 52748-2007 Дата введения в действие: 01.07.2008

Приложение №2: Поправка к ГОСТ Р 52748-2007 Обозначение: Поправка к ГОСТ Р 52748-2007 Дата введения в действие: 27.03.2008
