ГОСТ Р 55421-2013 Дороги автомобильные общего пользования. Эмульсии битумные дорожные катионные. Метод определения условной вязкости
ГОСТ Р
Скачать ГОСТ в PDF или DOC бесплатно
Основная информация
Обозначение:
ГОСТ Р 55421-2013
Статус:
Заменен
Тип:
ГОСТ Р
Название русское:
Дороги автомобильные общего пользования. Эмульсии битумные дорожные катионные. Метод определения условной вязкости
Название английское:
General use highways. Emulsion bitumen road cationic. Method for determination of apparent viscosity
Даты и сроки
Дата издания:
09-27-19
Дата введения в действие:
09-01-13
Дата завершения срока действия:
12-01-20
Применение и описание
Область и условия применения:
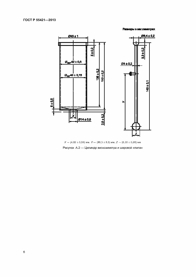
Настоящий стандарт распространяется на эмульсии битумные дорожные катионные (далее - эмульсии), применяемые для дорожного строительства. Настоящий стандарт устанавливает метод определения условной вязкости битумной эмульсии
Связи и замены
Заменяющий:
ГОСТ Р 58952.6-2020
Описание стандарта
ГОСТ Р 55421-2013 Дороги автомобильные общего пользования. Эмульсии битумные дорожные катионные. Метод определения условной вязкости
Страницы стандарта










