ГОСТ Р 51378-99 Оборудование газовое с атмосферными инжекционными горелками для предприятий общественного питания. Требования безопасности и методы испытаний
ГОСТ Р
Скачать ГОСТ в PDF или DOC бесплатно
Основная информация
Обозначение:
ГОСТ Р 51378-99
Статус:
Заменен
Тип:
ГОСТ Р
Название русское:
Оборудование газовое с атмосферными инжекционными горелками для предприятий общественного питания. Требования безопасности и методы испытаний
Название английское:
Gas heated catering equipment with atmospheric burners if injection type. Safety requirements and test methods
Даты и сроки
Дата издания:
02-09-00
Дата введения в действие:
01-01-01
Дата завершения срока действия:
01-01-14
Применение и описание
Область и условия применения:
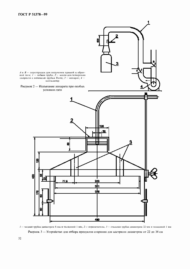
Настоящий стандарт устанавливает требования безопасности и методы испытаний, предъявляемые к конструкции и рабочим характеристикам газовых нагревательных аппаратов для общественного питания с атмосферными инжекционными горелками. Стандарт распространяется на все газовые нагревательные аппараты для общественного питания, предназначенные для приготовления пищи. Стандарт не распространяется на: - аппараты с горелками полного предварительного смещения; - аппараты типа В2 (без стабилизатора тяги)
Связи и замены
Заменяющий:
ГОСТ Р 55211-2012
Описание стандарта
ГОСТ Р 51378-99 Оборудование газовое с атмосферными инжекционными горелками для предприятий общественного питания. Требования безопасности и методы испытаний
Страницы стандарта






































