ГОСТ 17524.4-93 Мебель для предприятий общественного питания. Функциональные размеры сервантов официантских
ГОСТ
Скачать ГОСТ в PDF или DOC бесплатно
Основная информация
Обозначение:
ГОСТ 17524.4-93
Статус:
Действует
Тип:
ГОСТ
Название русское:
Мебель для предприятий общественного питания. Функциональные размеры сервантов официантских
Название английское:
Furniture for catering establishments. Functional dimensions of cupboards for waiters
Даты и сроки
Дата издания:
08-01-94
Дата введения в действие:
01-01-95
Дата завершения срока действия:
-
Применение и описание
Область и условия применения:
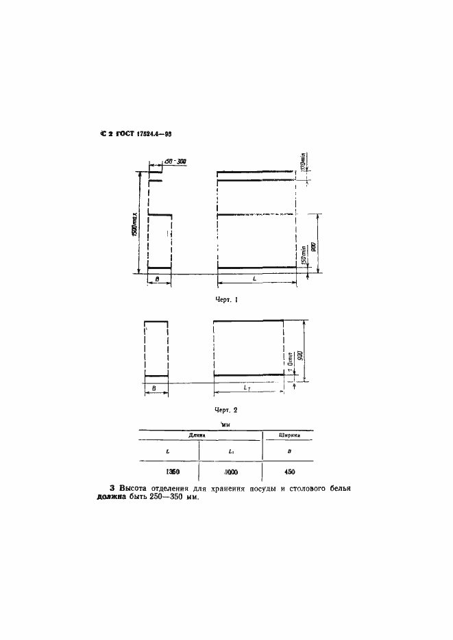
Настоящий стандарт распространяется на мебель для предприятий общественного питания и устанавливает функциональные размеры большого и малого официантских сервантов и отделений в них для хранения тарелок, пепельниц, салфеток, столового белья и столовых приборов. Стандарт не распространяется на официантские серванты, изготовляемые по специальным заказам
Связи и замены
Заменяющий:
-
Взамен:
ГОСТ 17524.4-72
Описание стандарта
ГОСТ 17524.4-93 Мебель для предприятий общественного питания. Функциональные размеры сервантов официантских
Страницы стандарта





