ГОСТ 19301.3-2016 Мебель детская дошкольная. Функциональные размеры кроватей
ГОСТ
Скачать ГОСТ в PDF или DOC бесплатно
Основная информация
Обозначение:
ГОСТ 19301.3-2016
Статус:
Заменен
Тип:
ГОСТ
Название русское:
Мебель детская дошкольная. Функциональные размеры кроватей
Название английское:
Furniture for children under school age. Functional dimensions of beds
Даты и сроки
Дата регистрации:
04-20-16
Дата издания:
09-24-19
Дата введения в действие:
10-01-17
Дата завершения срока действия:
01-01-23
Применение и описание
Область и условия применения:
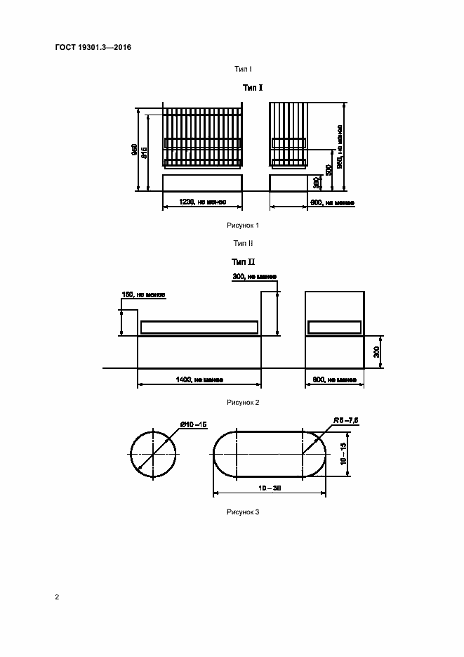
Настоящий стандарт распространяется на детские кровати, предназначенные для использования в спальных помещениях дошкольных учреждений и в быту, и устанавливает их функциональные размеры
Связи и замены
Заменяющий:
ГОСТ 19301.3-2022
Взамен:
ГОСТ 19301.3-94
Описание стандарта
ГОСТ 19301.3-2016 Мебель детская дошкольная. Функциональные размеры кроватей
Страницы стандарта






