ГОСТ 34614.4-2019 Оборудование и покрытия игровых площадок. Часть 4. Дополнительные требования безопасности и методы испытаний канатных дорог
ГОСТ
Скачать ГОСТ в PDF или DOC бесплатно
Основная информация
Обозначение:
ГОСТ 34614.4-2019
Статус:
Действует
Тип:
ГОСТ
Название русское:
Оборудование и покрытия игровых площадок. Часть 4. Дополнительные требования безопасности и методы испытаний канатных дорог
Название английское:
Playground equipment and surfacing. Part 4. Additional specific safety requirements and test methods for cableways
Даты и сроки
Дата регистрации:
11-29-19
Дата издания:
12-19-19
Дата введения в действие:
08-01-20
Дата завершения срока действия:
-
Применение и описание
Область и условия применения:
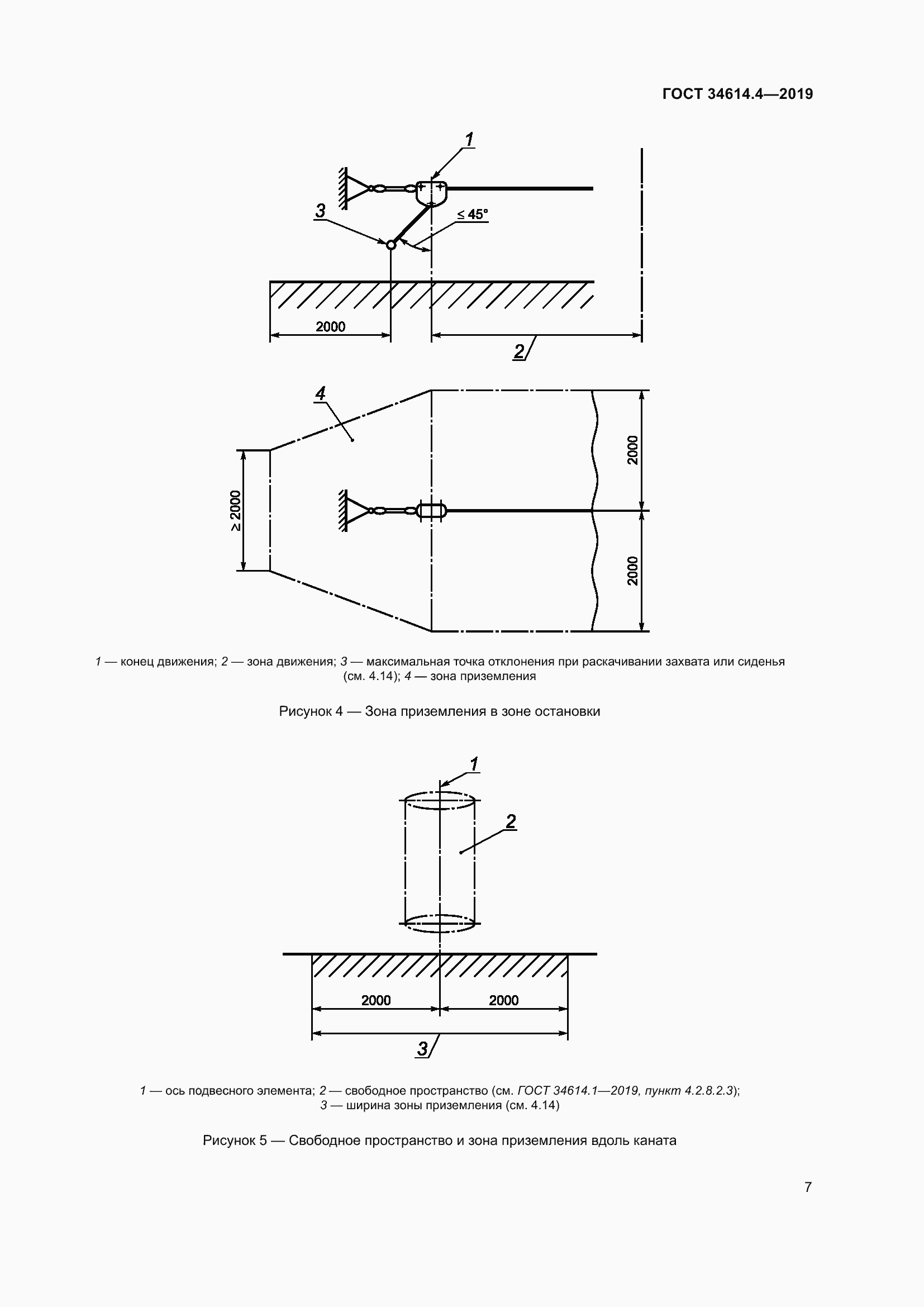
Настоящий стандарт распространяется на канатные дороги, по которым или вдоль которых перемещаются дети под действием собственной массы. Настоящий стандарт устанавливает дополнительные требования безопасности к стационарно устанавливаемым детским канатным дорогам
Связи и замены
Заменяющий:
-
Описание стандарта
ГОСТ 34614.4-2019 Оборудование и покрытия игровых площадок. Часть 4. Дополнительные требования безопасности и методы испытаний канатных дорог
Страницы стандарта


















Приложение №1: Поправка к ГОСТ 34614.4-2019 Обозначение: Поправка к ГОСТ 34614.4-2019 Дата введения в действие: 13.03.2020

Приложение №2: Поправка к ГОСТ 34614.4-2019 Обозначение: Поправка к ГОСТ 34614.4-2019 Дата введения в действие: 23.01.2024
