ГОСТ Р 55675-2013 Оборудование гимнастическое. Перекладины. Требования и методы испытаний с учетом безопасности
ГОСТ Р
Скачать ГОСТ в PDF или DOC бесплатно
Основная информация
Обозначение:
ГОСТ Р 55675-2013
Статус:
Действует
Тип:
ГОСТ Р
Название русское:
Оборудование гимнастическое. Перекладины. Требования и методы испытаний с учетом безопасности
Название английское:
Gymnastic equipment. Horizontal bars. Requirements and test methods with regards to safety
Даты и сроки
Дата издания:
11-27-19
Дата введения в действие:
01-01-15
Дата завершения срока действия:
-
Применение и описание
Область и условия применения:
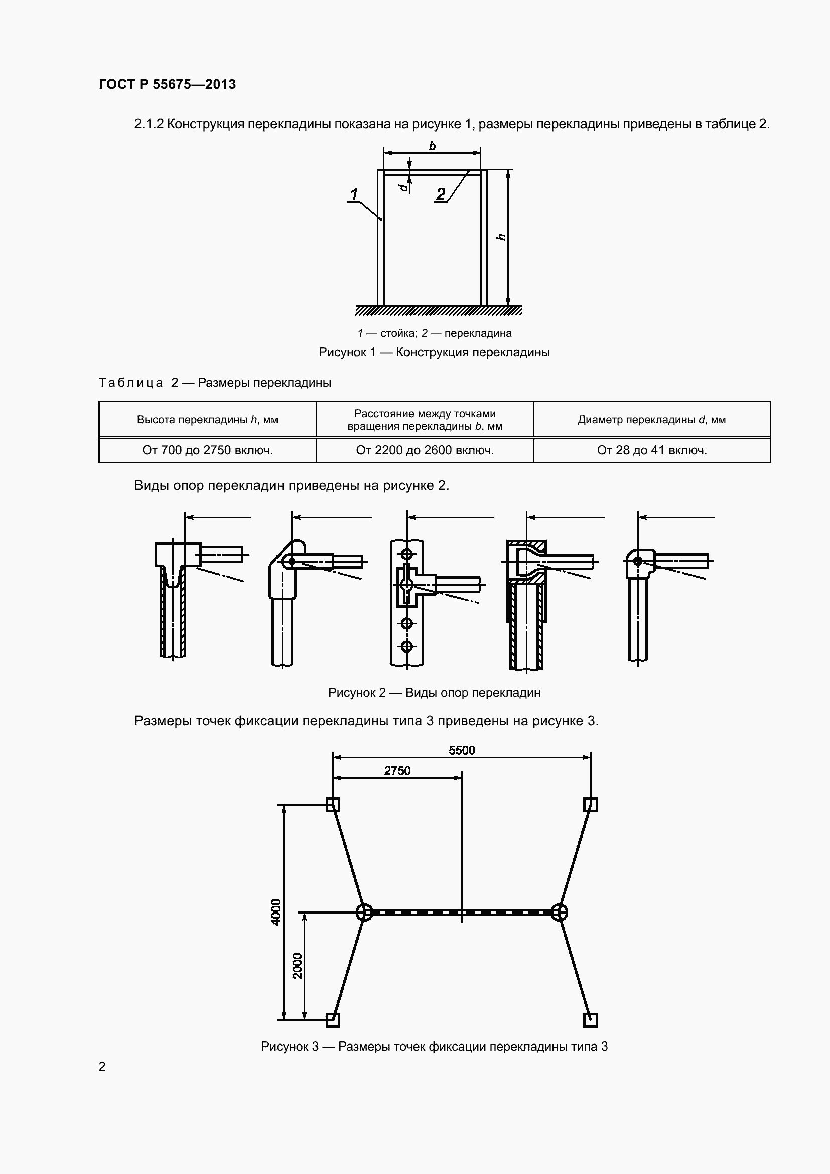
Настоящий стандарт распространяется на гимнастическое оборудование. Стандарт устанавливает функциональные требования и требования безопасности к трем типам перекладин: зафиксированной в напольных углублениях, зафиксированной напольной пластиной и болтом, зафиксированной тросами
Связи и замены
Заменяющий:
-
Описание стандарта
ГОСТ Р 55675-2013 Оборудование гимнастическое. Перекладины. Требования и методы испытаний с учетом безопасности
Страницы стандарта











