ГОСТы >
97.220.40 Инвентарь для спорта на открытом воздухе и для водных видов спорта >
ГОСТ Р 50529-2015
ГОСТ Р 50529-2015 Оружие гражданское и служебное огнестрельное, устройства производственного и специального назначения. Требования безопасности и методы испытаний на безопасность
ГОСТ Р
Скачать ГОСТ в PDF или DOC бесплатно
Основная информация
Обозначение:
ГОСТ Р 50529-2015
Статус:
Действует
Тип:
ГОСТ Р
Название русское:
Оружие гражданское и служебное огнестрельное, устройства производственного и специального назначения. Требования безопасности и методы испытаний на безопасность
Название английское:
Civilian and duty firearms, devices for industrial and special purposes. Safety requirements and test methods for safety
Даты и сроки
Дата издания:
03-17-16
Дата введения в действие:
01-01-17
Дата завершения срока действия:
-
Применение и описание
Область и условия применения:
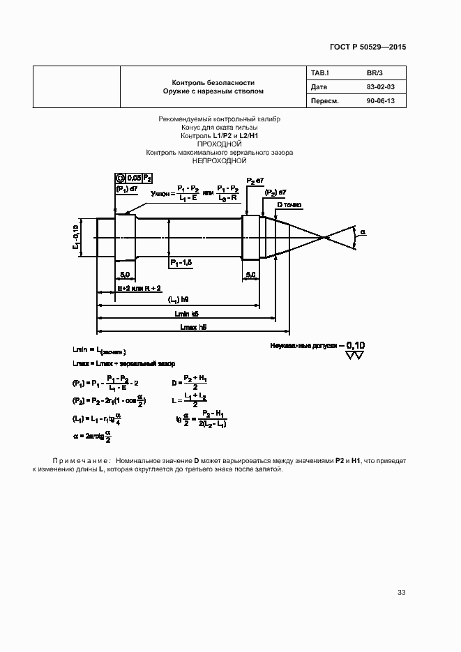
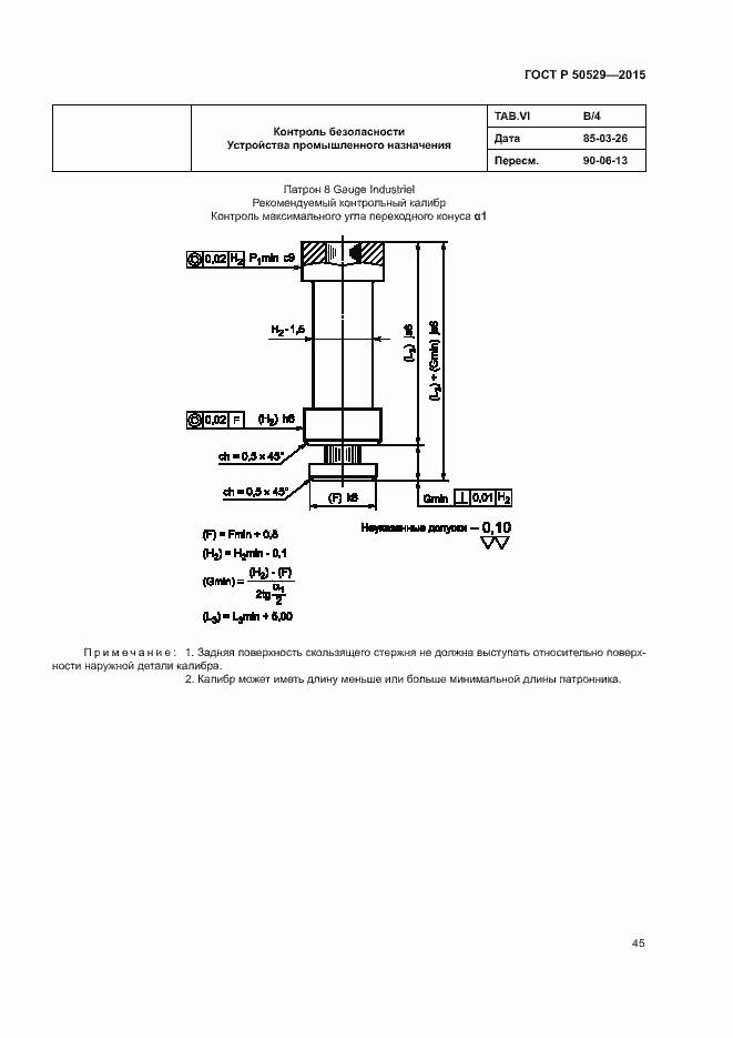
Настоящий стандарт распространяется на все виды гражданского и служебного оружия и огнестрельные устройства производственного и специального назначения, (далее ГСО и устройства). Требования настоящего стандарта распространяются также на основные части огнестрельного оружия. Стандарт устанавливает требования, выполнение которых обеспечивают безопасность применения ГСО и устройств, а также методы их испытаний на безопасность
Связи и замены
Заменяющий:
-
Взамен:
ГОСТ Р 50529-2010
Изменения и переиздания
Список изменений:
№0 от (рег. ) «Утратил силу в РФ»
Описание стандарта
ГОСТ Р 50529-2015 Оружие гражданское и служебное огнестрельное, устройства производственного и специального назначения. Требования безопасности и методы испытаний на безопасность
Страницы стандарта































































