ГОСТ Р 56435-2015 Оборудование гимнастическое. Шведские стенки, решетчатые лестницы, каркасные конструкции для лазания. Требования безопасности и методы испытаний
ГОСТ Р
Скачать ГОСТ в PDF или DOC бесплатно
Основная информация
Обозначение:
ГОСТ Р 56435-2015
Статус:
Действует
Тип:
ГОСТ Р
Название русское:
Оборудование гимнастическое. Шведские стенки, решетчатые лестницы, каркасные конструкции для лазания. Требования безопасности и методы испытаний
Название английское:
Gymnastic equipment. Swedish wall, lattice stairs, frame structures for climbing. Safety requirements and test methods
Даты и сроки
Дата издания:
10-09-19
Дата введения в действие:
07-01-16
Дата завершения срока действия:
-
Применение и описание
Область и условия применения:
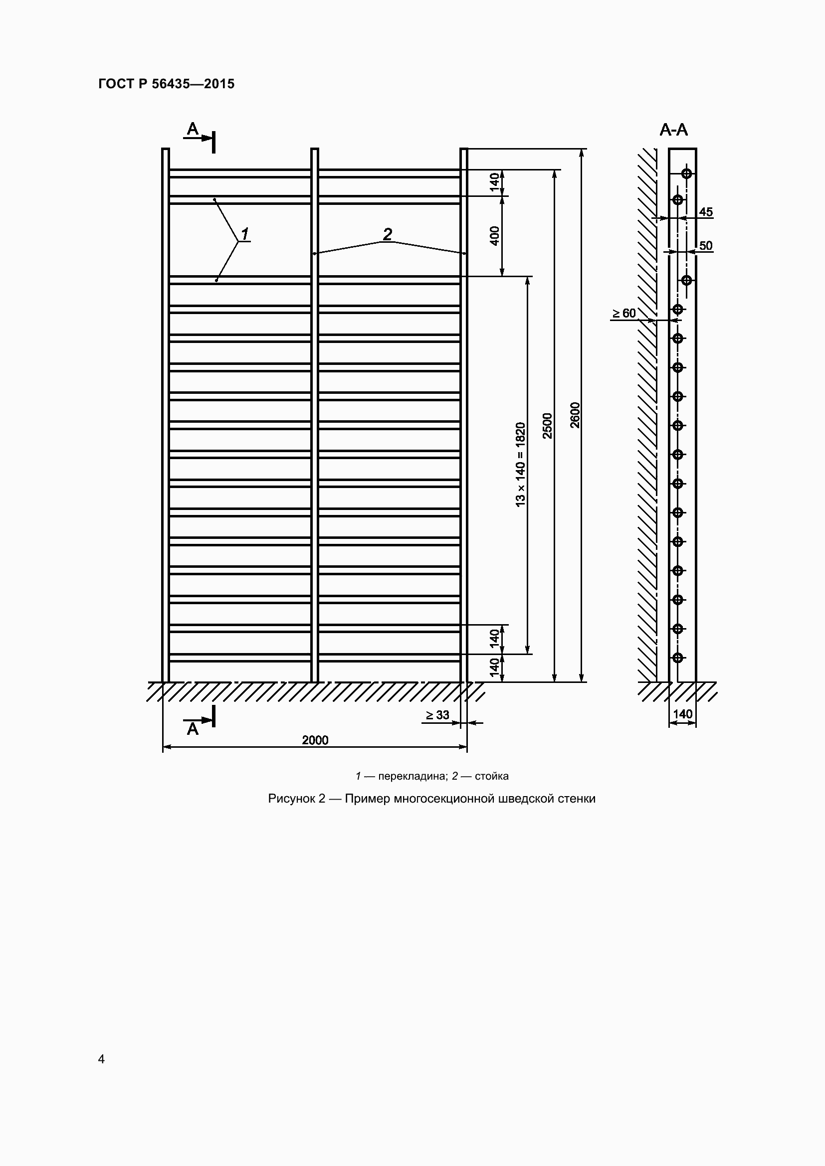
Настоящий стандарт распространяется на гимнастическое оборудование для лазания и устанавливает требования безопасности и методы испытаний шведских стенок, решетчатых лестниц и каркасных сооружений для лазания
Связи и замены
Заменяющий:
-
Описание стандарта
ГОСТ Р 56435-2015 Оборудование гимнастическое. Шведские стенки, решетчатые лестницы, каркасные конструкции для лазания. Требования безопасности и методы испытаний
Страницы стандарта















