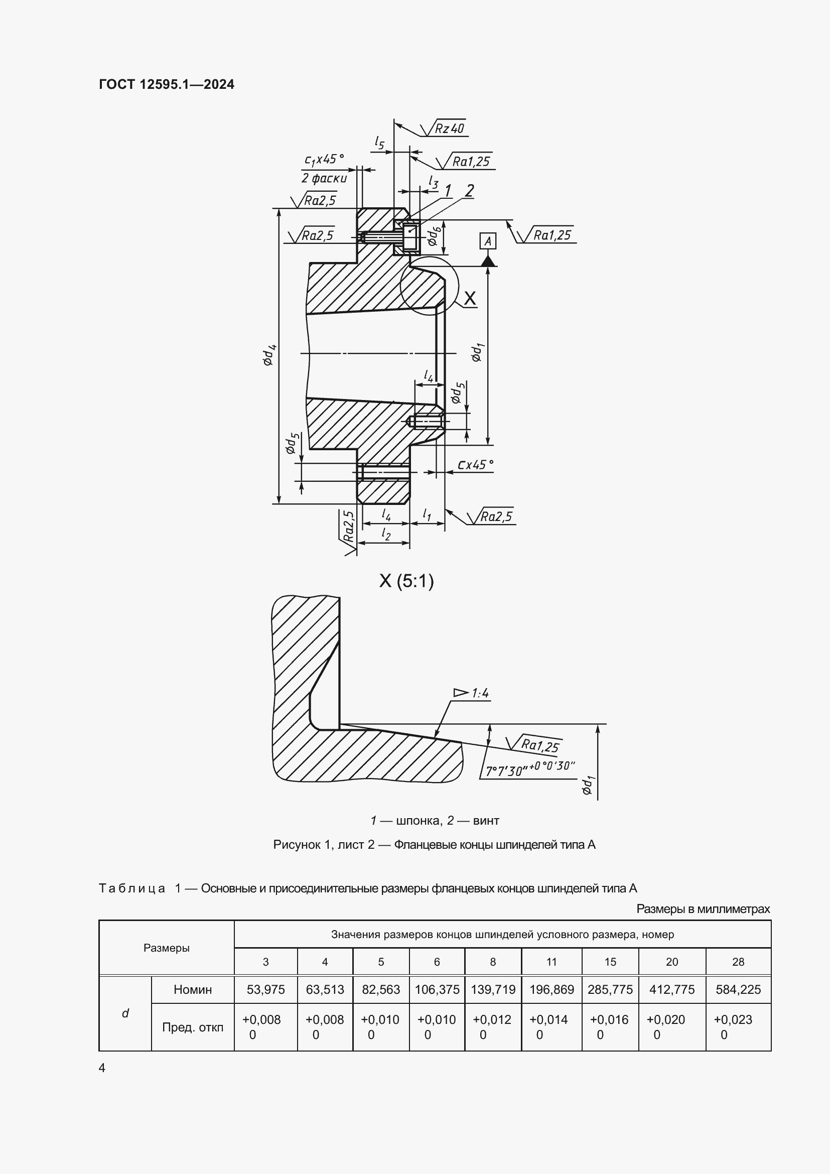
ГОСТ 12595.1-2024 Станки металлорежущие. Концы шпинделей фланцевые типа А и фланцы зажимных устройств. Основные и присоединительные размеры
ГОСТ
Скачать ГОСТ в PDF или DOC бесплатно
Основная информация
Обозначение:
ГОСТ 12595.1-2024
Статус:
Действует
Тип:
ГОСТ
Название русское:
Станки металлорежущие. Концы шпинделей фланцевые типа А и фланцы зажимных устройств. Основные и присоединительные размеры
Название английское:
Metal-cutting machine tools. Flanged spindle noses of A type and flanges of fixtures. Basic and coupling dimensions
Даты и сроки
Дата регистрации:
01-31-24
Дата издания:
10-30-24
Дата введения в действие:
06-01-24
Дата завершения срока действия:
-
Применение и описание
Область и условия применения:
Настоящий стандарт распространяется на фланцевые концы шпинделей с коротким конусом типа А для токарных и шлифовальных станков, а также на фланцы зажимных устройств, устанавливаемых на концы шпинделей. Стандарт не распространяется на станки, техническое задание на разработку которых утверждено до введения в действие настоящего стандарта
Связи и замены
Заменяющий:
-
Взамен:
ГОСТ 12595-2003
Описание стандарта
ГОСТ 12595.1-2024 Станки металлорежущие. Концы шпинделей фланцевые типа А и фланцы зажимных устройств. Основные и присоединительные размеры
Страницы стандарта
















Приложение №1: Поправка к ГОСТ 12595.1-2024 Обозначение: Поправка к ГОСТ 12595.1-2024 Дата введения в действие: 12.08.2024

Приложение №2: Поправка к ГОСТ 12595.1-2024 Обозначение: Поправка к ГОСТ 12595.1-2024 Дата введения в действие: 10.10.2024
