ГОСТ 2.104-2006 Единая система конструкторской документации. Основные надписи
ГОСТ
Скачать ГОСТ в PDF или DOC бесплатно
Основная информация
Обозначение:
ГОСТ 2.104-2006
Статус:
Утратил силу в РФ
Тип:
ГОСТ
Название русское:
Единая система конструкторской документации. Основные надписи
Название английское:
Unified system for design documentation. Basic inscriptions
Даты и сроки
Дата регистрации:
02-28-06
Дата издания:
08-01-07
Дата введения в действие:
09-01-06
Дата завершения срока действия:
03-01-24
Применение и описание
Область и условия применения:
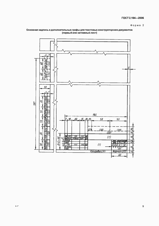
Настоящий стандарт устанавливает формы, размеры, номенклатуру реквизитов и порядок заполнения основной надписи и дополнительных граф к ней в конструкторских документах, предусмотренных стандартами Единой системы конструкторской документации. На основе настоящего стандарта допускается, при необходимости, разрабатывать стандарты, отражающие особенности указания реквизитов и атрибутов при оформлении конструкторских документов с учетом их специфики
Приложение №1:
Поправка к ГОСТ 2.104-2006 Обозначение: Поправка к ГОСТ 2.104-2006 Дата введения в действие: 01.12.2006
Связи и замены
Заменяющий:
-
Взамен:
ГОСТ 2.104-68
Изменения и переиздания
Список изменений:
№0 от (рег. ) «Дата введения перенесена» №0 от (рег. ) «Дата введения перенесена» №0 от (рег. ) «Дата введения перенесена»
Описание стандарта
ГОСТ 2.104-2006 Единая система конструкторской документации. Основные надписи
Страницы стандарта

















Приложение №1: Поправка к ГОСТ 2.104-2006 Обозначение: Поправка к ГОСТ 2.104-2006 Дата введения в действие: 01.12.2006

Приложение №2: Поправка к ГОСТ 2.104-2006 Обозначение: Поправка к ГОСТ 2.104-2006 Дата введения в действие: 01.04.2007

Приложение №3: Поправка к ГОСТ 2.104-2006 Обозначение: Поправка к ГОСТ 2.104-2006 Дата введения в действие: 05.12.2011
