ГОСТ 21.114-2013 Система проектной документации для строительства. Правила выполнения эскизных чертежей общих видов нетиповых изделий
ГОСТ
Скачать ГОСТ в PDF или DOC бесплатно
Основная информация
Обозначение:
ГОСТ 21.114-2013
Статус:
Действует
Тип:
ГОСТ
Название русское:
Система проектной документации для строительства. Правила выполнения эскизных чертежей общих видов нетиповых изделий
Название английское:
System of design documents for construction. Rules for execution of sketch drawings of general views of non-standard products
Даты и сроки
Дата регистрации:
11-14-13
Дата издания:
09-21-20
Дата введения в действие:
01-01-15
Дата завершения срока действия:
-
Применение и описание
Область и условия применения:
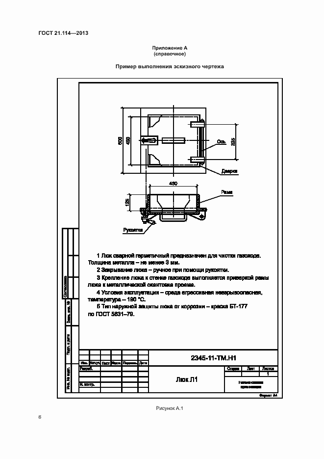
Настоящий стандарт устанавливает основные требования к разработке эскизных чертежей общих видов нетиповых изделий (конструкций, устройств, монтажных блоков), выполняемых к основным комплектам рабочих чертежей для строительства объектов различного назначения
Связи и замены
Заменяющий:
-
Взамен:
ГОСТ 21.114-95
Изменения и переиздания
Список изменений:
№0 от (рег. ) «Дата введения перенесена»
Описание стандарта
ГОСТ 21.114-2013 Система проектной документации для строительства. Правила выполнения эскизных чертежей общих видов нетиповых изделий
Страницы стандарта











Приложение №1: Поправка к ГОСТ 21.114-2013 Обозначение: Поправка к ГОСТ 21.114-2013 Дата введения в действие: 03.04.2015
