ГОСТ 21.501-2011 Система проектной документации для строительства. Правила выполнения рабочей документации архитектурных и конструктивных решений
ГОСТ
Скачать ГОСТ в PDF или DOC бесплатно
Основная информация
Обозначение:
ГОСТ 21.501-2011
Статус:
Заменен
Тип:
ГОСТ
Название русское:
Система проектной документации для строительства. Правила выполнения рабочей документации архитектурных и конструктивных решений
Название английское:
System of design documents for construction. Rules for execution of the working documentation of architectural and construction solutions
Даты и сроки
Дата регистрации:
12-08-11
Дата издания:
06-10-13
Дата введения в действие:
05-01-13
Дата завершения срока действия:
06-01-19
Применение и описание
Область и условия применения:
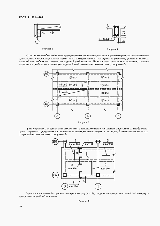
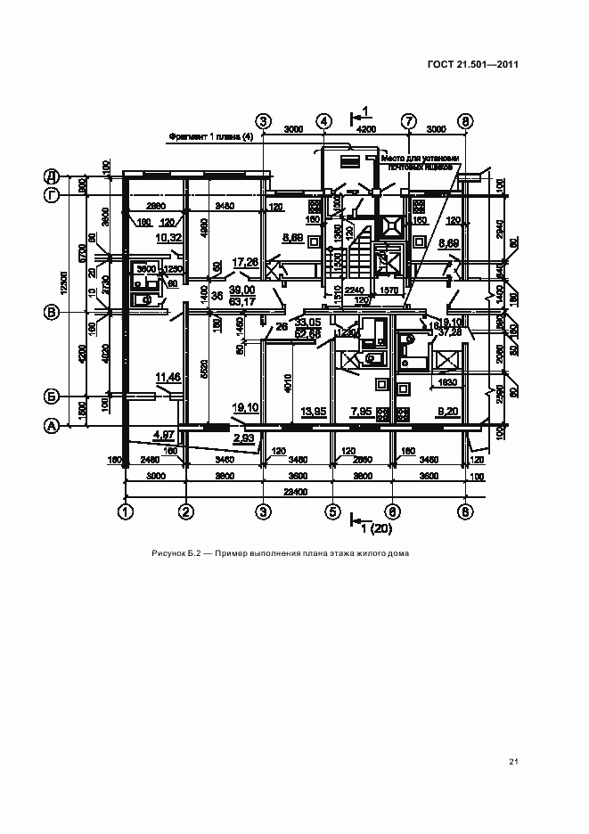
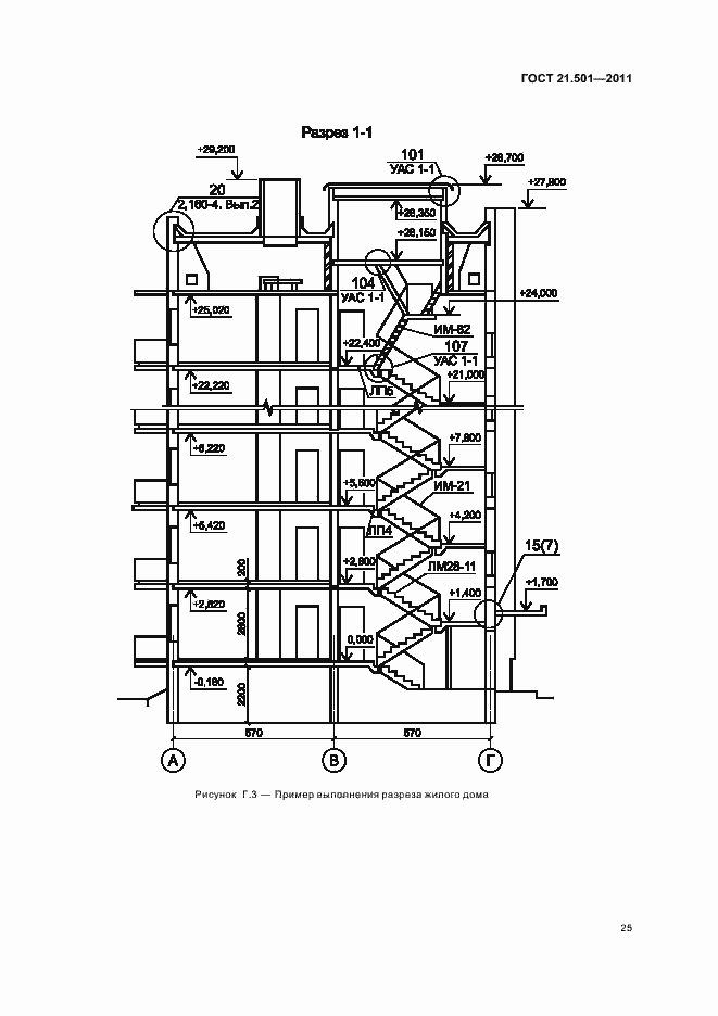
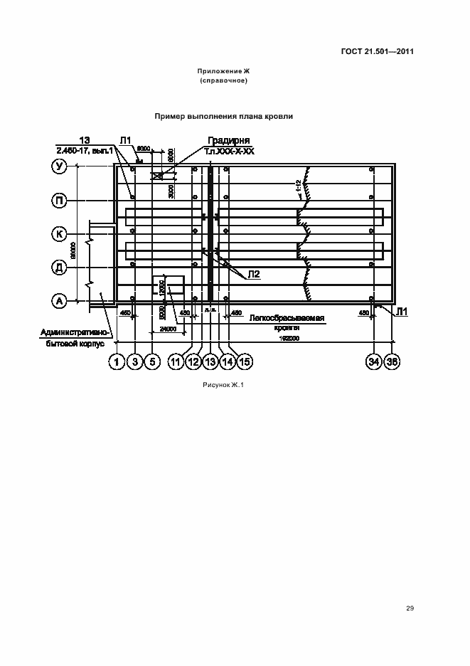
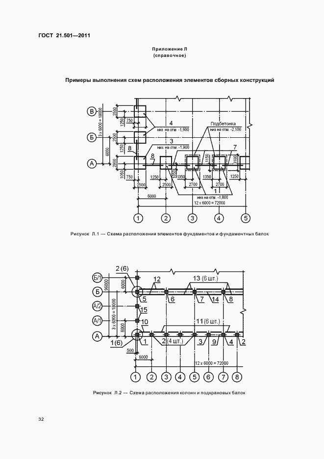
Настоящий стандарт устанавливает состав и правила оформления рабочей документации архитектурных и конструктивных решений зданий и сооружений различного назначения, а также рабочей документации на строительные изделия. Состав и правила оформления рабочей документации конструктивных решений металлических строительных конструкций установлены в ГОСТ 21.502
Связи и замены
Заменяющий:
ГОСТ 21.501-2018
Взамен:
ГОСТ 21.501-93
Описание стандарта
ГОСТ 21.501-2011 Система проектной документации для строительства. Правила выполнения рабочей документации архитектурных и конструктивных решений
Страницы стандарта













































