ГОСТ 21.502-2007 Система проектной документации для строительства. Правила выполнения проектной и рабочей документации металлических конструкций
ГОСТ
Скачать ГОСТ в PDF или DOC бесплатно
Основная информация
Обозначение:
ГОСТ 21.502-2007
Статус:
Заменен
Тип:
ГОСТ
Название русское:
Система проектной документации для строительства. Правила выполнения проектной и рабочей документации металлических конструкций
Название английское:
System of design documents for construction. Execution rules of design and working documents for metal structures
Даты и сроки
Дата регистрации:
11-21-07
Дата издания:
09-01-08
Дата введения в действие:
01-01-09
Дата завершения срока действия:
07-01-17
Применение и описание
Область и условия применения:
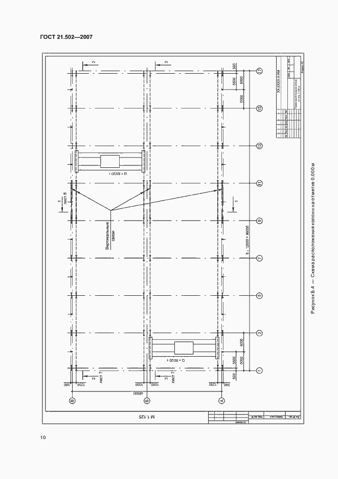
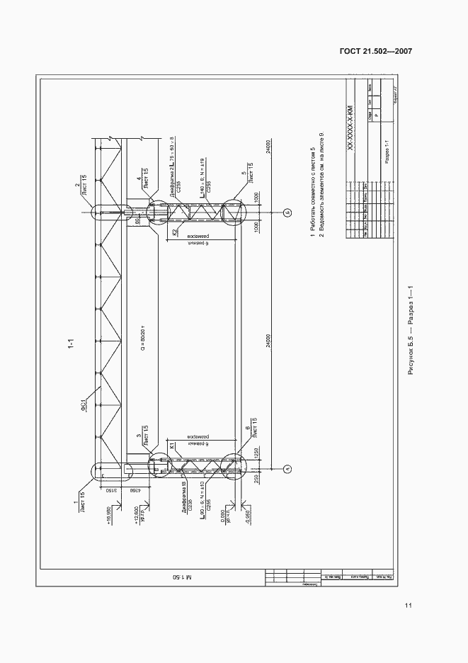
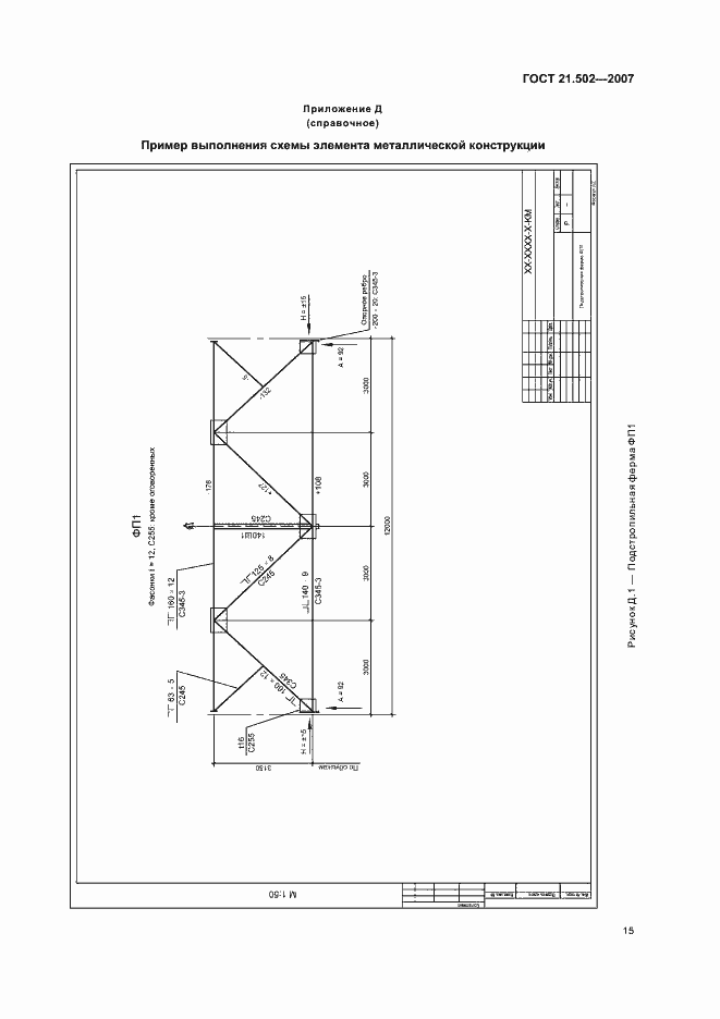
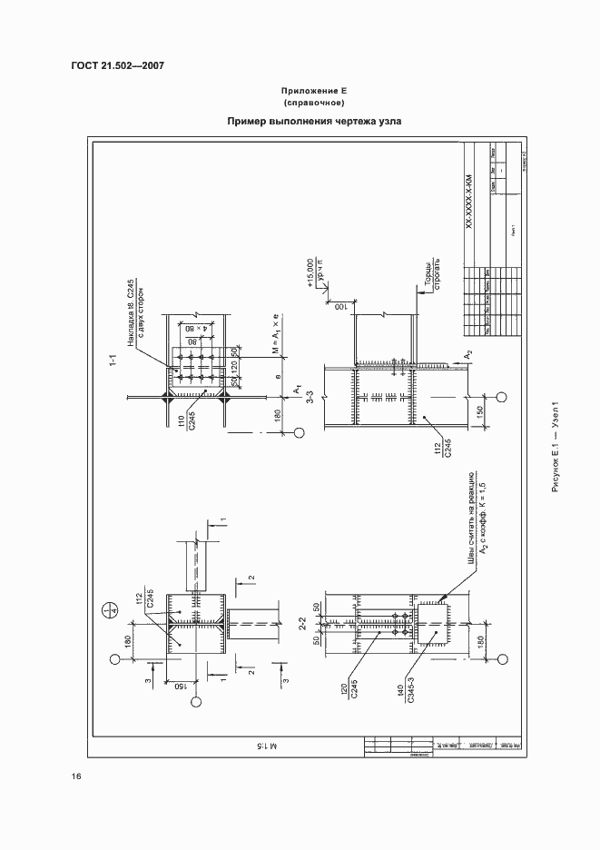
Настоящий стандарт устанавливает состав и правила выполнения проектной и рабочей документации строительных металлических конструкций, разрабатываемой на стадиях "рабочий проект", "проект" и "рабочая документация" и выполняемой на бумажных или электронных носителях. Требования настоящего стандарта не распространяются на выполнение деталировочных чертежей металлических конструкций марки КМД
Связи и замены
Заменяющий:
ГОСТ 21.502-2016
Описание стандарта
ГОСТ 21.502-2007 Система проектной документации для строительства. Правила выполнения проектной и рабочей документации металлических конструкций
Страницы стандарта
























