ГОСТ 21.504-2016 Система проектной документации для строительства. Правила выполнения рабочей документации деревянных конструкций
ГОСТ
Скачать ГОСТ в PDF или DOC бесплатно
Основная информация
Обозначение:
ГОСТ 21.504-2016
Статус:
Действует
Тип:
ГОСТ
Название русское:
Система проектной документации для строительства. Правила выполнения рабочей документации деревянных конструкций
Название английское:
System of design documents for construction. Rules for execution of working documentation for wooden structures
Даты и сроки
Дата регистрации:
11-22-16
Дата издания:
07-30-20
Дата введения в действие:
07-01-17
Дата завершения срока действия:
-
Применение и описание
Область и условия применения:
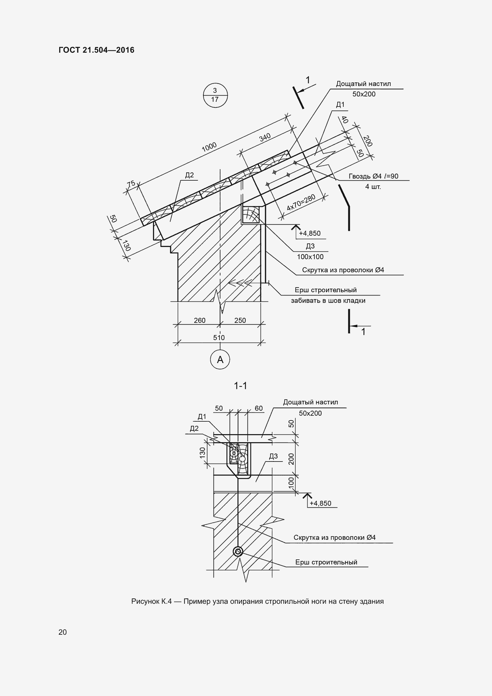
Настоящий стандарт устанавливает состав, содержание и правила оформления рабочей документации деревянных конструкций зданий и сооружений различного назначения, в том числе при применении типовых деревянных конструкций
Связи и замены
Заменяющий:
-
Описание стандарта
ГОСТ 21.504-2016 Система проектной документации для строительства. Правила выполнения рабочей документации деревянных конструкций
Страницы стандарта





























Приложение №1: Поправка к ГОСТ 21.504-2016 Обозначение: Поправка к ГОСТ 21.504-2016 Дата введения в действие: 25.01.2022
