ГОСТ 21.603-80 Система проектной документации для строительства. Связь и сигнализация. Рабочие чертежи
ГОСТ
Скачать ГОСТ в PDF или DOC бесплатно
Основная информация
Обозначение:
ГОСТ 21.603-80
Статус:
Утратил силу в РФ
Тип:
ГОСТ
Название русское:
Система проектной документации для строительства. Связь и сигнализация. Рабочие чертежи
Название английское:
System of building design documents. Communication and signaling. Working drawings
Даты и сроки
Дата издания:
06-29-81
Дата введения в действие:
06-30-81
Дата завершения срока действия:
11-01-00
Применение и описание
Область и условия применения:
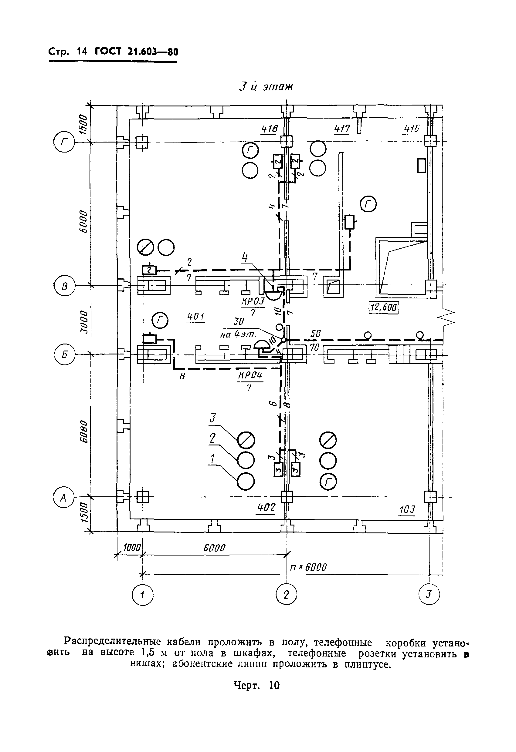
Настоящий стандарт устанавливает состав и правила оформления рабочих чертежей и сигнализации для предприятий, зданий и сооружений всех отраслей промышленности и народного хозяйства
Связи и замены
Заменяющий:
-
Изменения и переиздания
Список изменений:
№0 от (рег. ) «Поправка к изменению»
Описание стандарта
ГОСТ 21.603-80 Система проектной документации для строительства. Связь и сигнализация. Рабочие чертежи
Страницы стандарта

















