ГОСТ 21.606-2016 Система проектной документации для строительства. Правила выполнения рабочей документации тепломеханических решений котельных
ГОСТ
Скачать ГОСТ в PDF или DOC бесплатно
Основная информация
Обозначение:
ГОСТ 21.606-2016
Статус:
Действует
Тип:
ГОСТ
Название русское:
Система проектной документации для строительства. Правила выполнения рабочей документации тепломеханических решений котельных
Название английское:
System of design documents for construction. Rules for execution of working documentation of thermal mechanical solutions of boiler rooms
Даты и сроки
Дата регистрации:
12-08-16
Дата издания:
08-31-20
Дата введения в действие:
07-01-17
Дата завершения срока действия:
-
Применение и описание
Область и условия применения:
Настоящий стандарт устанавливает состав и правила оформления рабочей документации тепломеханических решений отопительных, отопительно-производственных и производственных котельных
Связи и замены
Заменяющий:
-
Взамен:
ГОСТ 21.606-95
Изменения и переиздания
Список изменений:
№0 от (рег. ) «Дата введения перенесена»
Описание стандарта
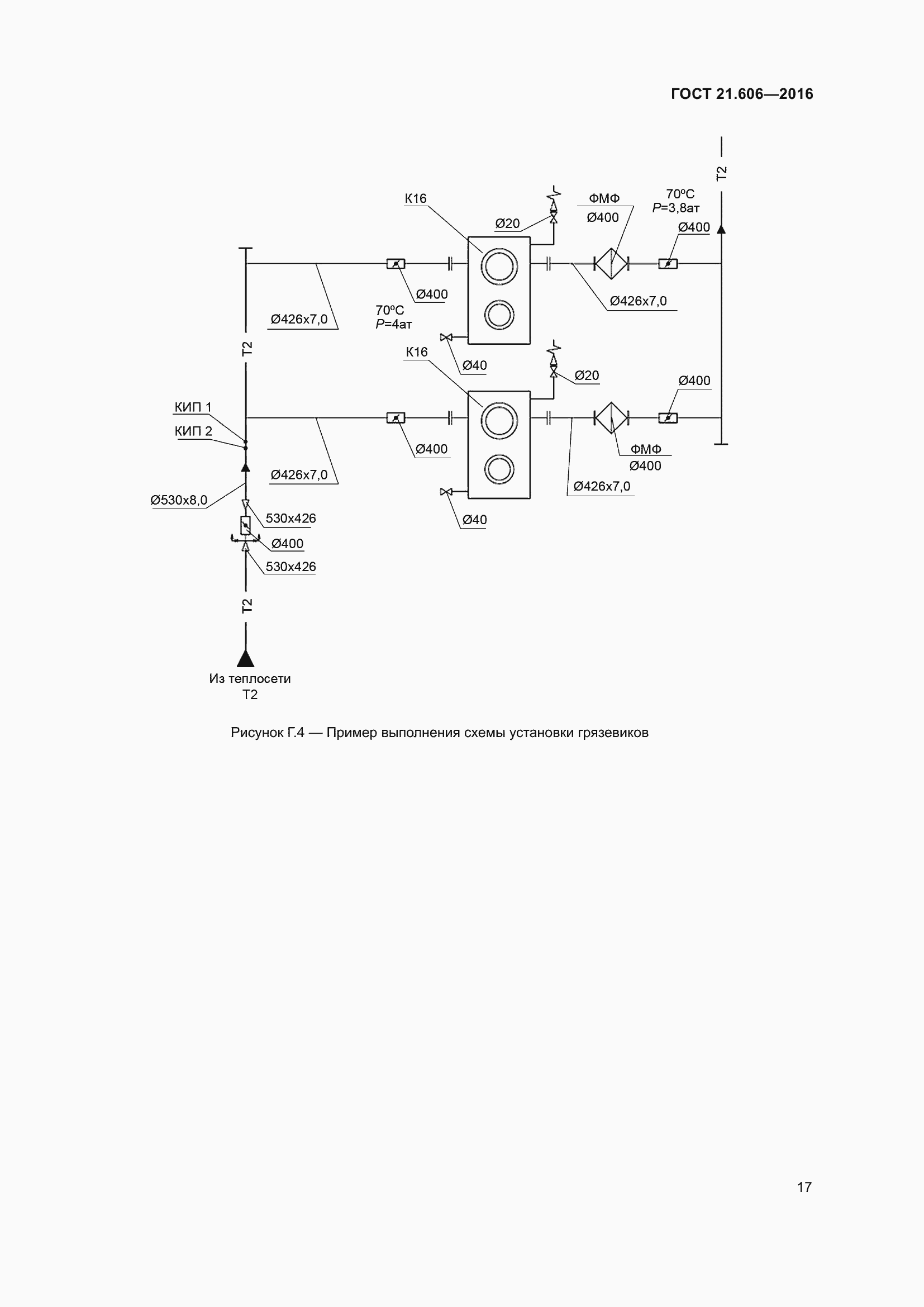
ГОСТ 21.606-2016 Система проектной документации для строительства. Правила выполнения рабочей документации тепломеханических решений котельных
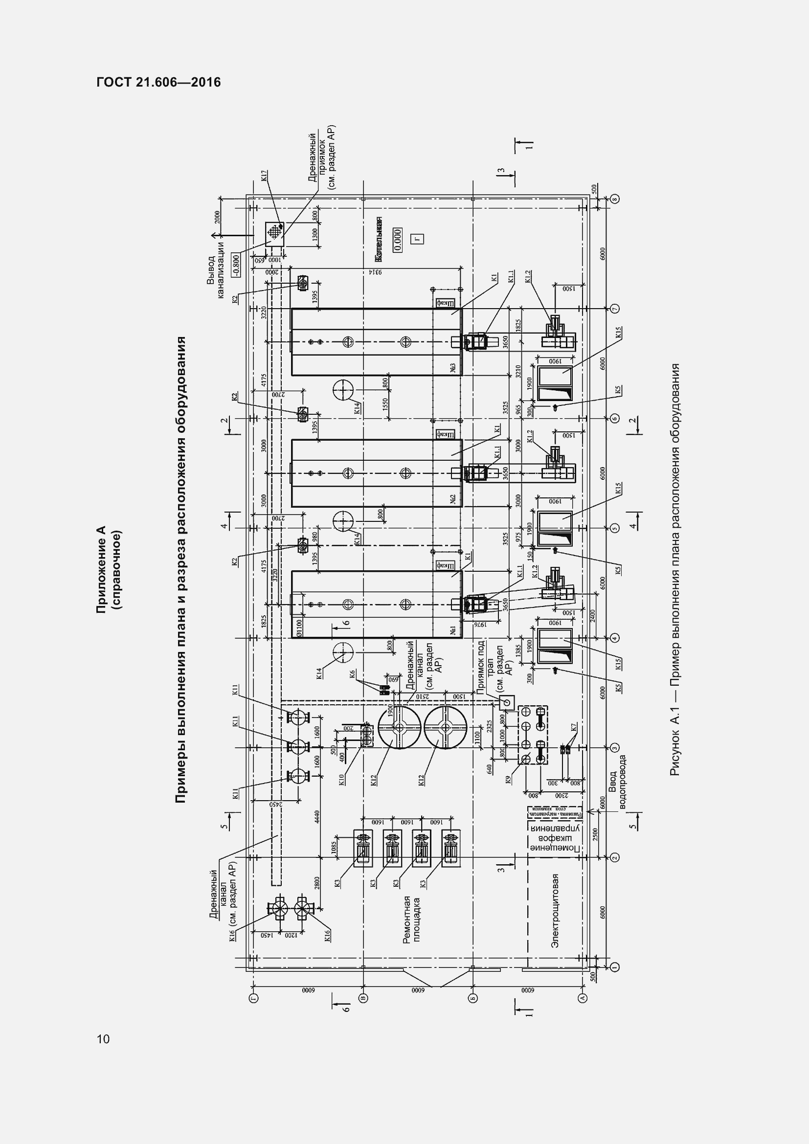
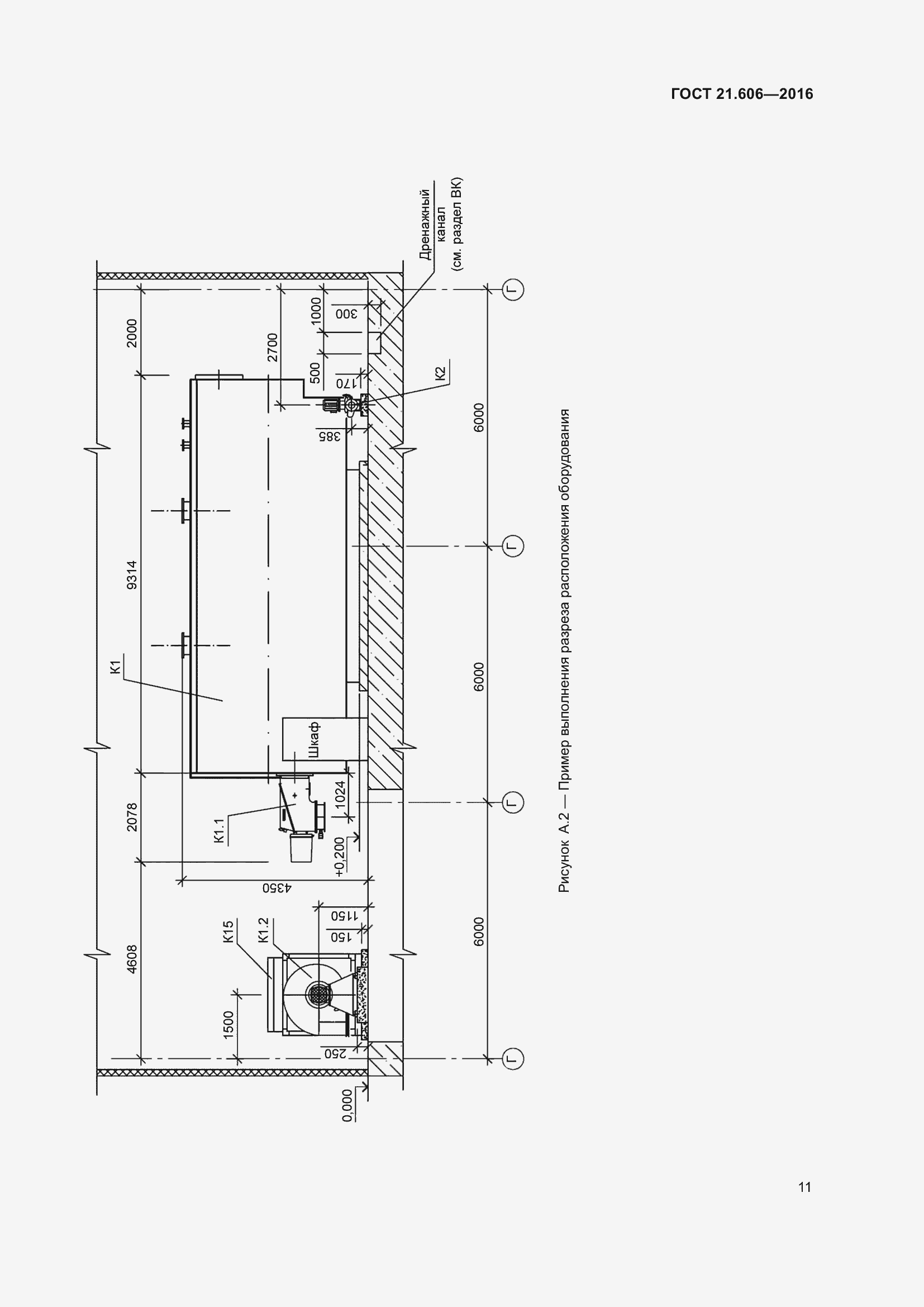
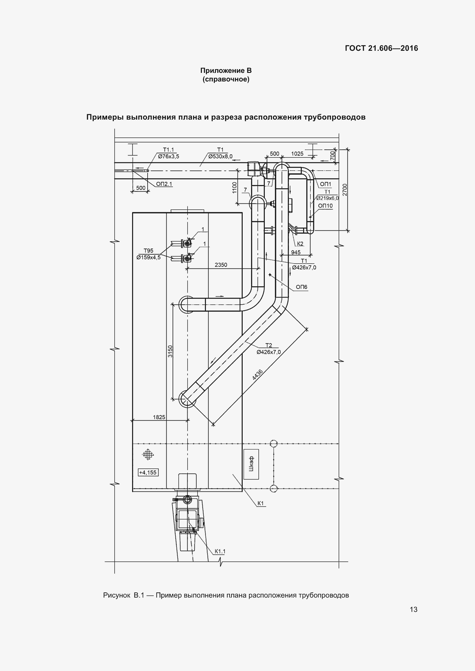
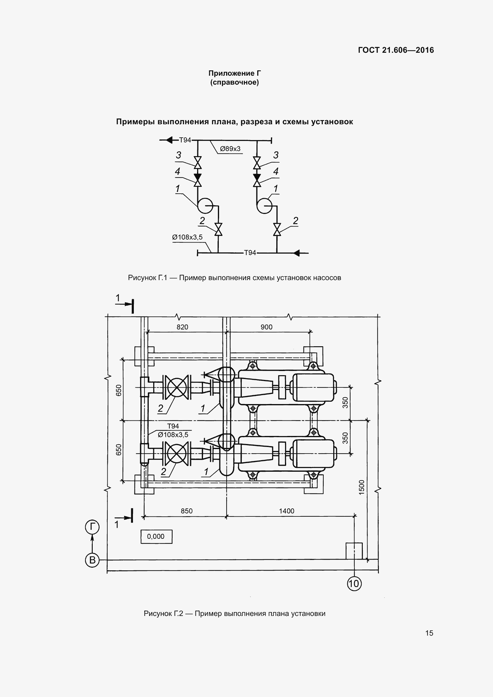
Страницы стандарта

























Приложение №1: Поправка к ГОСТ 21.606-2016 Обозначение: Поправка к ГОСТ 21.606-2016 Дата введения в действие: 17.05.2017

Приложение №2: Поправка к ГОСТ 21.606-2016 Обозначение: Поправка к ГОСТ 21.606-2016 Дата введения в действие: 25.01.2022
