ГОСТ 21.702-2013 Система проектной документации для строительства. Правила выполнения рабочей документации железнодорожных путей
ГОСТ
Скачать ГОСТ в PDF или DOC бесплатно
Основная информация
Обозначение:
ГОСТ 21.702-2013
Статус:
Действует
Тип:
ГОСТ
Название русское:
Система проектной документации для строительства. Правила выполнения рабочей документации железнодорожных путей
Название английское:
System of building design documents. Rules of executing of working documentation for railways
Даты и сроки
Дата регистрации:
11-14-13
Дата издания:
08-13-20
Дата введения в действие:
01-01-15
Дата завершения срока действия:
-
Применение и описание
Область и условия применения:
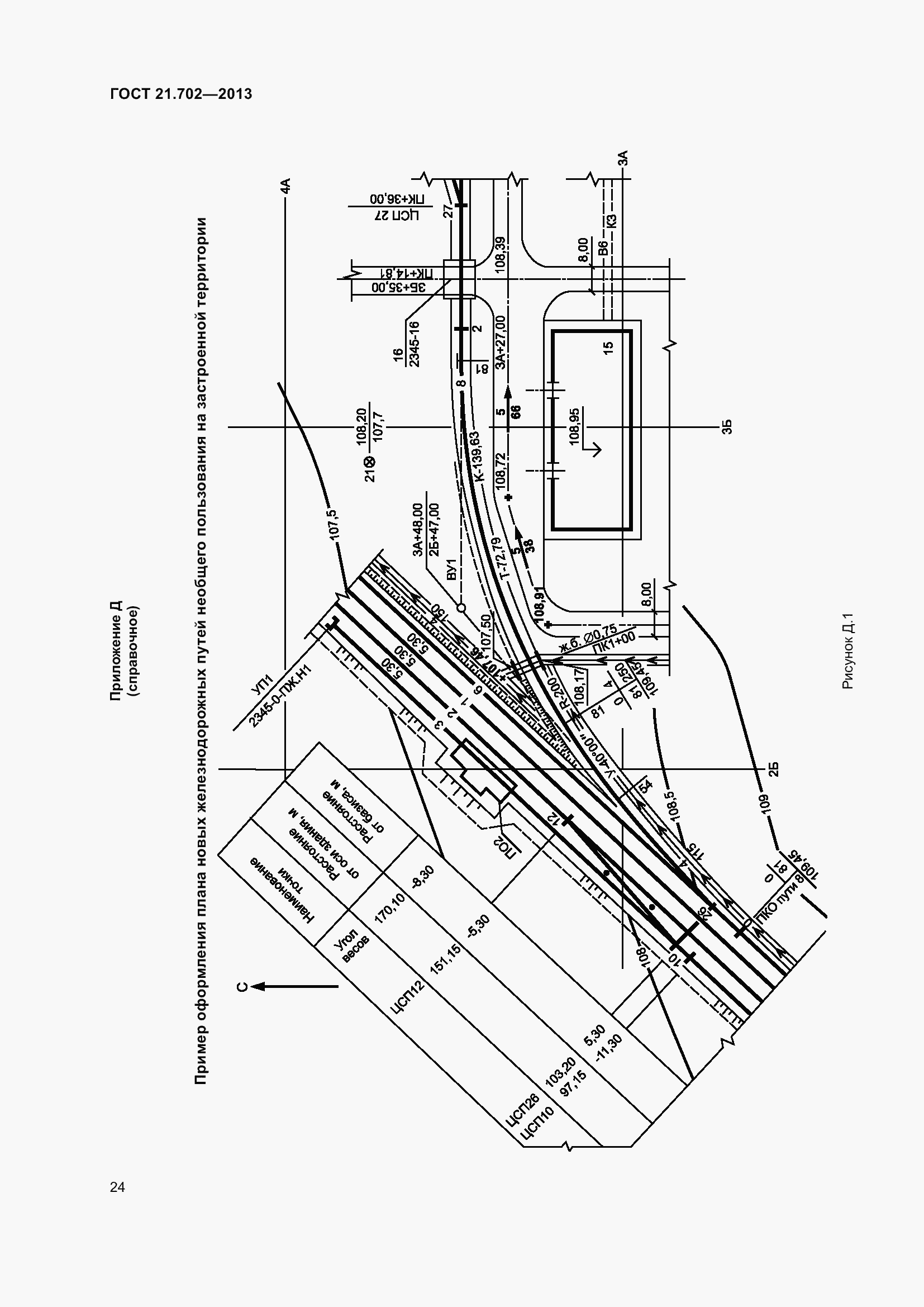
Настоящий стандарт устанавливает состав и правила оформления рабочей документации на строительство новых и реконструируемых железнодорожных путей различного назначения (общего пользования, необщего пользования и технологических путей)
Связи и замены
Заменяющий:
-
Описание стандарта
ГОСТ 21.702-2013 Система проектной документации для строительства. Правила выполнения рабочей документации железнодорожных путей
Страницы стандарта
















































Приложение №1: Изменение №1 к ГОСТ 21.702-2013 Обозначение: Изменение №1 к ГОСТ 21.702-2013 Дата введения в действие: 01.03.2023

Приложение №1: Изменение №1 к ГОСТ 21.702-2013 Обозначение: Изменение №1 к ГОСТ 21.702-2013 Дата введения в действие: 01.03.2023

Приложение №1: Изменение №1 к ГОСТ 21.702-2013 Обозначение: Изменение №1 к ГОСТ 21.702-2013 Дата введения в действие: 01.03.2023

Приложение №1: Изменение №1 к ГОСТ 21.702-2013 Обозначение: Изменение №1 к ГОСТ 21.702-2013 Дата введения в действие: 01.03.2023

Приложение №1: Изменение №1 к ГОСТ 21.702-2013 Обозначение: Изменение №1 к ГОСТ 21.702-2013 Дата введения в действие: 01.03.2023

Приложение №1: Изменение №1 к ГОСТ 21.702-2013 Обозначение: Изменение №1 к ГОСТ 21.702-2013 Дата введения в действие: 01.03.2023

Приложение №1: Изменение №1 к ГОСТ 21.702-2013 Обозначение: Изменение №1 к ГОСТ 21.702-2013 Дата введения в действие: 01.03.2023

Приложение №1: Изменение №1 к ГОСТ 21.702-2013 Обозначение: Изменение №1 к ГОСТ 21.702-2013 Дата введения в действие: 01.03.2023
