ГОСТ 21.704-2011 Система проектной документации для строительства. Правила выполнения рабочей документации наружных сетей водоснабжения и канализации
ГОСТ
Скачать ГОСТ в PDF или DOC бесплатно
Основная информация
Обозначение:
ГОСТ 21.704-2011
Статус:
Действует
Тип:
ГОСТ
Название русское:
Система проектной документации для строительства. Правила выполнения рабочей документации наружных сетей водоснабжения и канализации
Название английское:
System of design documents for construction. Rules for execution of working documentation of outside networks of water supply and sewerage
Даты и сроки
Дата регистрации:
12-08-11
Дата издания:
08-26-20
Дата введения в действие:
05-01-13
Дата завершения срока действия:
-
Применение и описание
Область и условия применения:
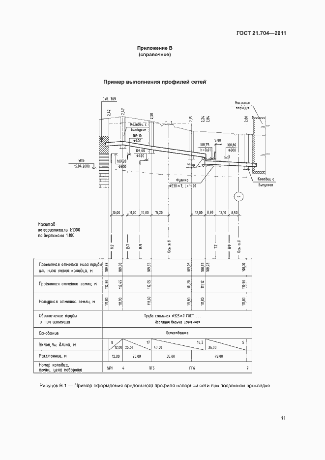
Настоящий стандарт устанавливает состав и правила выполнения рабочей документации наружных сетей водоснабжения и канализации объектов строительства различного назначения
Связи и замены
Заменяющий:
-
Взамен:
ГОСТ 21.604-82
Изменения и переиздания
Список изменений:
№1 от (рег. ) «Текстовое изменение; Изменены ссылочные НД»
Описание стандарта
ГОСТ 21.704-2011 Система проектной документации для строительства. Правила выполнения рабочей документации наружных сетей водоснабжения и канализации
Страницы стандарта




















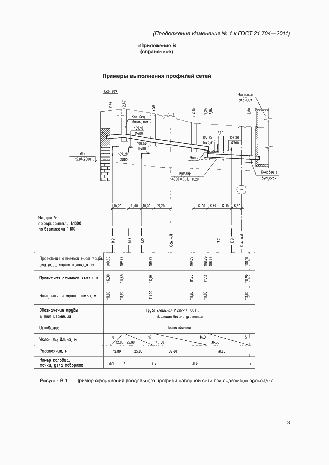
Приложение №1: Изменение №1 к ГОСТ 21.704-2011 Обозначение: Изменение №1 к ГОСТ 21.704-2011 Дата введения в действие: 01.07.2017

Приложение №1: Изменение №1 к ГОСТ 21.704-2011 Обозначение: Изменение №1 к ГОСТ 21.704-2011 Дата введения в действие: 01.07.2017

Приложение №1: Изменение №1 к ГОСТ 21.704-2011 Обозначение: Изменение №1 к ГОСТ 21.704-2011 Дата введения в действие: 01.07.2017

Приложение №1: Изменение №1 к ГОСТ 21.704-2011 Обозначение: Изменение №1 к ГОСТ 21.704-2011 Дата введения в действие: 01.07.2017

Приложение №1: Изменение №1 к ГОСТ 21.704-2011 Обозначение: Изменение №1 к ГОСТ 21.704-2011 Дата введения в действие: 01.07.2017
