ГОСТ 21.709-2019 Система проектной документации для строительства. Правила выполнения рабочей документации линейных сооружений гидромелиоративных систем
ГОСТ
Скачать ГОСТ в PDF или DOC бесплатно
Основная информация
Обозначение:
ГОСТ 21.709-2019
Статус:
Действует
Тип:
ГОСТ
Название русское:
Система проектной документации для строительства. Правила выполнения рабочей документации линейных сооружений гидромелиоративных систем
Название английское:
System of design documents for construction. Rules of executing of working documentation for linear structures of irrigation systems
Даты и сроки
Дата регистрации:
11-28-19
Дата издания:
08-25-20
Дата введения в действие:
01-01-21
Дата завершения срока действия:
-
Применение и описание
Область и условия применения:
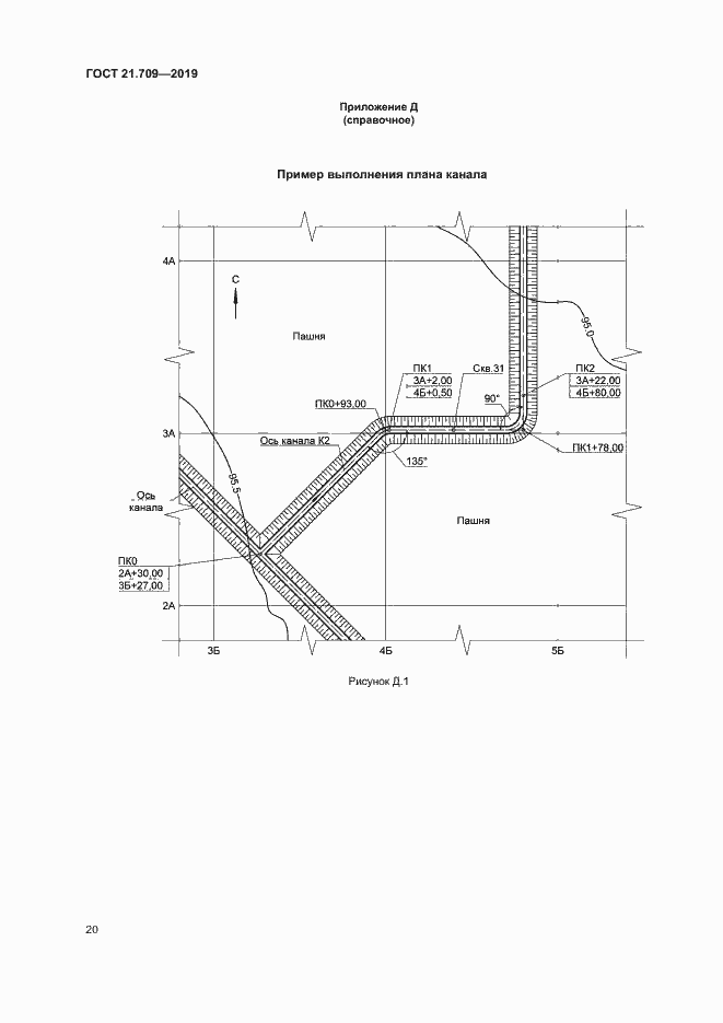
Настоящий стандарт устанавливает состав и правила выполнения рабочей документации линейных сооружений гидромелиоративных систем: каналов (в земляном русле, укрепленных и лотковых); трубопроводов; закрытых дрен; собирателей
Связи и замены
Заменяющий:
-
Взамен:
ГОСТ 21.709-2011
Описание стандарта
ГОСТ 21.709-2019 Система проектной документации для строительства. Правила выполнения рабочей документации линейных сооружений гидромелиоративных систем
Страницы стандарта


























