ГОСТ 21.710-2021 Система проектной документации для строительства. Правила выполнения рабочей документации наружных сетей газоснабжения
ГОСТ
Скачать ГОСТ в PDF или DOC бесплатно
Основная информация
Обозначение:
ГОСТ 21.710-2021
Статус:
Действует
Тип:
ГОСТ
Название русское:
Система проектной документации для строительства. Правила выполнения рабочей документации наружных сетей газоснабжения
Название английское:
System of design documents for construction. Rules for execution of the working documentation of external gas pipelines
Даты и сроки
Дата регистрации:
03-19-21
Дата издания:
08-30-21
Дата введения в действие:
09-01-21
Дата завершения срока действия:
-
Применение и описание
Область и условия применения:
Настоящий стандарт устанавливает состав и правила выполнения рабочей документации наружных газопроводов (подземных, надземных) сетей газораспре-деления или газопотребления для транспортирования природных, попутных нефтяных, искусственных и смешанных газов с избыточным давлением, не превышающим 1,2 МПа, используемых в качестве топлива и сырья
Связи и замены
Заменяющий:
-
Взамен:
ГОСТ 21.610-85
Описание стандарта
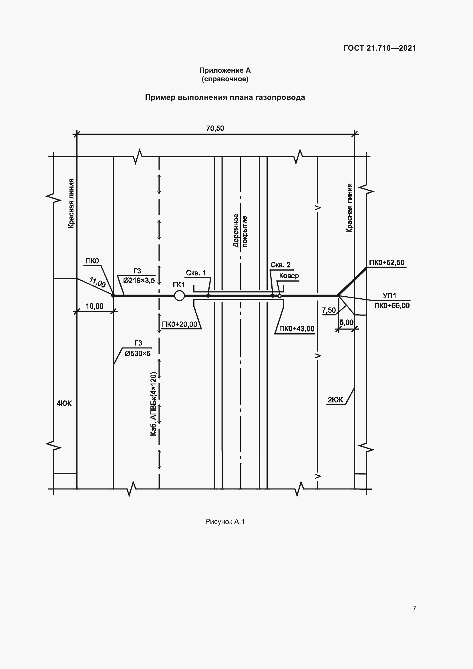
ГОСТ 21.710-2021 Система проектной документации для строительства. Правила выполнения рабочей документации наружных сетей газоснабжения
Страницы стандарта


















Приложение №1: Поправка к ГОСТ 21.710-2021 Обозначение: Поправка к ГОСТ 21.710-2021 Дата введения в действие: 20.04.2022

Приложение №2: Поправка к ГОСТ 21.710-2021 Обозначение: Поправка к ГОСТ 21.710-2021 Дата введения в действие: 12.07.2023
