ГОСТ 21924-2024 Плиты железобетонные для покрытий городских дорог. Технические условия
ГОСТ
Скачать ГОСТ в PDF или DOC бесплатно
Основная информация
Обозначение:
ГОСТ 21924-2024
Статус:
Действует
Тип:
ГОСТ
Название русское:
Плиты железобетонные для покрытий городских дорог. Технические условия
Название английское:
Reinforced concrete slabs for pavements of city roads. Specifications
Даты и сроки
Дата регистрации:
04-30-24
Дата издания:
07-15-24
Дата введения в действие:
08-01-24
Дата завершения срока действия:
-
Применение и описание
Область и условия применения:
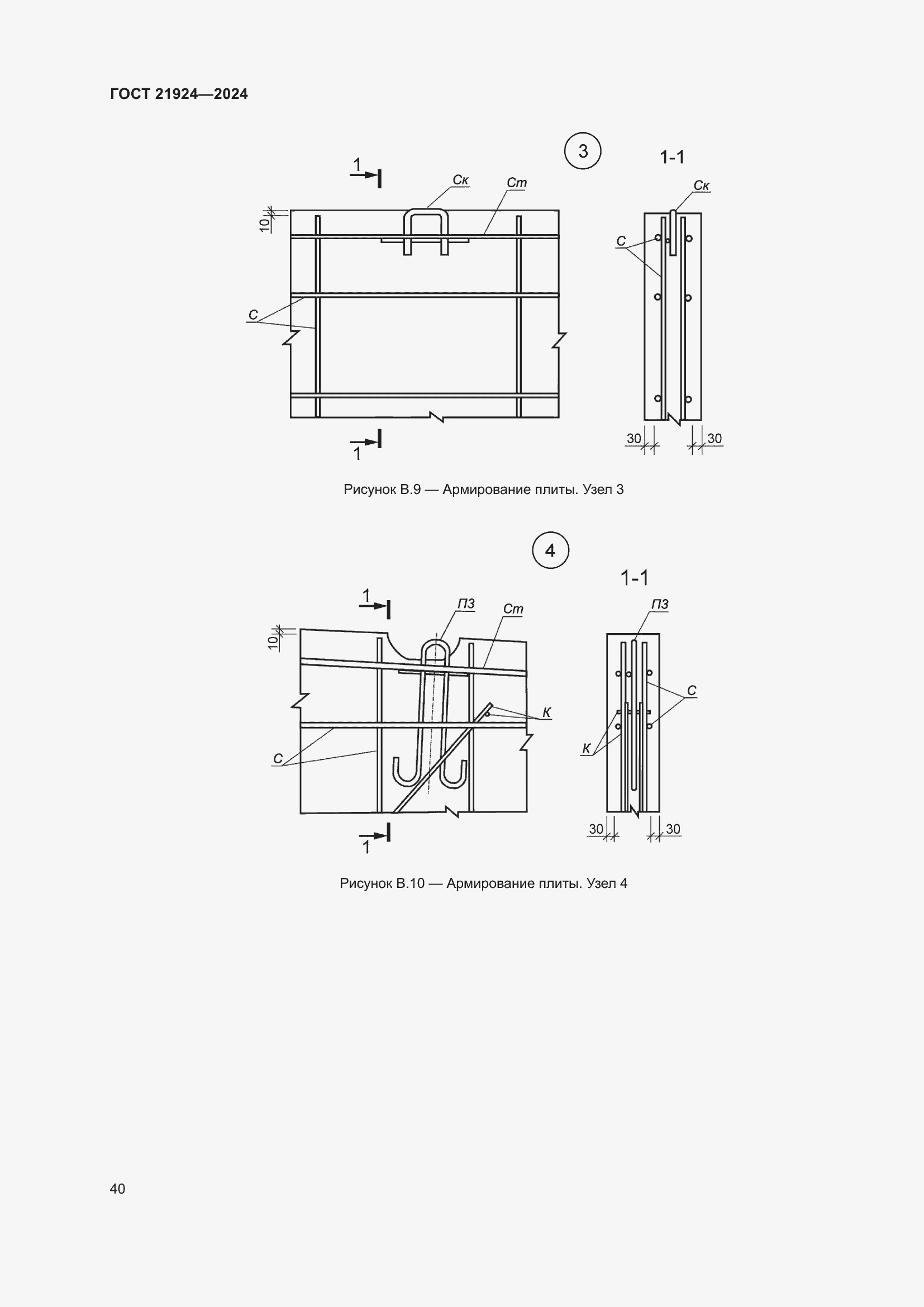
Настоящий стандарт распространяется на железобетонные предварительно напряженные плиты и плиты с ненапрягаемой арматурой, изготовляемые из тяжелого бетона и предназначенные для устройства сборных покрытий постоянных и временных городских дорог под автомобильную нагрузку АК-11,5 и АК-10 по ГОСТ 32960, и устанавливает требования к их изготовлению. Стандарт не распространяется на железобетонные плиты для внутренних автомобильных дорог промышленных предприятий, для внутрихозяйственных автомобильных дорог, а также на плиты многоразового использования для временных дорог на строительных площадках. Плиты применяют для дорог в районах с расчетной температурой наружного воздуха (средней наиболее холодной пятидневки района строительства) до минус 40 °С включительно
Связи и замены
Заменяющий:
-
Взамен:
ГОСТ 21924.0-84;ГОСТ 21924.1-84;ГОСТ 21924.2-84;ГОСТ 21924.3-84
Описание стандарта
ГОСТ 21924-2024 Плиты железобетонные для покрытий городских дорог. Технические условия
Страницы стандарта














































