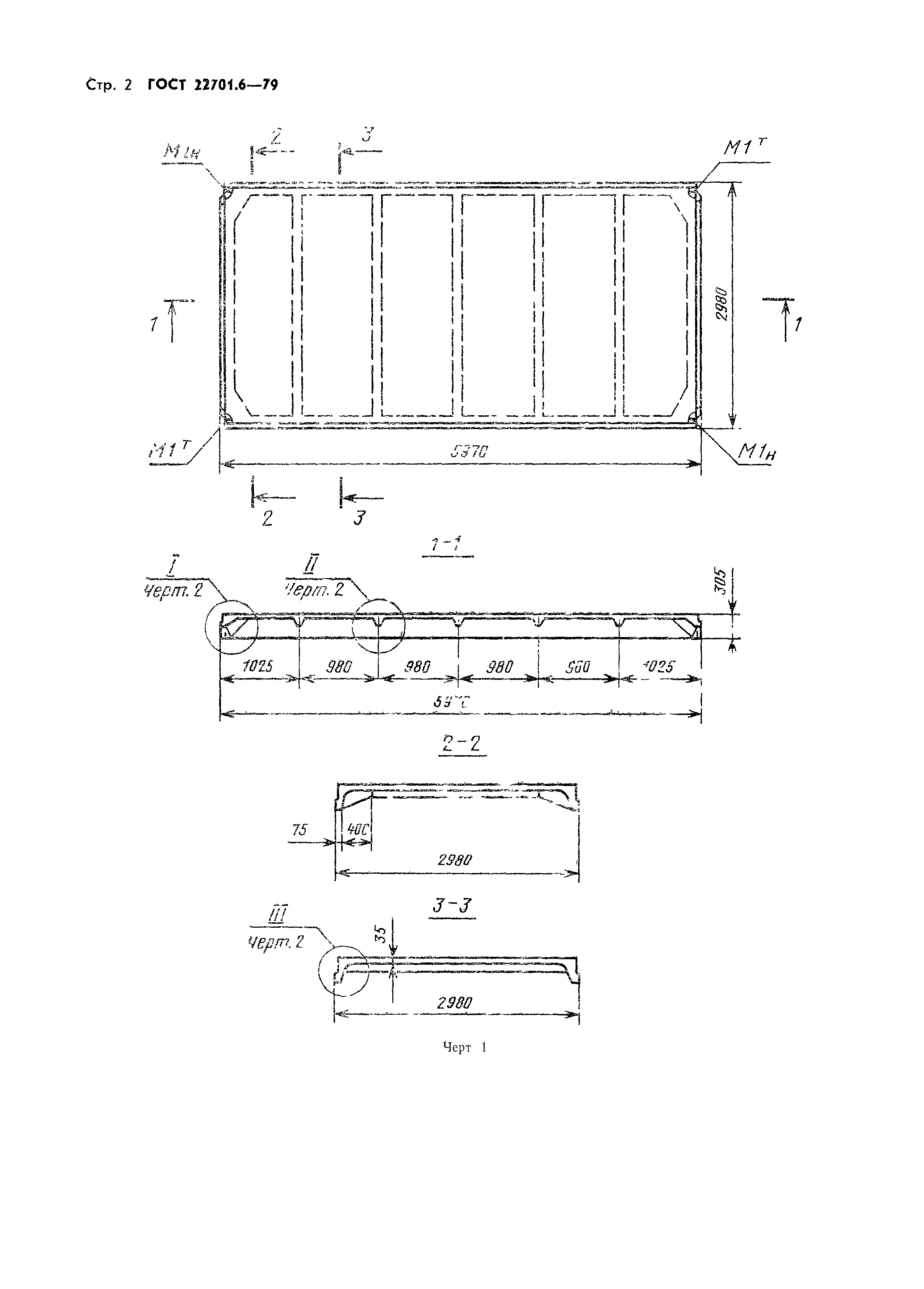
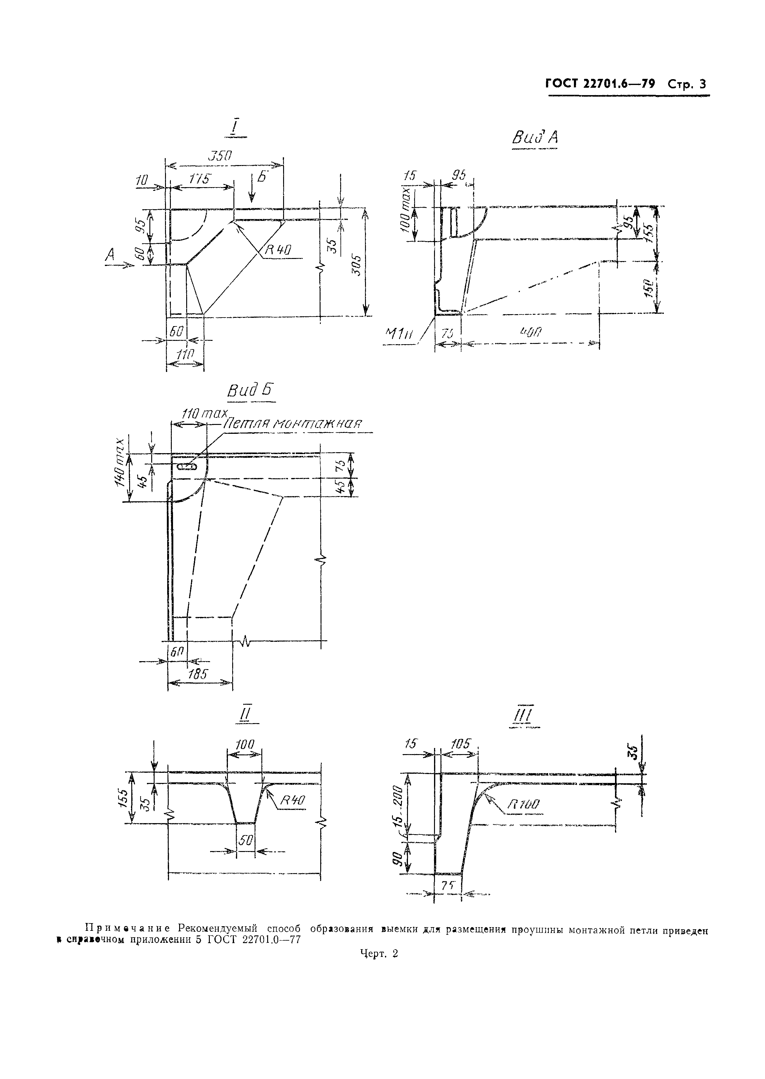
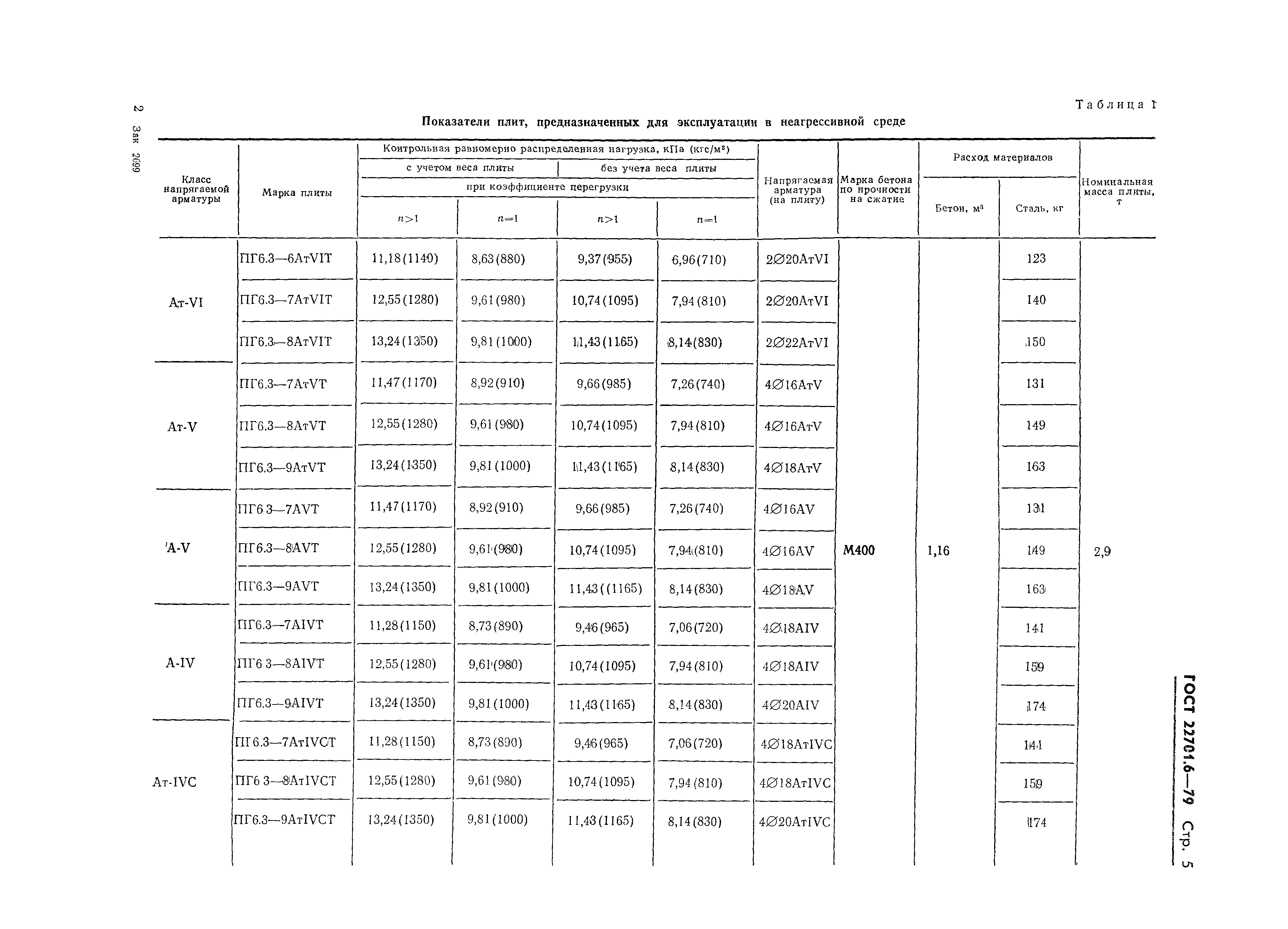
ГОСТ 22701.6-79 Плиты железобетонные ребристые предварительно напряженные размерами 6х3 м под нагрузки свыше 9,81 кПа (1000 кгс/м2) для покрытий производственных зданий. Технические условия
ГОСТ
Основная информация
Обозначение:
ГОСТ 22701.6-79
Статус:
утратил силу в РФ
Тип:
ГОСТ
Название русское:
Плиты железобетонные ребристые предварительно напряженные размерами 6х3 м под нагрузки свыше 9,81 кПа (1000 кгс/м2) для покрытий производственных зданий. Технические условия
Описание стандарта
ГОСТ 22701.6-79 Плиты железобетонные ребристые предварительно напряженные размерами 6х3 м под нагрузки свыше 9,81 кПа (1000 кгс/м2) для покрытий производственных зданий. Технические условия
Страницы стандарта
























