ГОСТ 30247.4-2022 Конструкции строительные. Светопрозрачные ограждающие конструкции и заполнения проемов. Метод испытания на огнестойкость
ГОСТ
Скачать ГОСТ в PDF или DOC бесплатно
Основная информация
Обозначение:
ГОСТ 30247.4-2022
Статус:
Действует
Тип:
ГОСТ
Название русское:
Конструкции строительные. Светопрозрачные ограждающие конструкции и заполнения проемов. Метод испытания на огнестойкость
Название английское:
Building constructions. Glazed partitions constructions and filling openings. Test method of fire resistance
Даты и сроки
Дата регистрации:
03-31-22
Дата издания:
06-17-24
Дата введения в действие:
07-01-24
Дата завершения срока действия:
-
Применение и описание
Область и условия применения:
Настоящий стандарт устанавливает метод испытания на огнестойкость светопрозрачных ограждающих конструкций и заполнений проемов в противопожарных преградах. Настоящий стандарт распространяется на: - перегородки со светопропускающими элементами площадью 5 % и более от общей площади конструкции; - заполнения проемов, устанавливаемых в противопожарных преградах: противопожарные окна, двери, ворота и люки со светопропускающими элементами площадью более 25 % от площади проема в свету; пожаростойкое стекло и изделия из него
Связи и замены
Заменяющий:
-
Описание стандарта
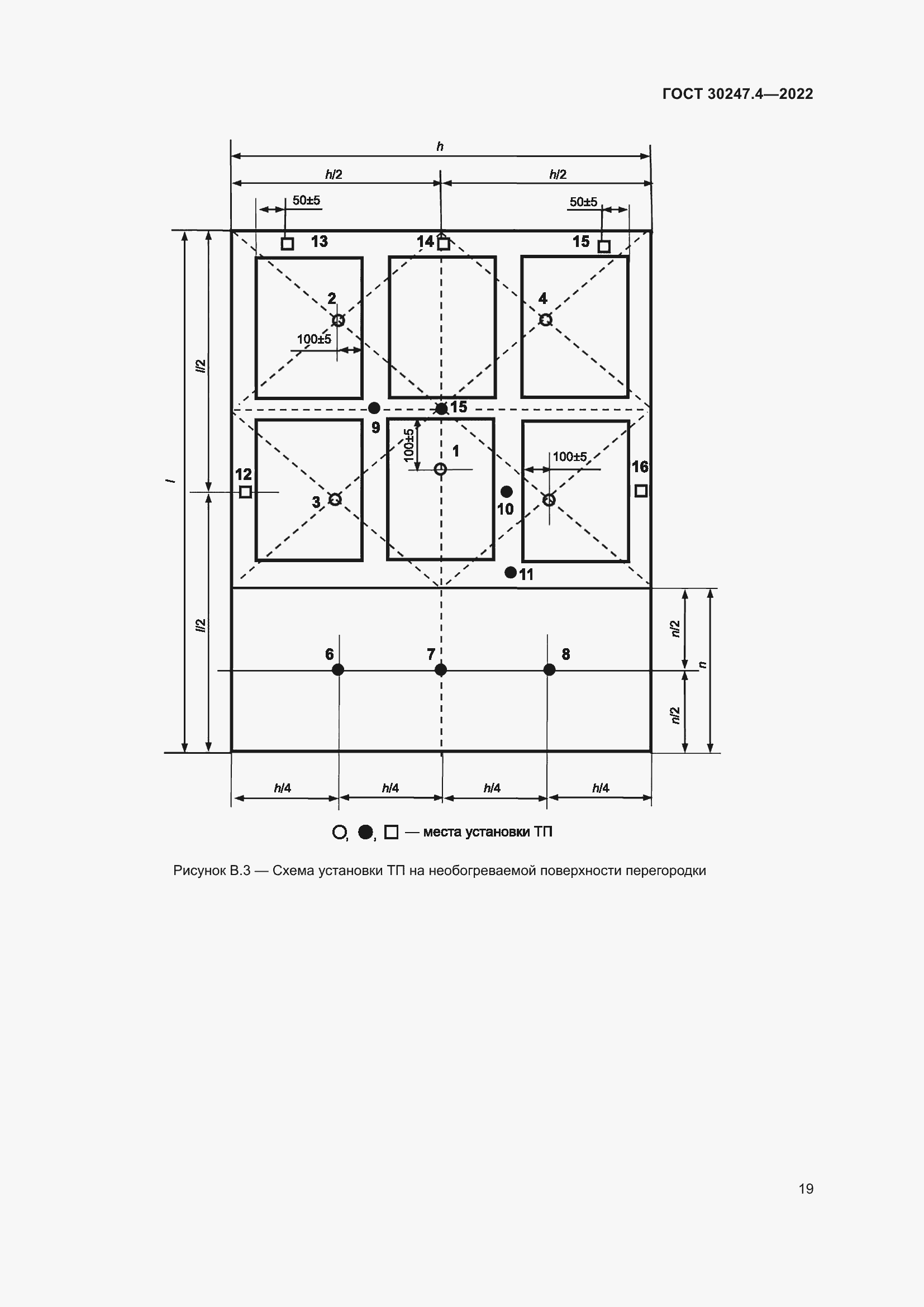
ГОСТ 30247.4-2022 Конструкции строительные. Светопрозрачные ограждающие конструкции и заполнения проемов. Метод испытания на огнестойкость
Страницы стандарта




































Приложение №1: Поправка к ГОСТ 30247.4-2022 Обозначение: Поправка к ГОСТ 30247.4-2022 Дата введения в действие: 24.01.2025
