ГОСТ 32576.5-2013 Краны грузоподъемные. Средства доступа, ограждения и защиты. Часть 5. Краны мостовые и козловые
ГОСТ
Скачать ГОСТ в PDF или DOC бесплатно
Основная информация
Обозначение:
ГОСТ 32576.5-2013
Статус:
Заменен
Тип:
ГОСТ
Название русское:
Краны грузоподъемные. Средства доступа, ограждения и защиты. Часть 5. Краны мостовые и козловые
Название английское:
Cranes. Access, guards and restraints. Part 5. Bridge and gantry cranes
Даты и сроки
Дата регистрации:
11-14-13
Дата издания:
11-05-14
Дата введения в действие:
06-01-15
Дата завершения срока действия:
07-01-22
Применение и описание
Область и условия применения:
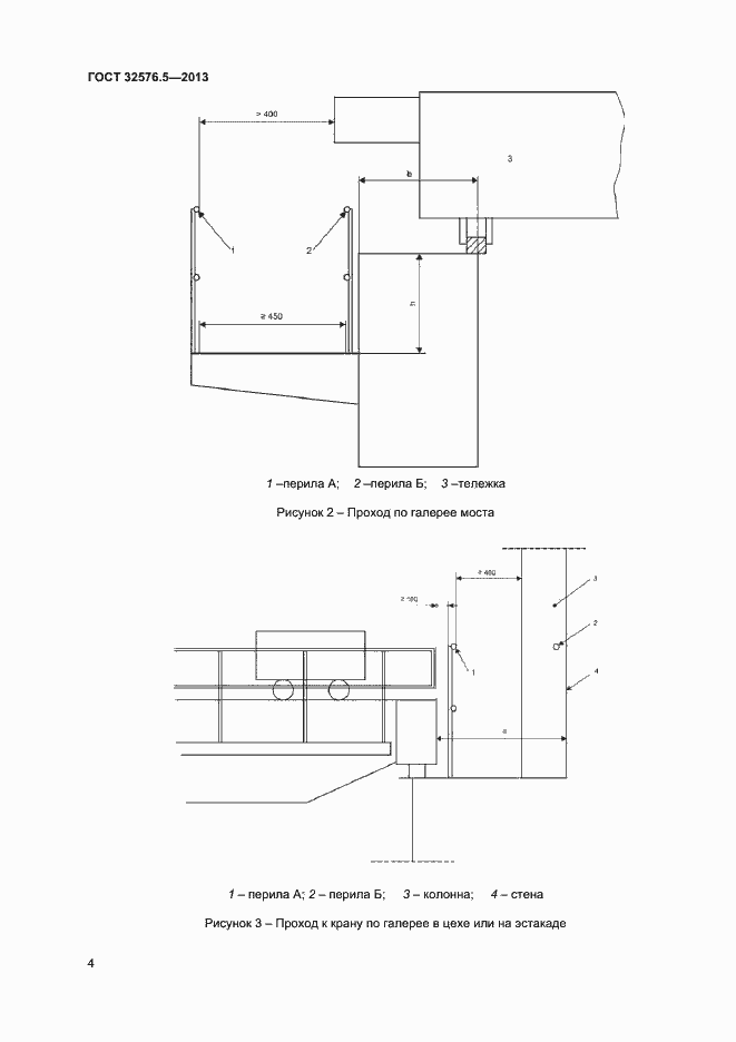
Настоящий стандарт содержит общие требования к средствам доступа, ограждения и защиты мостовых и козловых кранов согласно классификации, установленных в рабочее положение, и регламентирует специальные требования к средствам доступа, защиты и ограждениям, применяемым в конструкции кранов для обеспечения безопасности в процессе эксплуатации, в том числе технического обслуживания, контроля технического состояния, монтажа, демонтажа и в чрезвычайных ситуациях в целях защиты персонала от движущихся частей, падающих предметов или токоведущих частей. Этот стандарт применим ко всем новым мостовым и козловым кранам, изготовленным по истечении одного года после его утверждения. Стандарт не имеет цели требовать замены или модернизации существующего оборудования. Однако при модернизации оборудования требования к его свойствам должны быть пересмотрены в соответствии с данным стандартом. Если выполнение требований стандарта при модернизации вызывает существенные изменения конструкции, то возможность и необходимость приведения оборудования в соответствие с требованиями данного стандарта должна определяться изготовителем (проектировщиком), а при его отсутствии – организацией, выполняющей его функции, а последующие изменения должны быть выполнены владельцем (пользователем) в течение одного года
Связи и замены
Заменяющий:
ГОСТ 32576.5-2021
Описание стандарта
ГОСТ 32576.5-2013 Краны грузоподъемные. Средства доступа, ограждения и защиты. Часть 5. Краны мостовые и козловые
Страницы стандарта










