ГОСТ 33713-2015 Краны грузоподъемные. Регистраторы параметров работы. Общие требования
ГОСТ
Скачать ГОСТ в PDF или DOC бесплатно
Основная информация
Обозначение:
ГОСТ 33713-2015
Статус:
Действует
Тип:
ГОСТ
Название русское:
Краны грузоподъемные. Регистраторы параметров работы. Общие требования
Название английское:
Cranes. Registrars of operating parameters. General requirements
Даты и сроки
Дата регистрации:
12-28-15
Дата издания:
07-21-16
Дата введения в действие:
04-01-17
Дата завершения срока действия:
-
Применение и описание
Область и условия применения:
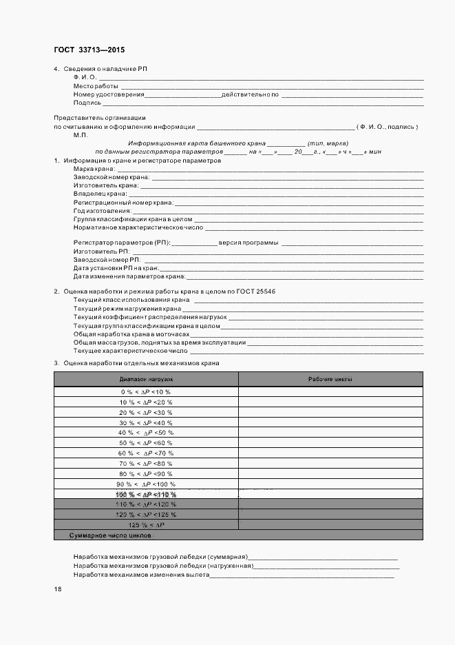
Настоящий стандарт устанавливает общие требования к регистраторам параметров работы (далее-«РП») грузоподъемных кранов (далее - «краны») применительно к возможности получения РП необходимой информации с заданной достоверностью об условиях эксплуатации кранов и причинах их аварий и инцидентов
Связи и замены
Заменяющий:
-
Описание стандарта
ГОСТ 33713-2015 Краны грузоподъемные. Регистраторы параметров работы. Общие требования
Страницы стандарта























