ГОСТ 34022-2016 Краны грузоподъемные. Эксплуатационные документы
ГОСТ
Скачать ГОСТ в PDF или DOC бесплатно
Основная информация
Обозначение:
ГОСТ 34022-2016
Статус:
Заменен
Тип:
ГОСТ
Название русское:
Краны грузоподъемные. Эксплуатационные документы
Название английское:
Cranes. Operational documents
Даты и сроки
Дата регистрации:
11-22-16
Дата издания:
04-21-17
Дата введения в действие:
01-01-18
Дата завершения срока действия:
-
Применение и описание
Область и условия применения:
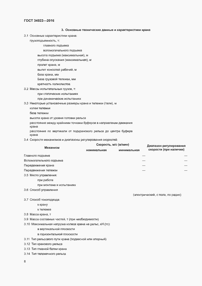
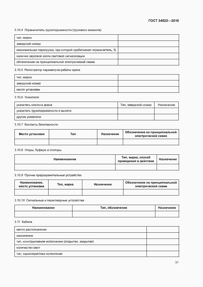
Настоящий стандарт устанавливает требования к номенклатуре, содержанию и форме документов, которые должен представить изготовитель вместе с грузоподъемными кранами
Связи и замены
Заменяющий:
-
Описание стандарта
ГОСТ 34022-2016 Краны грузоподъемные. Эксплуатационные документы
Страницы стандарта

















































































