ГОСТ 34342-2017 Автомобильные транспортные средства. Шины пневматические зимние, оборудованные шипами противоскольжения. Методы испытаний по определению величины износа тестового дорожного покрытия
ГОСТ
Скачать ГОСТ в PDF или DOC бесплатно
Основная информация
Обозначение:
ГОСТ 34342-2017
Статус:
Заменен
Тип:
ГОСТ
Название русское:
Автомобильные транспортные средства. Шины пневматические зимние, оборудованные шипами противоскольжения. Методы испытаний по определению величины износа тестового дорожного покрытия
Название английское:
Motor vehicles. Pneumatic winter tyres, fitted with antiskid studs. Test methods for determination of the value of test pavement wear
Даты и сроки
Дата регистрации:
11-30-17
Дата издания:
05-18-18
Дата введения в действие:
07-01-18
Дата завершения срока действия:
07-01-24
Применение и описание
Область и условия применения:
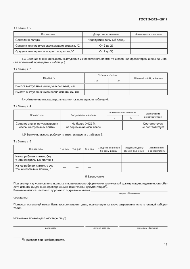
Настоящий стандарт распространяется на пневматические зимние шины, оборудованные шипами противоскольжения, предназначенные для установки на автомобильные транспортные средства категорий М1, N1, О1, О2, в соответствии с [1]. Настоящий стандарт устанавливает метод определения величины износа тестового дорожного покрытия пневматическими зимними шинами, оборудованными шипами противоскольжения
Связи и замены
Заменяющий:
ГОСТ 34342-2023
Описание стандарта
ГОСТ 34342-2017 Автомобильные транспортные средства. Шины пневматические зимние, оборудованные шипами противоскольжения. Методы испытаний по определению величины износа тестового дорожного покрытия
Страницы стандарта


















