ГОСТ 34464.5-2023 Краны грузоподъемные. Информация, предоставляемая по запросу. Часть 5. Краны мостовые и козловые
ГОСТ
Скачать ГОСТ в PDF или DOC бесплатно
Основная информация
Обозначение:
ГОСТ 34464.5-2023
Статус:
Действует
Тип:
ГОСТ
Название русское:
Краны грузоподъемные. Информация, предоставляемая по запросу. Часть 5. Краны мостовые и козловые
Название английское:
Cranes. Information to be provided. Part 5. Overhead travelling and portal bridge cranes
Даты и сроки
Дата регистрации:
03-31-23
Дата издания:
04-19-23
Дата введения в действие:
01-01-24
Дата завершения срока действия:
-
Применение и описание
Область и условия применения:
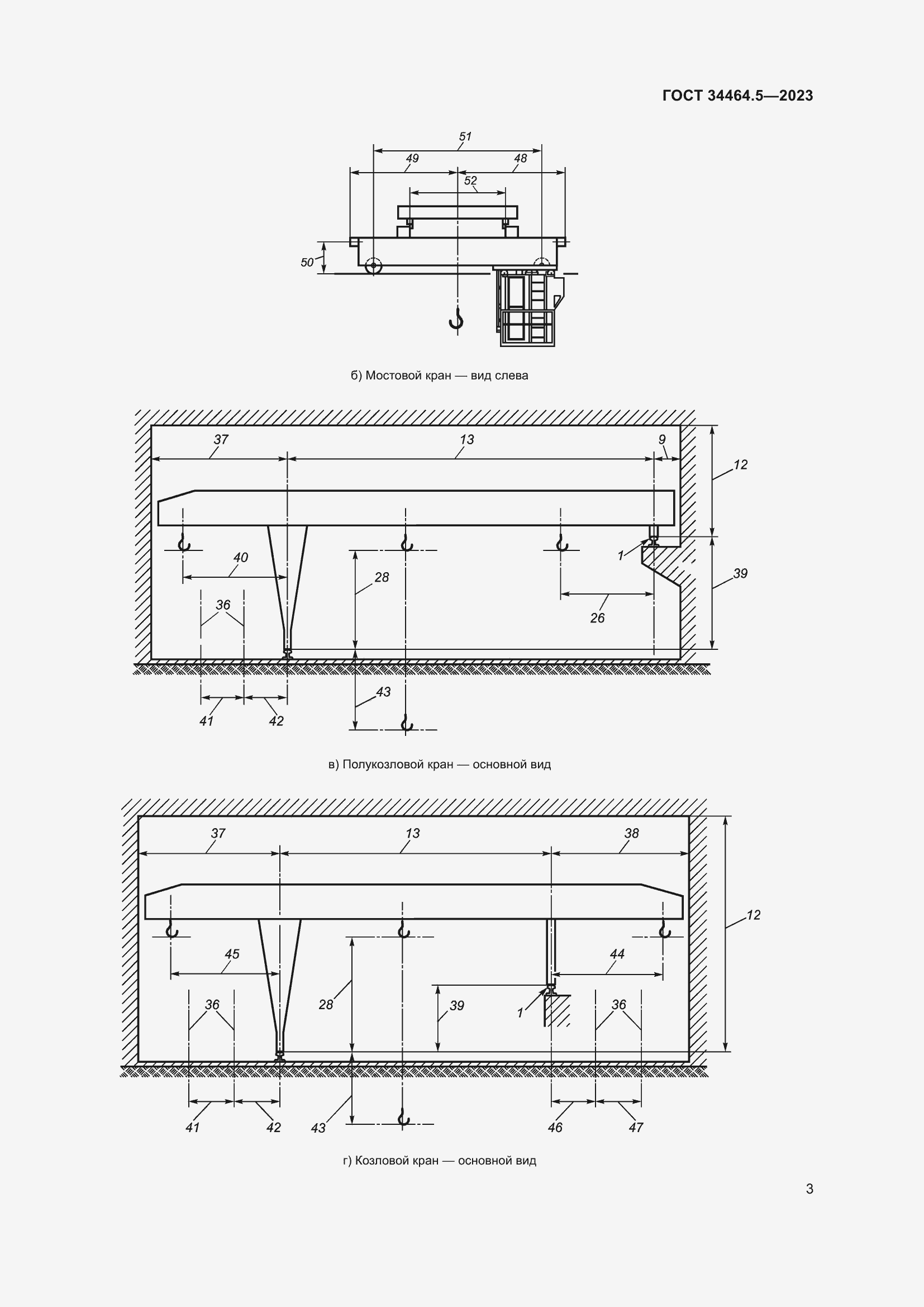
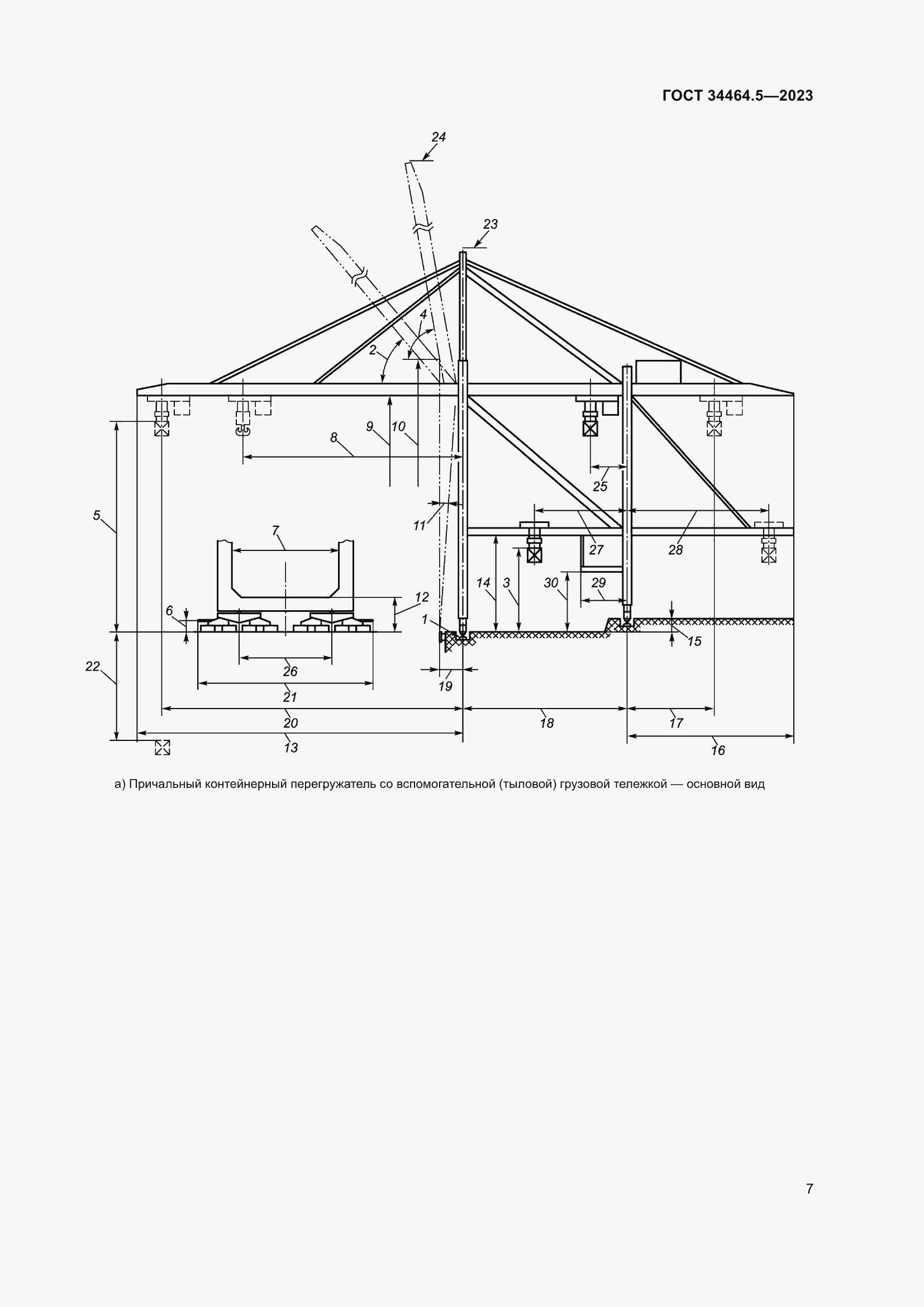
Настоящий стандарт устанавливает специальные требования к информации, которую должны предоставлять заказчики и изготовители (поставщики) для выбора и поставки мостовых и козловых (полукозловых) кранов (далее – краны), включая причальные перегружатели, наиболее полно наиболее полно отражающей условия предстоящей эксплуатации и требования к производительности, и дополняет общие требования, установленные ГОСТ 34464.1
Связи и замены
Заменяющий:
-
Описание стандарта
ГОСТ 34464.5-2023 Краны грузоподъемные. Информация, предоставляемая по запросу. Часть 5. Краны мостовые и козловые
Страницы стандарта















